Valutazione immobiliare indipendente, accurata e gratuita
Casa indipendente in vendita a Gradara a 190.000 € (cod.64f3059c)
Caasa non ha sufficienti informazioni per commentare la casa indipendente in vendita a Gradara - 64f3059c.
Analisi immobiliare
I dati in posseso di Caasa per quest'immobile sono insufficienti, inaffidabili o contraddittori per proporre un'analisi attendibile.
Mercato immobiliare a Gradara
Per quanto riguarda più in generale il comune di Gradara, sono presenti al momento più di trenta annunci per
case indipendenti in vendita (meno dell'1% dell'intera provincia) .
Per quanto riguarda la dinamica dei prezzi, negli ultimi 6 mesi i prezzi medi in tutto il comune per case indipendenti in vendita sono
sostanzialmente stabili (-0,27%).
NOVITÀ Il risultato che vedi dipende dai dati che siamo riusciti ad estrarre dall'annuncio: ottieni una stima più accuranta di questo immobile, inserendo dati più precisi.
N.B. L'Opinione di Caasa® è un servizio sperimentale realizzato tramite tecniche di Intelligenza Artificiale, fornito senza alcuna garanzia di correttezza e completezza. Leggi il disclaimer o segnalaci un problema.
IMMAGINI
IN SINTESI
PROPOSTO DA:
Noi Immobiliare
DESCRIZIONE
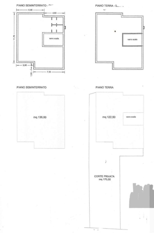
con giardino con posto auto con garage con cucina abitabile con cantina
Rif.C-232RA1 L' azienda Noi Immobiliare propone in vendita appartamento sito al piano terra in una casa bifamiliare in zona tranquilla vicino al centro abitato e vicino a tutti i servizi . L'immobile è così composto: entrata su un ampio corridoio, ampio soggiorno, ampia cucina abitabile, soggiorno, ripostiglio , tre camere da letto matrimoniali e bagno. Al piano interrato locale caldaia e possibilità di realizzare una tavernetta . Posto auto esterno con possibilità di realizzare un ampio garage. Completa la proprietà giardino di circa 100 mq . Per informazioni e visite contattare 3393736955 Roberta A



