Valutazione immobiliare indipendente, accurata e gratuita
Capannone in vendita a Fano in zona Rosciano a 1.100.000 € (cod.6587512a)
Caasa non ha sufficienti informazioni per commentare il capannone in vendita a Fano in zona Rosciano - 6587512a.
Analisi immobiliare
I dati in posseso di Caasa per quest'immobile sono insufficienti, inaffidabili o contraddittori per proporre un'analisi attendibile.
Mercato immobiliare a Fano
Per quanto riguarda più in generale la città di Fano, sono presenti al momento più di venti annunci per
capannoni in vendita (quasi il 20% dell'intera provincia)
e il maggior numero di annunci per questa tipologia sono relativi proprio alla zona di Rosciano.
Vedi altre informazioni direttamente su
Mercato-Immobiliare.info
NOVITÀ Il risultato che vedi dipende dai dati che siamo riusciti ad estrarre dall'annuncio: ottieni una stima più accuranta di questo immobile, inserendo dati più precisi.
N.B. L'Opinione di Caasa® è un servizio sperimentale realizzato tramite tecniche di Intelligenza Artificiale, fornito senza alcuna garanzia di correttezza e completezza. Leggi il disclaimer o segnalaci un problema.
IMMAGINI
IN SINTESI
PROPOSTO DA:
Quimmo
DESCRIZIONE
da ristrutturare con posto auto da ristrutturare con riscaldamento autonomo senza ascensore
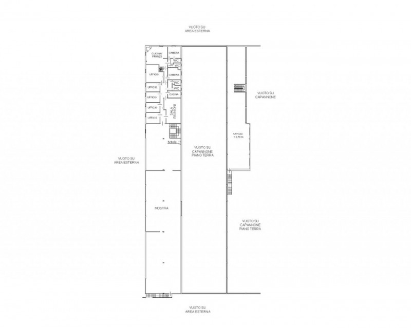
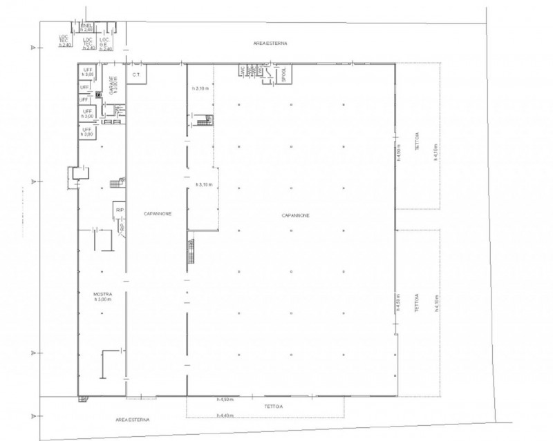
Proponiamo in vendita un complesso immobiliare a destinazione prevalentemente industriale, situato nel Comune di Fano, in località Rosciano, con accesso diretto da Via Amedeo Avogadro n. 3. L'immobile si inserisce in una zona periferica ben collegata, facilmente raggiungibile grazie alla vicinanza alla Strada Statale SS3, a circa 4 km dal casello dell'Autostrada A14 Adriatica e a circa 5 km dal centro cittadino, garantendo così ottima accessibilità per mezzi pesanti e collegamenti logistici efficienti. La proprietà è costituita da un unico corpo di fabbrica con sviluppo su due piani fuori terra, circondato da una corte esterna perimetrale esclusiva che consente agevoli operazioni di manovra, carico e scarico. Il complesso presenta una forma regolare e funzionale: la parte frontale, distribuita su due livelli, è destinata a uffici e spazi espositivi, mentre la porzione retrostante, prevalentemente a un piano, è adibita a laboratorio produttivo. Completano la proprietà tre tettoie, di cui due sul retro e una sul lato del fabbricato, ideali come spazi accessori per lavorazioni o stoccaggio. L'immobile, accatastato in categoria D/8, sviluppa una superficie lorda di circa 7.340 mq (escluse tettoie e area pertinenziale) e una superficie coperta di circa 7.080 mq, rendendolo particolarmente adatto a realtà produttive, commerciali o logistiche che necessitano di ampi spazi organizzati e ben collegati. Soluzione ideale per aziende alla ricerca di una sede operativa funzionale, facilmente accessibile e inserita in un contesto infrastrutturale strategico



