Valutazione immobiliare indipendente, accurata e gratuita
Ufficio in vendita a Fano in zona Bellocchi a 285.000 € (cod.653478c2)
Caasa non ha sufficienti informazioni per commentare l'ufficio in vendita a Fano in zona Bellocchi - 653478c2.
Analisi immobiliare
I dati in posseso di Caasa per quest'immobile sono insufficienti, inaffidabili o contraddittori per proporre un'analisi attendibile.
Mercato immobiliare a Fano
Per quanto riguarda più in generale la città di Fano, sono presenti al momento più di cento annunci per
uffici in vendita (quasi il 20% dell'intera provincia)
e il maggior numero di annunci per questa tipologia sono relativi alla zona di Marotta, ma anche la zona di Bellocchi è molto attiva dal punto di vista immobiliare.
Per quanto riguarda la richiesta media in zona Bellocchi, dove sorge l'ufficio, essa è pari a circa
1.125 €/m² per uffici in vendita.
Possiamo inoltre considerare che in tutta la città negli ultimi 6 mesi, i prezzi per uffici in vendita sono
in deciso aumento (+9,48%).
NOVITÀ Il risultato che vedi dipende dai dati che siamo riusciti ad estrarre dall'annuncio: ottieni una stima più accuranta di questo immobile, inserendo dati più precisi.
N.B. L'Opinione di Caasa® è un servizio sperimentale realizzato tramite tecniche di Intelligenza Artificiale, fornito senza alcuna garanzia di correttezza e completezza. Leggi il disclaimer o segnalaci un problema.
IMMAGINI
IN SINTESI
PROPOSTO DA:
Zampetti Francesco
DESCRIZIONE
di nuova costruzione di nuova costruzione
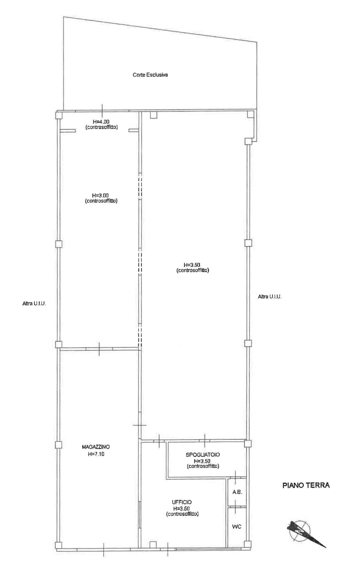
Fano - zona artigianale periferica - Ag. La Pesarese propone in vendita capannone artigianale a reddito, scadenza contratto Settembre 2026. L'immobile dispone di entrata carrabile e pedonale, area ufficio, spogliatoio, bagno, area magazzino ed area produttiva controsoffittata a H 3.00 e H 3.50 suddivisa in due diversi ambienti riscaldati. Completa la propriet scoperto privato intercluso. Ape cl. D Maggiori informazioni contattare Francesco whts 346/7480725 - info@lapesarese.it. - SC9484178

