Valutazione immobiliare indipendente, accurata e gratuita
Appartamento in vendita a Fano a 140.000 € (cod.652f510f)
Caasa non ha sufficienti informazioni per commentare l'appartamento in vendita a Fano - 652f510f.
Analisi immobiliare
I dati in posseso di Caasa per quest'immobile sono insufficienti, inaffidabili o contraddittori per proporre un'analisi attendibile.
Mercato immobiliare a Fano
Per quanto riguarda più in generale la città di Fano, sono presenti al momento ben oltre mille annunci per
appartamenti in vendita (quasi il 20% dell'intera provincia)
e il maggior numero di annunci per questa tipologia sono relativi alla zona di Torrette.
La dinamica dei prezzi in tutta la città mostra che negli ultimi 6 mesi, i prezzi per appartamenti in vendita sono
sostanzialmente stabili (+1,00%).
NOVITÀ Il risultato che vedi dipende dai dati che siamo riusciti ad estrarre dall'annuncio: ottieni una stima più accuranta di questo immobile, inserendo dati più precisi.
N.B. L'Opinione di Caasa® è un servizio sperimentale realizzato tramite tecniche di Intelligenza Artificiale, fornito senza alcuna garanzia di correttezza e completezza. Leggi il disclaimer o segnalaci un problema.
IMMAGINI
IN SINTESI
DESCRIZIONE
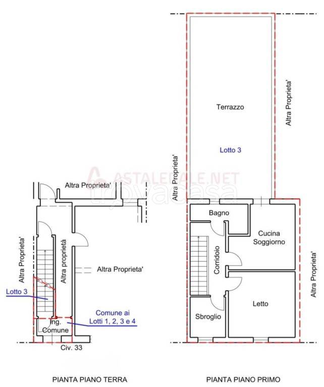
con terrazza
Fano zona Gimarra vendesi appartamento posto al primo e ultimo piano con ingresso indipendente dal piano terra. Mq 60 così composto: ingresso, soggiorno – cucina con accesso al terrazzo abitabile di Mq 65, bagno, camera da letto matrimoniale e cameretta. A due passi dal mare. Utenze autonome, no spese di condominio. Ottimo anche come investimento


