Valutazione immobiliare indipendente, accurata e gratuita
Appartamento in vendita a Fano (cod.652b24f0)
Caasa non ha sufficienti informazioni per commentare l'appartamento in vendita a Fano - 652b24f0.
Analisi immobiliare
I dati in posseso di Caasa per quest'immobile sono insufficienti, inaffidabili o contraddittori per proporre un'analisi attendibile.
Mercato immobiliare a Fano
Per quanto riguarda più in generale la città di Fano, sono presenti al momento ben oltre mille annunci per
appartamenti in vendita (quasi il 20% dell'intera provincia)
e il maggior numero di annunci per questa tipologia sono relativi alla zona di Torrette.
Per quanto riguarda la dinamica dei prezzi, negli ultimi 6 mesi i prezzi medi in tutta la città per appartamenti in vendita sono
in sostanziale aumento (+5,55%).
NOVITÀ Il risultato che vedi dipende dai dati che siamo riusciti ad estrarre dall'annuncio: ottieni una stima più accuranta di questo immobile, inserendo dati più precisi.
N.B. L'Opinione di Caasa® è un servizio sperimentale realizzato tramite tecniche di Intelligenza Artificiale, fornito senza alcuna garanzia di correttezza e completezza. Leggi il disclaimer o segnalaci un problema.
IMMAGINI
IN SINTESI
PROPOSTO DA:
Casanews
DESCRIZIONE
di recente ristrutturazione con terrazza con cantina con balcone di recente ristrutturazione con cucina abitabile con cortile
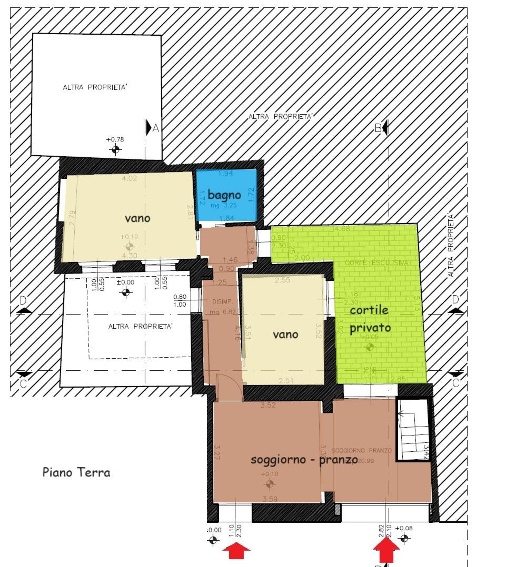
Fano in centro storico a pochi metri dal mare splendida soluzione indipendente, ottimamente ristrutturata con finiture di qualità disposta su due livelli così composta: Piano terra: doppio ingresso, salone, due stanze, bagno, cortile privato. Piano primo,: ampio e luminoso salone, cucina abitabile,, due camere da letto, due bagni (uno in camera) cabina armadio, ripostiglio, balcone. L'immobile è rifinitissimo ed è facilmente divisibile in due unità. Tutti i materiali utilizzati sono di alta qualità. Classe Energetica: E





