Valutazione immobiliare indipendente, accurata e gratuita
Capannone in affitto a Fano in zona Rosciano a 4.000 € mese (cod.64fd5695)
Caasa non ha sufficienti informazioni per commentare il capannone in affitto a Fano in zona Rosciano - 64fd5695.
Analisi immobiliare
I dati in posseso di Caasa per quest'immobile sono insufficienti, inaffidabili o contraddittori per proporre un'analisi attendibile.
Mercato immobiliare a Fano
Per quanto riguarda più in generale la città di Fano, sono presenti al momento più di dieci annunci per
capannoni in affitto (quasi il 20% dell'intera provincia)
e il maggior numero di annunci per questa tipologia sono relativi proprio alla zona di Rosciano.
Vedi altre informazioni direttamente su
Mercato-Immobiliare.info
NOVITÀ Il risultato che vedi dipende dai dati che siamo riusciti ad estrarre dall'annuncio: ottieni una stima più accuranta di questo immobile, inserendo dati più precisi.
N.B. L'Opinione di Caasa® è un servizio sperimentale realizzato tramite tecniche di Intelligenza Artificiale, fornito senza alcuna garanzia di correttezza e completezza. Leggi il disclaimer o segnalaci un problema.
IMMAGINI
IN SINTESI
DESCRIZIONE
con termocondizionamento con riscaldamento autonomo
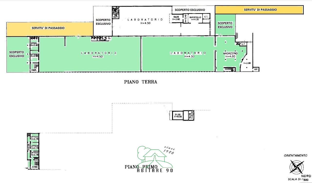
FANO - ZONA ROSCIANO, in bellissima posizione commerciale ad alto traffico veicolare, proponiamo in affitto capannone a volta ed uffici. Il capannone con H 4,5 mt misura circa mq 2.000 circa, oltre ad uffici al piano terra e al primo piano per totali 220 mq circa. Oltre a magazzino di circa 300 mq. Scoperto sul fronte e sul lato. Si richiedono € 4.000,00 mensili


