Valutazione immobiliare indipendente, accurata e gratuita
Casa indipendente in vendita a Fiuminata in zona Castello a 540.000 € (cod.64f8b615)
Caasa non ha sufficienti informazioni per commentare la casa indipendente a Fiuminata in zona Castello - 64f8b615.
Analisi immobiliare
I dati in posseso di Caasa per quest'immobile sono insufficienti, inaffidabili o contraddittori per proporre un'analisi attendibile.
Mercato immobiliare a Fiuminata
Per quanto riguarda più in generale il comune di Fiuminata, sono presenti al momento più di cinquanta annunci per
case indipendenti in vendita (meno dell'1% dell'intera provincia) .
Relativamente alla dinamica dei prezzi, possiamo dire che negli ultimi 6 mesi i prezzi medi in tutto il comune per case indipendenti in vendita sono
in forte calo (-10,11%).
NOVITÀ Il risultato che vedi dipende dai dati che siamo riusciti ad estrarre dall'annuncio: ottieni una stima più accuranta di questo immobile, inserendo dati più precisi.
N.B. L'Opinione di Caasa® è un servizio sperimentale realizzato tramite tecniche di Intelligenza Artificiale, fornito senza alcuna garanzia di correttezza e completezza. Leggi il disclaimer o segnalaci un problema.
IMMAGINI
IN SINTESI
PROPOSTO DA:
STUDIO IMMOBILIARE RIO ALTO S.R.L.
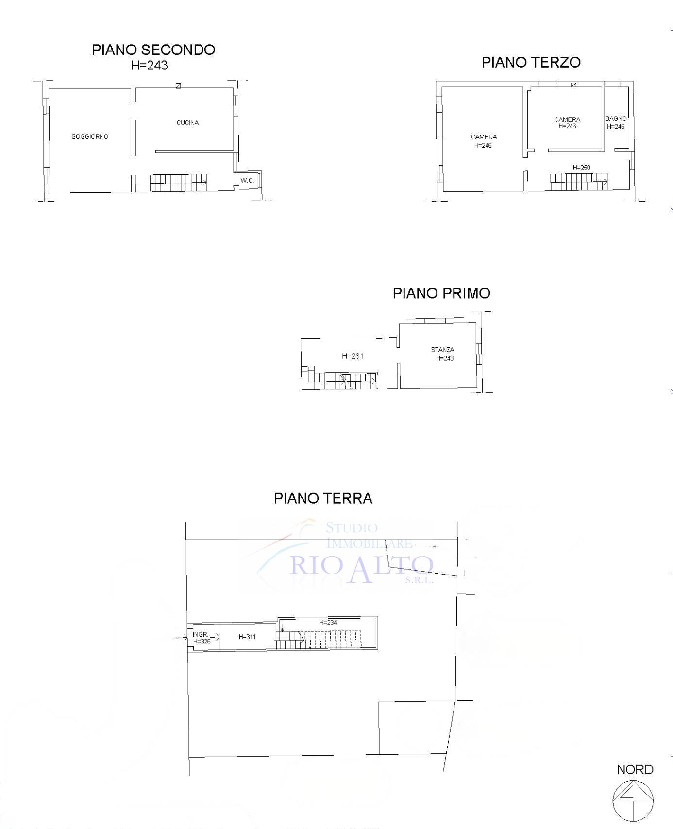
DESCRIZIONE
con termocondizionamento con cucina abitabile con riscaldamento autonomo
VENEZIA CASTELLO, SAN FRANCESCO DELLA VIGNA, in una realtà veneziana unica composta da negozi locali a pochi passi da S.S.Giovanni e Paolo e dall'Arsenale, siamo a proporre un appartamento in discrete condizioni, ingresso indipendente, terra cielo, l […]
