Valutazione immobiliare indipendente, accurata e gratuita
Appartamento in vendita a Civitanova Marche a 175.000 € (cod.6573644a)
Caasa non ha sufficienti informazioni per commentare l'appartamento in vendita a Civitanova Marche - 6573644a.
Analisi immobiliare
I dati in posseso di Caasa per quest'immobile sono insufficienti, inaffidabili o contraddittori per proporre un'analisi attendibile.
Mercato immobiliare a Civitanova Marche
Per quanto riguarda più in generale la città di Civitanova Marche, sono presenti al momento ben circa mille annunci per
appartamenti in vendita (quasi il 20% dell'intera provincia)
e il maggior numero di annunci per questa tipologia sono relativi alla zona di San Marone.
Possiamo inoltre considerare che in tutta la città negli ultimi 6 mesi, i prezzi per appartamenti in vendita sono
sostanzialmente stabili (+0,81%).
NOVITÀ Il risultato che vedi dipende dai dati che siamo riusciti ad estrarre dall'annuncio: ottieni una stima più accuranta di questo immobile, inserendo dati più precisi.
N.B. L'Opinione di Caasa® è un servizio sperimentale realizzato tramite tecniche di Intelligenza Artificiale, fornito senza alcuna garanzia di correttezza e completezza. Leggi il disclaimer o segnalaci un problema.
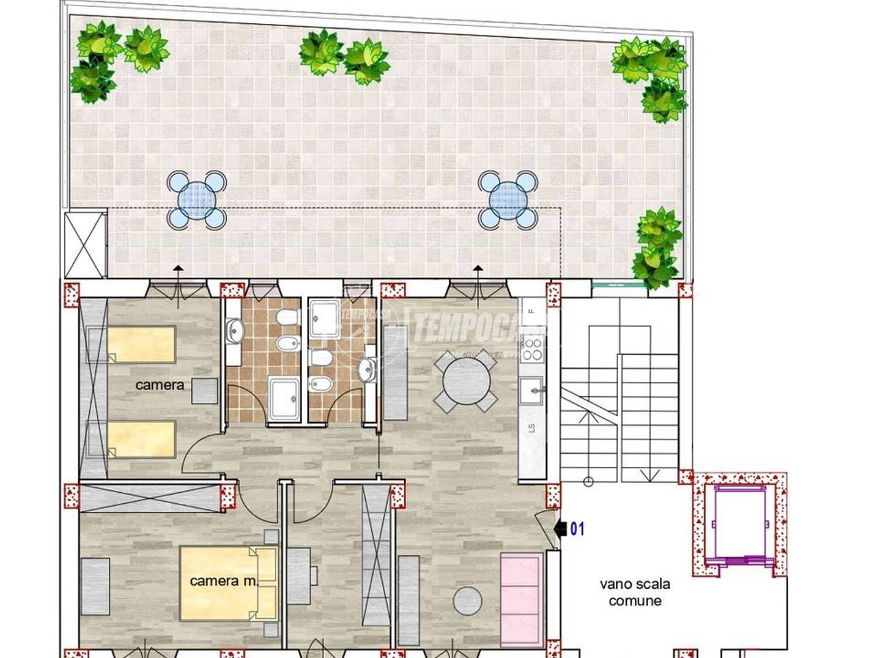
IMMAGINI
IN SINTESI
PROPOSTO DA:
Tempocasa Civitanova Alta
DESCRIZIONE
con posto auto con garage con termocondizionamento con giardino
Rif: NC01 - In elegante e tranquilla zona residenziale a Civitanova Marche (MC), comoda a tutti i principali servizi, vendesi nuovi eleganti appartamenti in piccolo stabile di nuova realizzazione in classe A, progettato con soluzioni architettoniche e tecnologiche all'avanguardia. Il progetto è realizzato nel rispetto dell'ambiente con particolare attenzione alle dotazioni impiantistiche di ultima generazione che permettono notevoli risparmi nella gestione energetica quotidiana dell'abitazione; dall'elevato isolamento termico, all'impianto fotovoltaico, riscaldamento a pavimento con pompa di calore, serramenti con caratteristiche di efficienza energetica ; tutte le unità sono dotate di impianti autonomi che garantiscono libertà e sicurezza di gestione in modo totalmente indipendente. Gli esclusivi appartamenti sono inoltre provvisti di porticato e spaziosi terrazzi privati con profondità che vanno da 37 mq insù ,moltiplicando di fatto le superfici abitabili e soprattutto la percezione degli spazi abitativi; tutto ciò conferisce agli appartamenti una grande luminosità, un'atmosfera ariosa e confortevole, garantendo al tempo stesso privacy e riservatezza ai proprietari. Il capitolato e le rifiniture sono di alta gamma con possibilità di personalizzazione a seconda dei propri gusti ed esigenze. Sono disponibili appartamenti di varie e ampie metrature pensati per adattarsi ad ogni esigenza: bilocali, trilocali e quadrilocali, con grandi terrazzi, e giardino. Tipologie da scegliere e vivere, fatte su misura per il tuo benessere CON GARAGE COMPRESSO NEL PREZZO. Per tutti i dettagli, maggiori informazioni e per prenotare visite in cantiere non esitate a contattarci

