Valutazione immobiliare indipendente, accurata e gratuita
Appartamento in vendita a Civitanova Marche in zona San Marone a 245.000 € (cod.64e799b9)
Caasa non ha sufficienti informazioni per commentare l'appartamento a Civitanova Marche in zona San Marone - 64e799b9.
Analisi immobiliare
I dati in posseso di Caasa per quest'immobile sono insufficienti, inaffidabili o contraddittori per proporre un'analisi attendibile.
Mercato immobiliare a Civitanova Marche
Per quanto riguarda più in generale la città di Civitanova Marche, sono presenti al momento ben circa mille annunci per
appartamenti in vendita (quasi il 20% dell'intera provincia)
e il maggior numero di annunci per questa tipologia sono relativi proprio alla zona di San Marone.
La richiesta media nella zona dove sorge l'appartamento (San Marone) è pari a
2.710 €/m² e ne fa la più pregiata della città .
Relativamente alla dinamica dei prezzi, possiamo dire che negli ultimi 6 mesi i prezzi medi in tutta la città per appartamenti in vendita sono
sostanzialmente stabili (+0,90%).
NOVITÀ Il risultato che vedi dipende dai dati che siamo riusciti ad estrarre dall'annuncio: ottieni una stima più accuranta di questo immobile, inserendo dati più precisi.
N.B. L'Opinione di Caasa® è un servizio sperimentale realizzato tramite tecniche di Intelligenza Artificiale, fornito senza alcuna garanzia di correttezza e completezza. Leggi il disclaimer o segnalaci un problema.
IMMAGINI
IN SINTESI
PROPOSTO DA:
Habitat Immobiliare
DESCRIZIONE
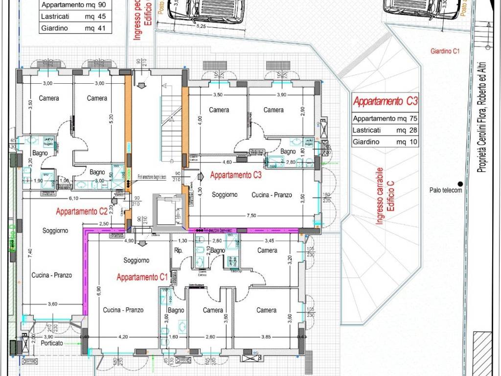
di nuova costruzione con posto auto con terrazza con garage di nuova costruzione con termocondizionamento
Proponiamo in vendita IN ESCLUSIVA in zona residenziale e servita, appartamenti di NUOVA REALIZZAZIONE in classe A in piccola palazzina di sole 9 unità abitative con metrature disponibili da 75mq a 134mq con due o tre camere e doppi servizi. Disponibilità di appartamenti al piano terra con ampie corti ed ai piani superiori con terrazzi abitabili; possibilità di acquistare garage o posto auto in abbinamento all'appartamento (non compresi nel prezzo). Accessoriati con impianto di riscaldamento a pavimento, impianto fotovoltaico, caldaia a pompa di calore, ecc.... ottimo capitolato personalizzabile! Posizione strategica ed esclusiva nelle immediate vicinanze delle scuole, supermercati, fermate autobus e di tutti i principali servizi ed allo stesso tempo a pochi minuti a piedi dal centro. Ideali come abitazione principale per tutto l'anno, per chi desidera vivere nel confort e nella tranquillità grazie alle generose metrature ed alla posizione riservata e residenziale. Contattaci per info e/o prenotazioni, NON LASCIARTELI SCAPPARE


