Valutazione immobiliare indipendente, accurata e gratuita
Casale in vendita a Cingoli in zona Avenale a 23.700 € (cod.65427c35)
Caasa non ha sufficienti informazioni per commentare il casale in vendita a Cingoli in zona Avenale - 65427c35.
Analisi immobiliare
I dati in posseso di Caasa per quest'immobile sono insufficienti, inaffidabili o contraddittori per proporre un'analisi attendibile.
Mercato immobiliare a Cingoli
Per quanto riguarda più in generale il comune di Cingoli, sono presenti al momento più di 150 annunci per
casali in vendita (quasi il 20% dell'intera provincia)
e il maggior numero di annunci per questa tipologia sono relativi alla zona di Strada, mentre la zona di Avenale risulta molto meno attiva considerando il numero di annunci presenti.
La richiesta media nella zona dove sorge il casale (Avenale) è pari a
980 €/m², molto vicina ai valori della zona Strada che sono i più alti del comune .
Relativamente alla dinamica dei prezzi, possiamo dire che negli ultimi 6 mesi i prezzi medi in tutto il comune per casali in vendita sono
in deciso aumento (+8,00%).
Invece i prezzi per la zona di sono in sostanziale aumento.
NOVITÀ Il risultato che vedi dipende dai dati che siamo riusciti ad estrarre dall'annuncio: ottieni una stima più accuranta di questo immobile, inserendo dati più precisi.
N.B. L'Opinione di Caasa® è un servizio sperimentale realizzato tramite tecniche di Intelligenza Artificiale, fornito senza alcuna garanzia di correttezza e completezza. Leggi il disclaimer o segnalaci un problema.
IMMAGINI
IN SINTESI
PROPOSTO DA:
CENTRO CASA S.N.C. DI BASCONI P. & MAGGINI C.
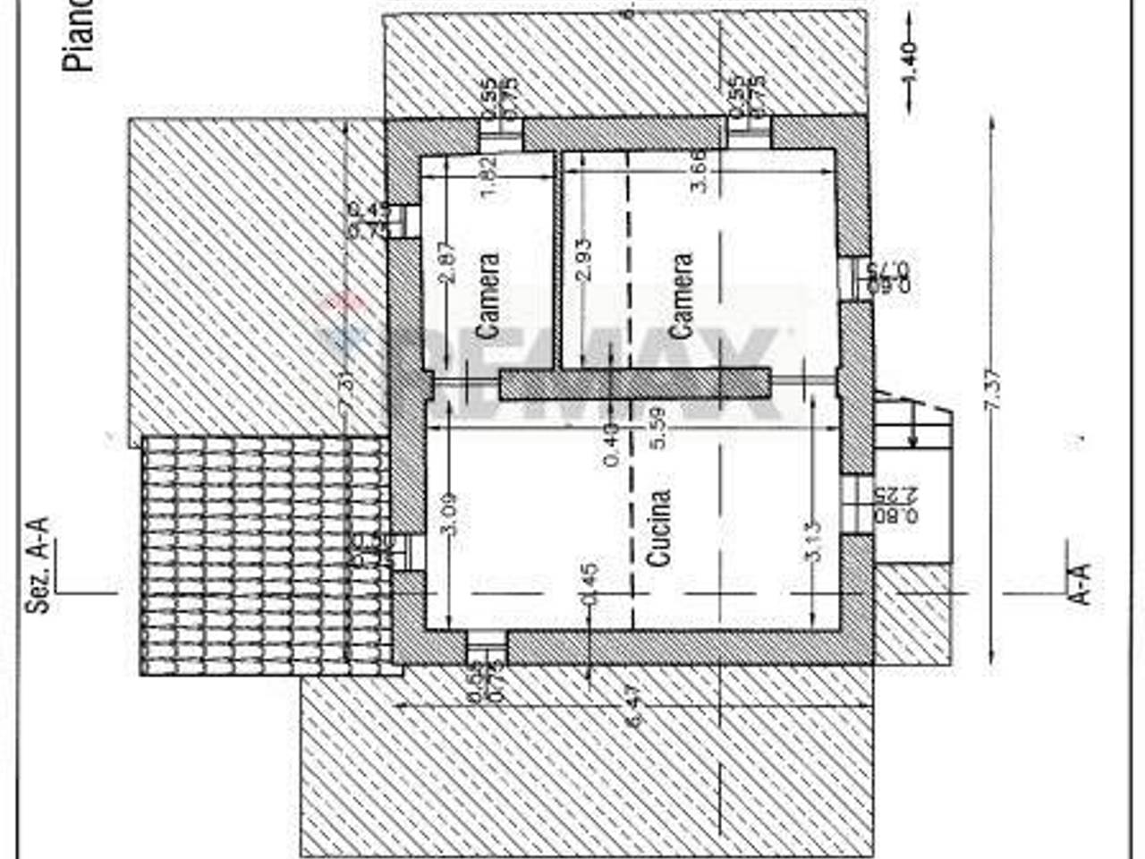
DESCRIZIONE
da ristrutturare con cantina con giardino da ristrutturare con cucina abitabile
Un sogno da ricostruire – Rustico con uliveto ad Avenale di Cingoli Nel cuore verde delle Marche, dove le colline disegnano orizzonti silenziosi e il tempo si misura in stagioni, sorge — come un sussurro del passato — un rustico del 1800, in attesa di nuova vita. Ad Avenale, una delle frazioni più poetiche di Cingoli, questo antico casolare racconta ancora, tra le sue pietre da ricostruire, storie di campagna, tramonti infuocati e giorni semplici vissuti in armonia con la terra. La struttura, disposta su due livelli per un totale di 155 mq, offre la possibilità di realizzare un'abitazione dal fascino autentico: un ampio soggiorno dove far entrare la luce, una cucina abitabile per cene sincere, due camere da letto e un bagno al piano superiore. Il piano terra, con cinque vani cantina, si presta a diventare un secondo spazio abitativo, uno studio artistico o un'accogliente dependance, completata da un magazzino staccato che aggiunge valore e funzionalità. Ma è all'esterno che questa proprietà rivela la sua anima più vera: un giardino privato di circa 2000 mq circonda il rustico, aprendo lo sguardo su paesaggi che incantano in ogni stagione. Poco oltre, un terreno adiacente di oltre 6000 mq accoglie ulivi secolari che raccontano di cura, di tempo e di radici profonde — un luogo perfetto per coltivare la terra o semplicemente lasciarla vivere, come parte integrante del proprio rifugio. Questo rustico è molto più di un immobile da ristrutturare: è una tela bianca su cui disegnare la propria idea di bellezza, di silenzio e di casa. Un'occasione rara per chi desidera vivere circondato dalla natura, in un angolo autentico delle Marche, a pochi minuti dal centro di Cingoli ma lontano dal rumore del mondo





