Valutazione immobiliare indipendente, accurata e gratuita
L'Opinione di Caasa® per l'appartamento a San Benedetto del Tronto in zona Sentina a 235.000 € (cod.658b97a9)
Secondo Caasa, per l'appartamento a San Benedetto del Tronto Sentina, la richiesta di 235.000 € è significativamente svantaggiosa rispetto agli annunci simili.
Analisi immobiliare
L'appartamento, situato vicino a Via dei Mille nella zona OMI C4, è proposto in vendita (da Agenzia la mer) a
235.000 € per una
superficie commerciale di
44 m² e quindi ad un prezzo per metro quadrato pari a
5340 €/m²
.
Tale prezzo
è meno conveniente di quello stimato da Caasa per immobili in vendita simili per tipologia, caratteristiche, classe energetica e localizzati nella stessa zona OMI, che è compreso tra
4.259 €/m² e
4.606 €/m².
La conoscenza con buona approssimazione della localizzazione dell'immobile ha consentito di utilizzare come raffronto i dati medi elaborati esattamente nella zona OMI di appertenenza (LUNGOMARE SUD FINO ALL`ASSE FERROVIARIO) per appartamenti (da 1.980 €/m² a 4.300 €/m²) e per bivani (da 1.970 €/m² a 3.955 €/m²). Inoltre, Caasa ha potuto affinare la stima anche con la conoscenza della classe energetica (A+) oltre che dello stato dell'immobile (di nuova costruzione) e di alcune caratteristiche significative come il garage. In virtù di queste considerazioni i valori accettabili per l'offerta costituiscono un intervallo abbastanza limitato.
Mercato immobiliare a San Benedetto del Tronto
Per quanto riguarda più in generale la città di San Benedetto del Tronto, sono presenti al momento ben circa 2.000 annunci per
appartamenti in vendita (quasi il 40% dell'intera provincia)
e il maggior numero di annunci per questa tipologia sono relativi proprio alla zona di Sentina.
Per quanto riguarda la richiesta media in zona Sentina, dove sorge l'appartamento (pressi Via dei Mille), essa è pari a circa
3.100 €/m² per appartamenti in vendita.
Relativamente alla dinamica dei prezzi, possiamo dire che negli ultimi 6 mesi i prezzi medi in tutta la città per appartamenti in vendita sono
sostanzialmente stabili (+0,19%).
NOVITÀ Il risultato che vedi dipende dai dati che siamo riusciti ad estrarre dall'annuncio: ottieni una stima più accuranta di questo immobile, inserendo dati più precisi.
N.B. L'Opinione di Caasa® è un servizio sperimentale realizzato tramite tecniche di Intelligenza Artificiale, fornito senza alcuna garanzia di correttezza e completezza. Leggi il disclaimer o segnalaci un problema.
IMMAGINI
IN SINTESI
DESCRIZIONE
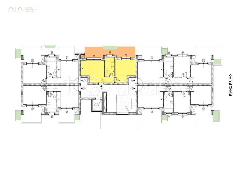
di nuova costruzione con balcone con posto auto con garage con angolo cottura di nuova costruzione
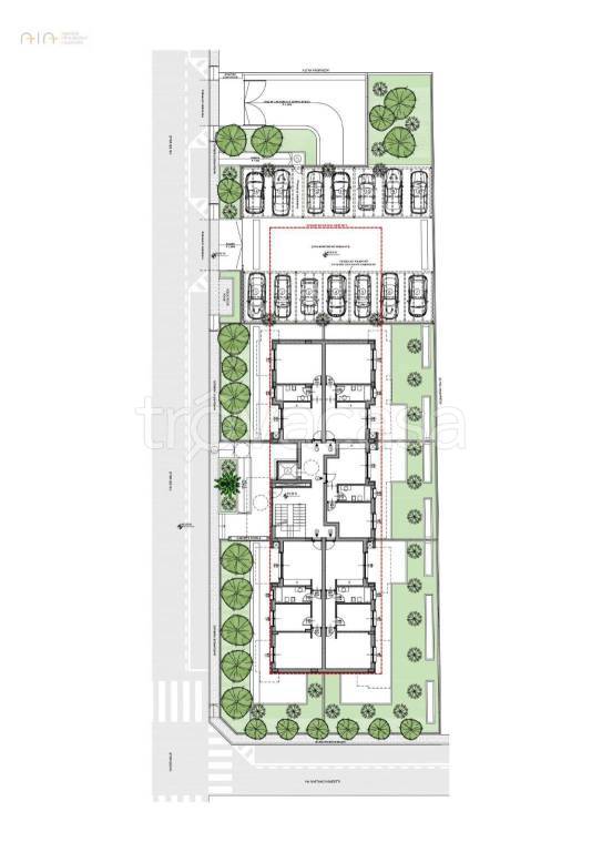
Proponiamo in vendita un appartamento in fase di costruzione, con consegna prevista per la primavera 2027, situato nella zona sud di San Benedetto del Tronto, in 2° fila a solo 50 mt dalla spiaggia e dal lungomare Rinascimento. Una nuova costruzione di 5 piani dal design moderno ed accattivante, che si distingue per le sue ottime e pregiate rifiniture di alto livello, con che garantirà un elevato comfort e un notevole risparmio energetico. L'appartamento, interno 8, di 42 metri quadrati si trova al piano 1°ed è composto da un luminoso soggiorno con angolo cottura, una camera matrimoniale e un bagno con doccia. Inoltre, l'immobile vanta di 2 balconi abitabili per totali 17 mq metri quadrati , ideali per trascorrere piacevoli momenti all'aria aperta. Dispone di posti auto scoperti al costo di € 20.000 cadauno e di garage a partire da € 42.000 (21 mq). Ideale come residenza estiva per godere delle splendide spiagge di San Benedetto del Tronto o come investimento per affitti turistici di prestigio. Non perdere l'opportunità di possedere questo nuovo e moderno appartamento, posizionato in una delle aree più esclusive della città, a soli due passi dalle spiagge più belle della costa adriatica





