Valutazione immobiliare indipendente, accurata e gratuita
L'Opinione di Caasa® per l'appartamento in vendita a San Benedetto del Tronto a 220.000 € (cod.652a2ad6)
Secondo Caasa, per l'appartamento in vendita a San Benedetto del Tronto, la richiesta di 220.000 € è equilibrata rispetto agli annunci simili.
Analisi immobiliare
L'appartamento, situato nella zona OMI C1, è proposto in vendita (da Immobiliare Calderisi) a
220.000 € per una
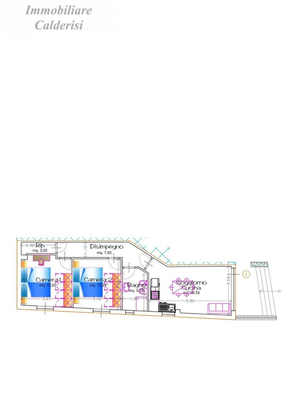
superficie commerciale di
73 m² e quindi ad un prezzo per metro quadrato pari a
3013 €/m²
.
Questo prezzo
è in linea con quello stimato da Caasa per immobili in vendita simili per tipologia e caratteristiche, presenti nella stessa zona, che è compreso tra
2.743 €/m² e
3.092 €/m².
Data la posizione dell'appartamento sono stati utilizzati come raffronto i valori medi nelle zone limitrofe . Caasa non è stata in grado di determinare la classe energetica, ma ad affinare la stima ha contribuito però anche lo stato dell'immobile (di recente costruzione). Per queste considerazioni l'intervallo dei valori possibili per l'offerta è relativamente ampio.
Mercato immobiliare a San Benedetto del Tronto
Per quanto riguarda più in generale la città di San Benedetto del Tronto, sono presenti al momento ben circa 2.000 annunci per
appartamenti in vendita (quasi il 40% dell'intera provincia)
e il maggior numero di annunci per questa tipologia sono relativi alla zona di Sentina.
Possiamo inoltre considerare che in tutta la città negli ultimi 6 mesi, i prezzi per appartamenti in vendita sono
sostanzialmente stabili (+0,19%).
NOVITÀ Il risultato che vedi dipende dai dati che siamo riusciti ad estrarre dall'annuncio: ottieni una stima più accuranta di questo immobile, inserendo dati più precisi.
N.B. L'Opinione di Caasa® è un servizio sperimentale realizzato tramite tecniche di Intelligenza Artificiale, fornito senza alcuna garanzia di correttezza e completezza. Leggi il disclaimer o segnalaci un problema.
IMMAGINI
IN SINTESI
PROPOSTO DA:
Immobiliare Calderisi
Viale a. De gasperi 54, San Benedetto del Tronto (AP)
DESCRIZIONE
di recente costruzione con termocondizionamento con riscaldamento autonomo con angolo cottura di nuova costruzione di recente costruzione
L'agenzia immobiliare Calderisi propone In una delle zone pi ricercate di San Benedetto del Tronto, precisamente nel centro sud, questo moderno appartamento in vendita. La sua posizione strategica lo rende ideale per chi desidera vivere in una zona residenziale, ma allo stesso tempo ben servita e vicina a tutti i principali servizi e al mare. L'appartamento, libero al rogito, si trova al piano rialzato di un edificio di recente costruzione, datato 2017 con ingresso indipendente. L'entrata principale conduce direttamente al luminoso soggiorno, che grazie alla doppia esposizione gode di una splendida luce naturale durante tutto il giorno. La cucina, a vista e dotata di angolo cottura, si affaccia sul soggiorno, creando un ambiente conviviale e moderno. La zona notte composta da due camere da letto e da un bagno, entrambi arredati con gusto e dotati di ogni comfort. Tutti gli ambienti dell'appartamento sono caratterizzati da un impianto di riscaldamento autonomo a metano e da un sistema di pavimento/battiscopa, che garantiscono un'ottima efficienza energetica e un elevato comfort abitativo. Gli infissi in PVC con taglio termico garantiscono un'ottima isolamento acustico e termico, mentre la presenza di un sistema di allarme aumenta la sicurezza dell'immobile. Lo stato di conservazione dell'appartamento ottimo, pari al nuovo. L'arredamento moderno e di design, incluso nella vendita, rende l'immobile subito pronto per essere abitato. In sintesi, questo appartamento di circa 75 mq, la soluzione ideale per chi cerca un'abitazione moderna, funzionale e ben posizionata a San Benedetto del Tronto. Non perdere l'occasione di acquistare il tuo nuovo nido, libero al rogito, nel cuore della citt. Agenzia immobiliare Calderisi. 0735 86939 - SC9574914









