Valutazione immobiliare indipendente, accurata e gratuita
Casa indipendente in vendita a Ripatransone a 50.000 € (cod.658f44d5)
Caasa non ha sufficienti informazioni per commentare la casa indipendente in vendita a Ripatransone - 658f44d5.
Analisi immobiliare
I dati in posseso di Caasa per quest'immobile sono insufficienti, inaffidabili o contraddittori per proporre un'analisi attendibile.
Mercato immobiliare a Ripatransone
Per quanto riguarda più in generale il comune di Ripatransone, sono presenti al momento più di 200 annunci per
case indipendenti in vendita (meno del 5% dell'intera provincia) .
Relativamente alla dinamica dei prezzi, possiamo dire che negli ultimi 6 mesi i prezzi medi in tutto il comune per case indipendenti in vendita sono
in debole aumento (+1,45%).
NOVITÀ Il risultato che vedi dipende dai dati che siamo riusciti ad estrarre dall'annuncio: ottieni una stima più accuranta di questo immobile, inserendo dati più precisi.
N.B. L'Opinione di Caasa® è un servizio sperimentale realizzato tramite tecniche di Intelligenza Artificiale, fornito senza alcuna garanzia di correttezza e completezza. Leggi il disclaimer o segnalaci un problema.
IMMAGINI
IN SINTESI
PROPOSTO DA:
DiLeoImmobiliare di Maria Luisa Di Leo
Via Pasubio, 10, San Benedetto del Tronto (AP)
Verificata da Caasa®
DESCRIZIONE
da ristrutturare da ristrutturare con termocondizionamento con cantina con riscaldamento autonomo con balcone senza ascensore
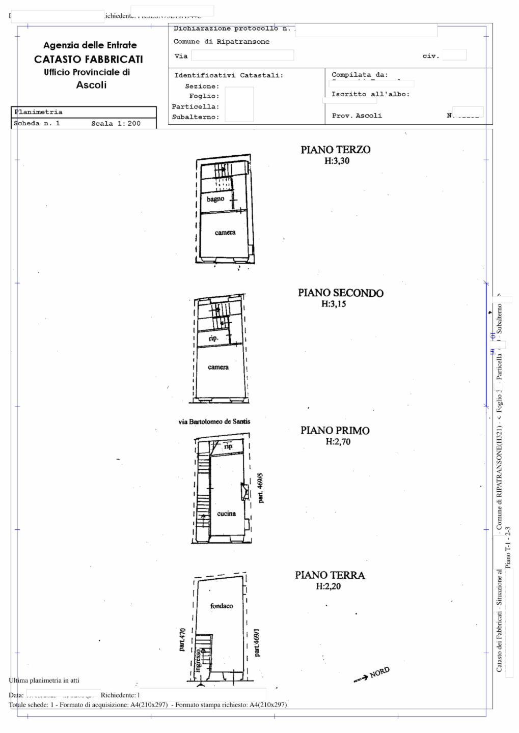
RIPATRANSONE - STORICA RESIDENZA - Nell'antico e vivace borgo medioevale, con vista sui tetti storici e sui monti Sibillini, casa cielo terra in aderenza ad altri fabbricati. L'abitazione di mq 124 di superficie catastale sviluppata su quattro livelli è così composta: un fondaco al piano terra; un'ampia cucina e ripostiglio/bagno al primo piano; una camera da letto e ripostiglio/bagno al secondo piano; una camera da letto e bagno al terzo ed ultimo piano. La proprietà include inoltre un locale rimessa con ingresso autonomo di circa 25 mq caratterizzato dalla presenza di antiche botti di cemento. Seppur strutturalmente si presenta bene, la casa necessita di restauro con possibilità di recuperare i materiali originali come il cotto antico e integrare tecnologie moderne come impianti di riscaldamento a pavimento e sistemi di condizionamento. L'immobile è sottoposto al vincolo dei Centri storici. Rif. 7029 www.dileoimmobiliare.it













