Valutazione immobiliare indipendente, accurata e gratuita

Casa indipendente in vendita a Monteprandone in zona Centobuchi a 295.000 € (cod.64eac3db)

Caasa non ha sufficienti informazioni per commentare la casa indipendente a Monteprandone Centobuchi - 64eac3db.

Analisi immobiliare
I dati in posseso di Caasa per quest'immobile sono insufficienti, inaffidabili o contraddittori per proporre un'analisi attendibile.
Mercato immobiliare a Monteprandone
Per quanto riguarda più in generale il comune di Monteprandone, sono presenti al momento più di 300 annunci per case indipendenti in vendita (meno del 10% dell'intera provincia) e il maggior numero di annunci per questa tipologia sono relativi proprio alla zona di Centobuchi.
Per quanto riguarda la richiesta media in zona Centobuchi, dove sorge la casa indipendente, essa è pari a circa 1.245 €/m² per case indipendenti in vendita.
La dinamica dei prezzi in tutto il comune mostra che negli ultimi 6 mesi, i prezzi per case indipendenti in vendita sono in calo (-4,85%).

NOVITÀ Il risultato che vedi dipende dai dati che siamo riusciti ad estrarre dall'annuncio: ottieni una stima più accuranta di questo immobile, inserendo dati più precisi.

N.B. L'Opinione di Caasa® è un servizio sperimentale realizzato tramite tecniche di Intelligenza Artificiale, fornito senza alcuna garanzia di correttezza e completezza. Leggi il disclaimer o segnalaci un problema.

IMMAGINI

IN SINTESI

Prezzo:
295.000 €
Superficie:
195 m²
Prezzo al m²:
1512 €/m²
Piano:
terra
Bagni:
2
Classe energetica:
A
Città:
Monteprandone (AP)
Zona OMI:
D1 (CENTOBUCHI E DINTORNI)
Indirizzo:
Pubblicato:
dom 29 settembre 2024

PROPOSTO DA:

Centro Servizi Immobiliari (Sara Citeroni)

DESCRIZIONE

di nuova costruzione con posto auto con giardino con garage con balcone con cantina con cucina abitabile

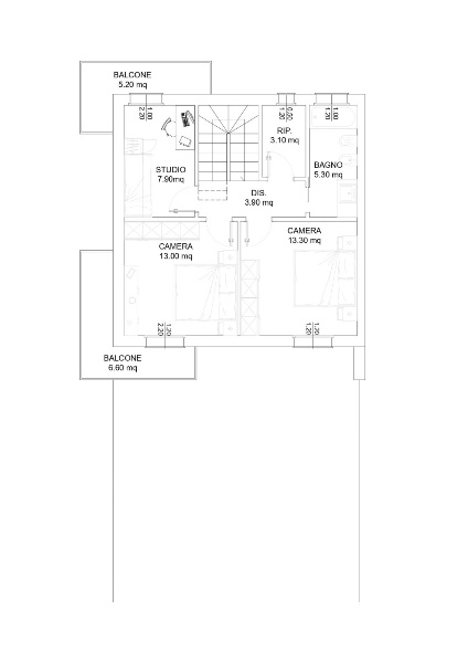
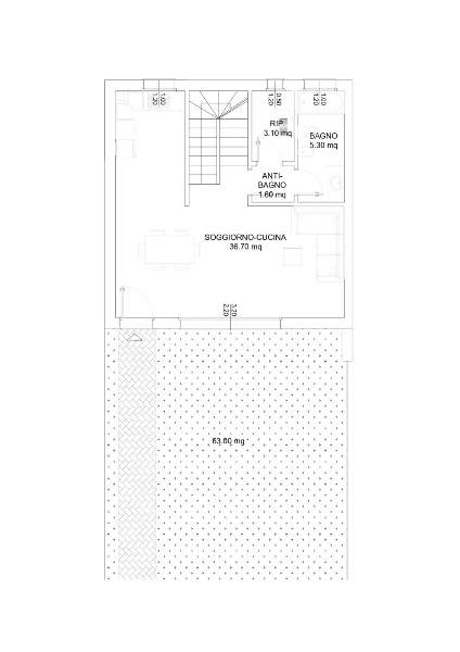
CENTOBUCHI (AP) - Proponiamo in vendita villino a schiera di testa di 190 mq totali di nuova costruzione in zona San Donato a Monteprandone. L'edificio sarà interamente costruito in bioedilizia, ovvero presenterà struttura portante in legno, coibentazione in calce e canapa, alimentazione tramite impianto fotovoltaico. Il villino a schiera, avente ingresso indipendente e giardino privato, sarà disposto su tre livelli, ognuno di circa 65 mq: - piano terra composto da living, cucina abitabile separata, bagno di servizio e ripostiglio; - primo piano con zona notte composta da tre camere, un bagno e due balconi; - seminterrato da adibire a garage/magazzino. La richiesta per il villino di testa, che include costo di acquisto del terreno, oneri comunali e tecnici, costruzione (CHIAVI IN MANO) è di € 295.000

  • yescasa.it
  • easyavvisi.it
  • vetrinaannunci.com