Valutazione immobiliare indipendente, accurata e gratuita
Terreno edificabile a Monsampolo del Tronto in zona Stella a 142.000 € (cod.6565a82f)
Caasa non ha sufficienti informazioni per commentare il terreno edificabile a Monsampolo del Tronto Stella - 6565a82f.
Analisi immobiliare
I dati in posseso di Caasa per quest'immobile sono insufficienti, inaffidabili o contraddittori per proporre un'analisi attendibile.
Mercato immobiliare a Monsampolo del Tronto
Per quanto riguarda più in generale il comune di Monsampolo del Tronto, sono presenti al momento più di trenta annunci per
terreni edificabili in vendita (meno del 5% dell'intera provincia)
e il maggior numero di annunci per questa tipologia sono relativi proprio alla zona di Stella.
Vedi altre informazioni direttamente su
Mercato-Immobiliare.info
NOVITÀ Il risultato che vedi dipende dai dati che siamo riusciti ad estrarre dall'annuncio: ottieni una stima più accuranta di questo immobile, inserendo dati più precisi.
N.B. L'Opinione di Caasa® è un servizio sperimentale realizzato tramite tecniche di Intelligenza Artificiale, fornito senza alcuna garanzia di correttezza e completezza. Leggi il disclaimer o segnalaci un problema.
IMMAGINI
IN SINTESI
DESCRIZIONE
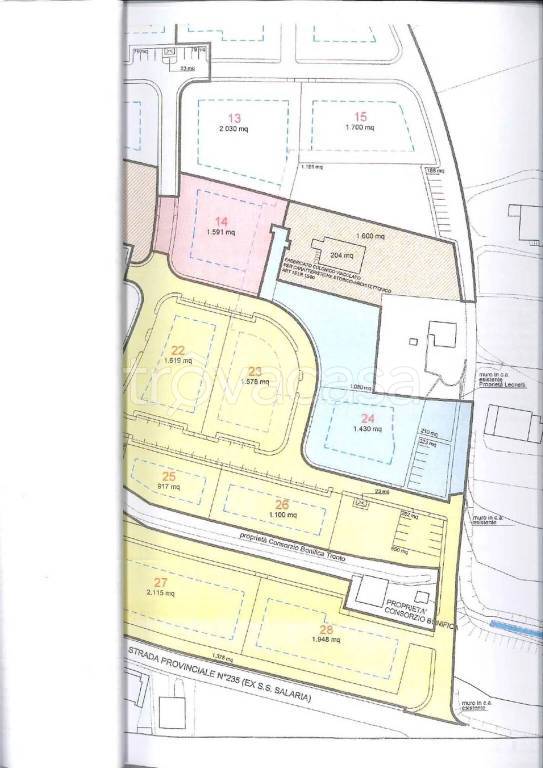
Terreno edificabile ubicato a Stella di Monsanpolo del Tronto località Carpineto a 500 mt. dalla stazione ferroviaria "Monsanpolo Del Tronto" a 1,5 KM. dall'uscita Monsanpolo del raccordo autostradale " Ascoli Piceno-Porto D'Ascoli. Il Lotto in vendita fa parte del Piano Attuativo in variante Urbanistica finalizzato alla realizzazione di edifici residenziali. altezza massima, 8,5 mt, superficie edificabile mq. 8400. posibilità di vendita frazionata per lotti. Lotto minimo mq. 950 per un volume di 1298 mc prezzo per mc euro 110,00. totale 142.000, 00 per info

