Valutazione immobiliare indipendente, accurata e gratuita
Locale di sgombero in affitto a Grottammare a 800 € mese (cod.6564a70a)
Caasa non ha sufficienti informazioni per commentare il locale di sgombero in affitto a Grottammare - 6564a70a.
Analisi immobiliare
I dati in posseso di Caasa per quest'immobile sono insufficienti, inaffidabili o contraddittori per proporre un'analisi attendibile.
Mercato immobiliare a Grottammare
Per quanto riguarda più in generale la città di Grottammare, sono presenti al momento meno di dieci annunci per
locali di sgombero in affitto (meno del 5% dell'intera provincia)
e il maggior numero di annunci per questa tipologia sono relativi alla zona di Ischia.
Vedi altre informazioni direttamente su
Mercato-Immobiliare.info
NOVITÀ Il risultato che vedi dipende dai dati che siamo riusciti ad estrarre dall'annuncio: ottieni una stima più accuranta di questo immobile, inserendo dati più precisi.
N.B. L'Opinione di Caasa® è un servizio sperimentale realizzato tramite tecniche di Intelligenza Artificiale, fornito senza alcuna garanzia di correttezza e completezza. Leggi il disclaimer o segnalaci un problema.
IMMAGINI
IN SINTESI
DESCRIZIONE
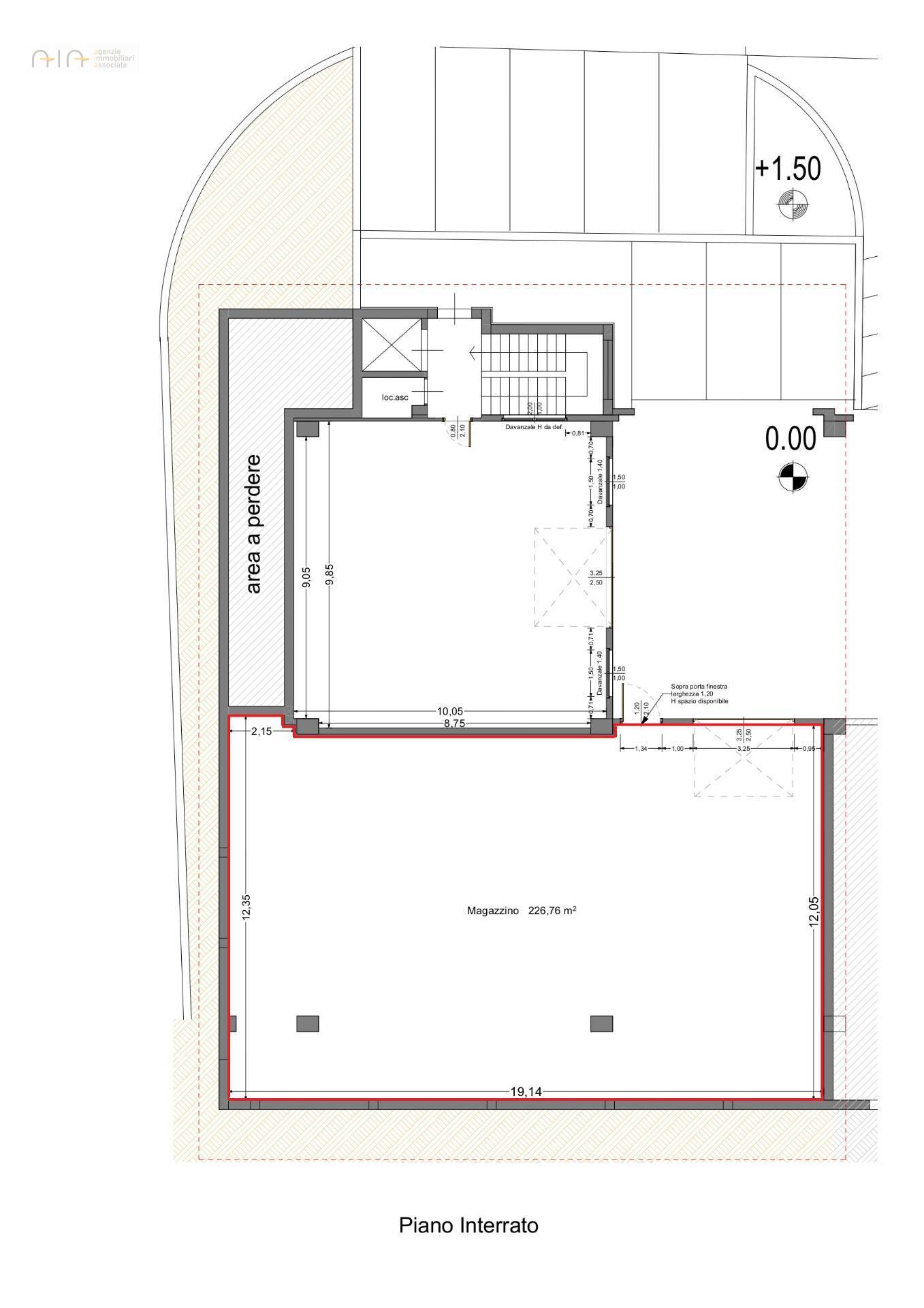
Si concede in locazione magazzino/deposito costituito da un unico vano di mq 227 circa sito al piano interrato di una struttura a carattere principalmente direzionale/commerciale, posta in prima fila sulla SS16 a poca distanza dall'uscita autostradale. Il locale, avente altezza interna di 3 metri, ha un comodo accesso carrabile dotato di serranda ad apertura automatica per il carico/scarico del materiale da immagazzinare (non è possibile al suo interno lasciare parcheggiati mezzi motorizzati (auto-van-furgoni-etc..). Disponibilità di parcheggio nell'area antistante il locale


