Valutazione immobiliare indipendente, accurata e gratuita

Casa indipendente in vendita a Castorano (cod.64eac372)

Caasa non ha sufficienti informazioni per commentare la casa indipendente in vendita a Castorano - 64eac372.

Analisi immobiliare
I dati in posseso di Caasa per quest'immobile sono insufficienti, inaffidabili o contraddittori per proporre un'analisi attendibile.
Mercato immobiliare a Castorano
Per quanto riguarda più in generale il comune di Castorano, sono presenti al momento più di cinquanta annunci per case indipendenti in vendita (meno del 5% dell'intera provincia) .

Possiamo inoltre considerare che in tutto il comune negli ultimi 6 mesi, i prezzi per case indipendenti in vendita sono in leggero aumento (+2,61%).

NOVITÀ Il risultato che vedi dipende dai dati che siamo riusciti ad estrarre dall'annuncio: ottieni una stima più accuranta di questo immobile, inserendo dati più precisi.

N.B. L'Opinione di Caasa® è un servizio sperimentale realizzato tramite tecniche di Intelligenza Artificiale, fornito senza alcuna garanzia di correttezza e completezza. Leggi il disclaimer o segnalaci un problema.

IMMAGINI

IN SINTESI

Prezzo:
nd
Superficie:
n.d. m²
Piano:
terra
Bagni:
7
Classe energetica:
n.d.
Città:
Castorano (AP)
Zona OMI:
R1 (PORZIONE AGRICOLA DEL TERRITORIO)
Indirizzo:
Pubblicato:
sab 5 luglio 2025

PROPOSTO DA:

logo DiLeoImmobiliare di Maria Luisa Di Leo

DiLeoImmobiliare di Maria Luisa Di Leo

Via Pasubio, 10, San Benedetto del Tronto (AP)

Verificata da Caasa®

Vai ai contatti

DESCRIZIONE

con giardino con cantina con cucina abitabile

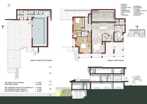
CASTORANO - In splendida posizione con suggestiva vista tra le montagne e le colline marchigiane, meravigliosa villa indipendente disposta su quattro livelli per complessivi mq 720 oltre esterni (terrazzi e porticato per mq totali 382) e giardino ter […]

  • yescasa.it