Valutazione immobiliare indipendente, accurata e gratuita
Appartamento in vendita ad Ascoli Piceno in zona Porta Maggiore (cod.65373a76)
Caasa non ha sufficienti informazioni per commentare l'appartamento ad Ascoli Piceno Porta Maggiore - 65373a76.
Analisi immobiliare
I dati in posseso di Caasa per quest'immobile sono insufficienti, inaffidabili o contraddittori per proporre un'analisi attendibile.
Mercato immobiliare ad Ascoli Piceno
Per quanto riguarda più in generale la città di Ascoli Piceno, sono presenti al momento ben circa mille annunci per
appartamenti in vendita (quasi il 20% dell'intera provincia)
e il maggior numero di annunci per questa tipologia sono relativi alla zona di Centro Storico, mentre la zona di Porta Maggiore risulta molto meno attiva considerando il numero di annunci presenti.
La richiesta media nella zona dove sorge l'appartamento (Porta Maggiore pressi Via Perugia) è pari a
1.685 €/m², molto vicina ai valori della zona Centro Storico che sono i più alti della città .
Possiamo inoltre considerare che in tutta la città negli ultimi 6 mesi, i prezzi per appartamenti in vendita sono
in sostanziale aumento (+5,36%).
NOVITÀ Il risultato che vedi dipende dai dati che siamo riusciti ad estrarre dall'annuncio: ottieni una stima più accuranta di questo immobile, inserendo dati più precisi.
N.B. L'Opinione di Caasa® è un servizio sperimentale realizzato tramite tecniche di Intelligenza Artificiale, fornito senza alcuna garanzia di correttezza e completezza. Leggi il disclaimer o segnalaci un problema.
IMMAGINI
IN SINTESI
PROPOSTO DA:
FONDOCASA AFFILIATO AGENZIA ITALIA IMMOBILIARE DI URRIANI ANGELO
VIA TRE OTTOBRE,1/C, Ascoli Piceno (AP)
Verificata da Caasa®
DESCRIZIONE
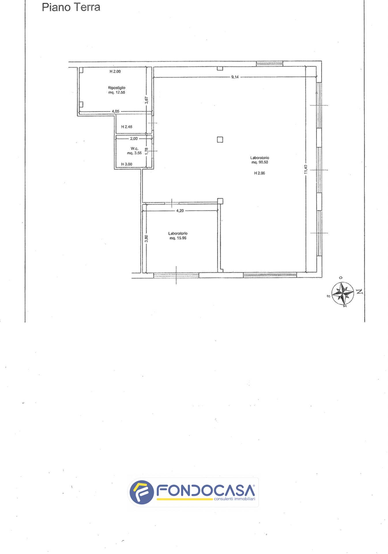
Proponiamo in vendita ad Ascoli Piceno, nella zona di Porta Maggiore, un ampio e luminoso box/magazzino di circa130 metri quadrati. L'immobile si trova in una posizione strategica, a pochi passi dai principali servizi e vie di comunicazione della città. Dispone di 6 locali, che possono essere adattati alle diverse esigenze dell'acquirente, e può essere utilizzato anche come laboratorio o spazio commerciale. L'acquisto di questo immobile rappresenta un'ottima opportunità per chi è alla ricerca di uno spazio ampio e versatile, situato in una posizione di grande comodità. Dotato di 3 accessi carrabili al piano strada, allaccio elettrico ed idrico, oltre ad un bagno. Per ulteriori informazioni o per fissare una visita contattare l'agenzia



