Valutazione immobiliare indipendente, accurata e gratuita
L'Opinione di Caasa® per l'appartamento in vendita a Sirolo a 290.000 € (cod.65223e93)
Secondo Caasa, per l'appartamento in vendita a Sirolo, la richiesta di 290.000 € è equilibrata rispetto agli annunci simili.
Analisi immobiliare
L'appartamento, situato nella zona OMI D2, è proposto in vendita a
290.000 € per una
superficie commerciale di
69 m² e quindi ad un prezzo per metro quadrato pari a
4202 €/m²
.
Tale valore
è molto vicino a quello stimato da Caasa per immobili in vendita simili per tipologia, caratteristiche, classe energetica e localizzati nella stessa zona OMI, che è compreso tra
4.039 €/m² e
4.284 €/m².
La conoscenza con buona approssimazione della localizzazione dell'immobile ha consentito di utilizzare come raffronto i dati medi elaborati esattamente nella zona OMI di appertenenza (ADIACENZE CENTRO STORICO E ZONE DI ESPANSIONE). Inoltre, Caasa ha potuto affinare la stima anche con la conoscenza della classe energetica (A) oltre che dello stato dell'immobile (di nuova costruzione) e di alcune caratteristiche significative come la disponibilità di una cantina o il posto auto. Per queste considerazioni i valori accettabili per l'offerta costituiscono un intervallo abbastanza limitato.
Mercato immobiliare a Sirolo
Per quanto riguarda più in generale il comune di Sirolo, sono presenti al momento più di 150 annunci per
appartamenti in vendita (meno del 5% dell'intera provincia)
e il maggior numero di annunci per questa tipologia sono relativi alla zona di Coppo.
La dinamica dei prezzi in tutto il comune mostra che negli ultimi 6 mesi, i prezzi per appartamenti in vendita sono
in aumento (+4,52%).
NOVITÀ Il risultato che vedi dipende dai dati che siamo riusciti ad estrarre dall'annuncio: ottieni una stima più accuranta di questo immobile, inserendo dati più precisi.
N.B. L'Opinione di Caasa® è un servizio sperimentale realizzato tramite tecniche di Intelligenza Artificiale, fornito senza alcuna garanzia di correttezza e completezza. Leggi il disclaimer o segnalaci un problema.
IMMAGINI
IN SINTESI
PROPOSTO DA:
PRIMA SERVIZI IMMOBILIARI
DESCRIZIONE
di nuova costruzione con posto auto con terrazza di nuova costruzione con cantina con balcone con termocondizionamento con riscaldamento autonomo
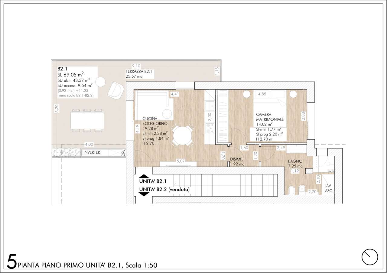
Rif.354-B1PSQ Sirolo, a pochi minuti a piedi dal centro e dalle spiagge, proponiamo in vendita un appartamento di 69 mq posto al primo piano in un contesto quadrifamiliare. L'appartamento è composto da zona open space con soggiorno e cucina a vista e accesso diretto su una terrazza di 25 mq circa; la zona notte è composta da una camera matrimoniale ed un bagno con doccia finestrato. Completa l'immobile un posto auto, una cantina ed impianto fotovoltaico. Classe energetica A Nuova costruzione in consegna a breve, con finiture interne ancora personalizzabili. Complesso Ca' Peschiera: lottizzazione di 8 palazzine residenziali con accesso da vialetto privato e posti auto privati in aggiunta a quelli di proprietà. MANDATO A TITOLO ONEROSO, NO PROVVIGIONI DA CHI ACQUISTA Sei interessato a questo immobile? Il codice di riferimento è 354-B1PSQ, contatta Prima Immobiliare per ulteriori dettagli. Chiamaci subito al 0712905445 o scrivici a info@immobiliareprima.it I nostri agenti sono a tua completa disposizione


