Valutazione immobiliare indipendente, accurata e gratuita
Casa indipendente in vendita a Senigallia in zona Montignano a 950.000 € (cod.65698148)
Caasa non ha sufficienti informazioni per commentare la casa indipendente a Senigallia in zona Montignano - 65698148.
Analisi immobiliare
I dati in posseso di Caasa per quest'immobile sono insufficienti, inaffidabili o contraddittori per proporre un'analisi attendibile.
Mercato immobiliare a Senigallia
Per quanto riguarda più in generale la città di Senigallia, sono presenti al momento oltre 500 annunci per
case indipendenti in vendita (quasi il 20% dell'intera provincia)
e il maggior numero di annunci per questa tipologia sono relativi alla zona di Marzocca, ma anche la zona di Montignano è molto attiva dal punto di vista immobiliare.
La richiesta media nella zona dove sorge la casa indipendente (Montignano pressi Via Villanova) è pari a
1.395 €/m², molto vicina ai valori della zona Cesano che sono i più alti della città .
Per quanto riguarda la dinamica dei prezzi, negli ultimi 6 mesi i prezzi medi in tutta la città per case indipendenti in vendita sono
in sostanziale calo (-5,78%).
NOVITÀ Il risultato che vedi dipende dai dati che siamo riusciti ad estrarre dall'annuncio: ottieni una stima più accuranta di questo immobile, inserendo dati più precisi.
N.B. L'Opinione di Caasa® è un servizio sperimentale realizzato tramite tecniche di Intelligenza Artificiale, fornito senza alcuna garanzia di correttezza e completezza. Leggi il disclaimer o segnalaci un problema.
IMMAGINI
IN SINTESI
PROPOSTO DA:
Elite Studio Immobiliare
DESCRIZIONE
con cantina con giardino con termocondizionamento con riscaldamento autonomo
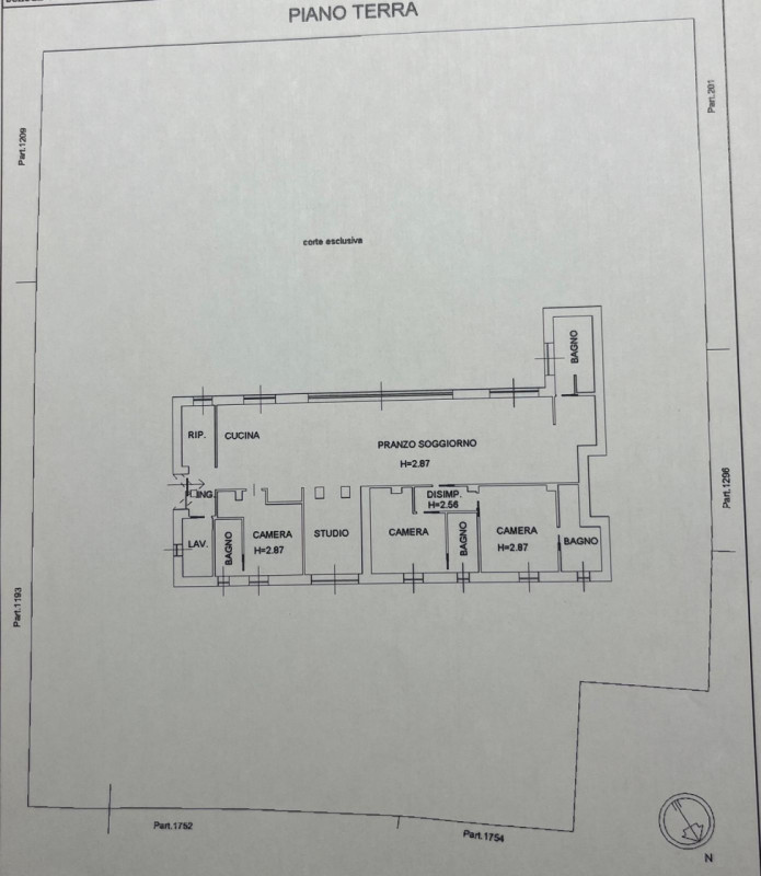
Scopri questa straordinaria villa moderna situata nella tranquilla zona di Montignano, nel comune di Senigallia. Con una superficie complessiva di 200 mq, questa proprietà è stata finita di costruire nel 2024 e offre prestazioni energetiche A4 grazie all'installazione dei pannelli solari e fotovoltaico. La villa si sviluppa interamente su un piano, garantendo accessibilità e comodità. All'interno troverai tre spaziose camere da letto, perfette per il riposo e la privacy della tua famiglia, oltre a uno studio ideale per chi lavora da casa o desidera uno spazio dedicato alla creatività. La presenza di tre bagni moderni assicura comfort anche durante le ore più intense della giornata. Non mancano utili spazi come un comodo ripostiglio e una zona lavanderia ben attrezzata. All'esterno potrai godere dell'incantevole piscina privata dotata di area spogliatoio e bagno annesso - il luogo perfetto per rilassarsi nei caldi pomeriggi estivi. La corte circostante permette il parcheggio agevole di più auto, rendendo la gestione degli ospiti semplice ed efficace. Montignano è nota per la sua tranquillità ma anche per la vicinanza alle splendide spiagge dorate di Senigallia, famose non solo in Italia ma anche all’estero. Potrai godere delle bellezze naturali del territorio marchigiano pur rimanendo vicino ai servizi essenziali quali negozi, scuole e ristoranti tipici locali. Le immagini presenti nell’annuncio includono render a scopo illustrativo e progettuale; eventuali arredi, finiture e soluzioni rappresentate sono da intendersi come ipotesi di progetto e non costituiscono elemento contrattuale. Non perdere l'opportunità unica di possedere questa magnifica villa! Contatta subito l'agenzia Elite per maggiori informazioni o per prenotare una visita. E' una esclusiva d'ELITE







