Valutazione immobiliare indipendente, accurata e gratuita
Casa indipendente in vendita a Senigallia a 440.000 € (cod.64f55688)
Caasa non ha sufficienti informazioni per commentare la casa indipendente in vendita a Senigallia - 64f55688.
Analisi immobiliare
I dati in posseso di Caasa per quest'immobile sono insufficienti, inaffidabili o contraddittori per proporre un'analisi attendibile.
Mercato immobiliare a Senigallia
Per quanto riguarda più in generale la città di Senigallia, sono presenti al momento oltre 500 annunci per
case indipendenti in vendita (quasi il 20% dell'intera provincia)
e il maggior numero di annunci per questa tipologia sono relativi alla zona di Marzocca.
Per quanto riguarda la dinamica dei prezzi, negli ultimi 6 mesi i prezzi medi in tutta la città per case indipendenti in vendita sono
in leggero aumento (+2,52%).
NOVITÀ Il risultato che vedi dipende dai dati che siamo riusciti ad estrarre dall'annuncio: ottieni una stima più accuranta di questo immobile, inserendo dati più precisi.
N.B. L'Opinione di Caasa® è un servizio sperimentale realizzato tramite tecniche di Intelligenza Artificiale, fornito senza alcuna garanzia di correttezza e completezza. Leggi il disclaimer o segnalaci un problema.
IMMAGINI
IN SINTESI
DESCRIZIONE
con posto auto con garage
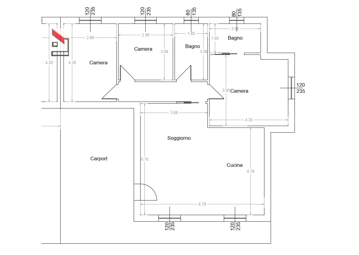
Esclusiva di vendita. Senigallia a 1 km dal centro storico. Prossima realizzazione di due villette monofamiliari su un unico piano, per complessivi 110 mq. Composte da: ingresso, ampio soggiorno con cucina a vista, tre camere, due bagni con finestra, rispettive corti di 435 mq e 600 mq, comprensive di posto auto coperto. ottimo capitolato. Per ulteriori informazioni chiamare in agenzia


