Valutazione immobiliare indipendente, accurata e gratuita
Appartamento in vendita ad Osimo a 88.000 € (cod.654c0a6b)
Caasa non ha sufficienti informazioni per commentare l'appartamento in vendita ad Osimo - 654c0a6b.
Analisi immobiliare
I dati in posseso di Caasa per quest'immobile sono insufficienti, inaffidabili o contraddittori per proporre un'analisi attendibile.
Mercato immobiliare ad Osimo
Per quanto riguarda più in generale la città di Osimo, sono presenti al momento quasi 500 annunci per
appartamenti in vendita (meno del 10% dell'intera provincia)
e il maggior numero di annunci per questa tipologia sono relativi alla zona di Osimo Stazione.
La dinamica dei prezzi in tutta la città mostra che negli ultimi 6 mesi, i prezzi per appartamenti in vendita sono
in sostanziale aumento (+6,27%).
NOVITÀ Il risultato che vedi dipende dai dati che siamo riusciti ad estrarre dall'annuncio: ottieni una stima più accuranta di questo immobile, inserendo dati più precisi.
N.B. L'Opinione di Caasa® è un servizio sperimentale realizzato tramite tecniche di Intelligenza Artificiale, fornito senza alcuna garanzia di correttezza e completezza. Leggi il disclaimer o segnalaci un problema.
IMMAGINI
IN SINTESI
PROPOSTO DA:
PRIMA SERVIZI IMMOBILIARI
DESCRIZIONE
di recente ristrutturazione con posto auto con cantina di recente ristrutturazione con termocondizionamento con ascensore con angolo cottura
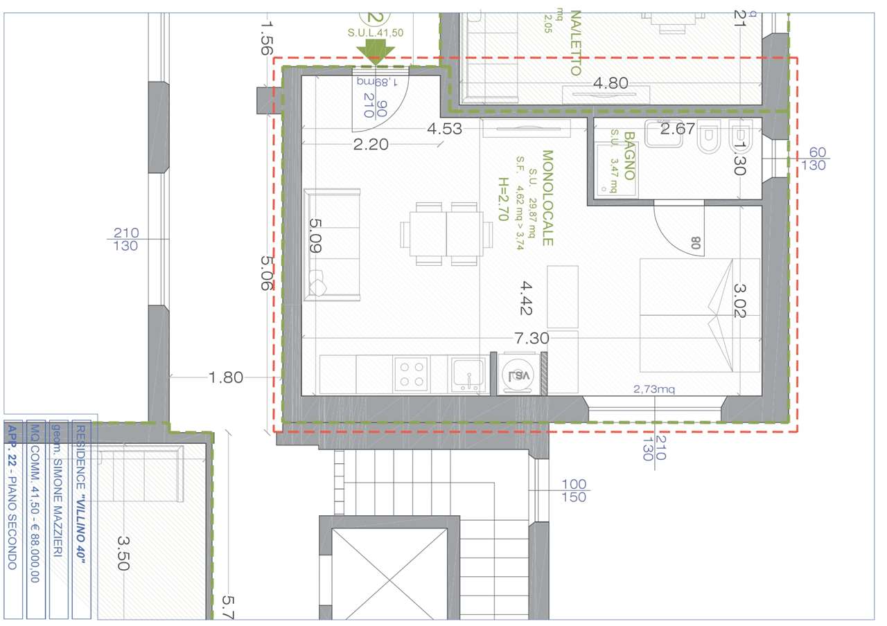
Rif.054SP-19 RESIDENCE IL VILLINO In vendita MONOLOCALE di circa 41,50 mq commerciali, completamente ristrutturato e pari al nuovo, progettato per garantire comfort, efficienza e uno stile contemporaneo. La soluzione si compone di un unico ambiente con soggiorno, angolo cottura e zona notte, facilmente separabile con arredi. Completa la proprietà un bagno finestrato. Gli spazi sono luminosi, ben distribuiti e studiati per valorizzare ogni ambiente. Una scelta ideale per giovani coppie, single che desiderano indipendenza con stile, investitori alla ricerca di un immobile da mettere a reddito o chi, semplicemente, vuole smettere di pagare un affitto e acquistare casa. Nel prezzo è incluso un posto auto, con possibilità di aggiungere una cantina e un secondo posto auto. Il contesto è tranquillo, completo di ampi spazi esterni condominiali, ben servito e strategico, perfetto per chi cerca qualità abitativa e comodità quotidiana. Limmobile fa parte di un intervento di riqualificazione che comprende 24 unità rinnovate integralmente, tutte in classe energetica A, dotate di impianti full electric e pannelli fotovoltaici che assicurano sostenibilità, consumi ridotti e unelevata qualità abitativa. La palazzina è servita da ascensore. Mandato a titolo oneroso. Nessuna provvigione dovuta da parte dellacquirente. Se sei interessato a questo immobile, il riferimento è 054SP-22 contattaci indicando questo riferimento per avere tutte le informazioni che ti interessano. Il nostro numero di telefono è 0712905445 oppure invia una mail a info@immobiliareprima.it I nostri agenti sono a tua completa disposizione

