Valutazione immobiliare indipendente, accurata e gratuita

Appartamento in vendita ad Osimo a 122.000 € (cod.64e52c18)

Caasa non ha sufficienti informazioni per commentare l'appartamento in vendita ad Osimo - 64e52c18.

Analisi immobiliare
I dati in posseso di Caasa per quest'immobile sono insufficienti, inaffidabili o contraddittori per proporre un'analisi attendibile.
Mercato immobiliare ad Osimo
Per quanto riguarda più in generale la città di Osimo, sono presenti al momento più di 300 annunci per appartamenti in vendita (meno del 5% dell'intera provincia) e il maggior numero di annunci per questa tipologia sono relativi alla zona di Osimo Stazione.

Per quanto riguarda la dinamica dei prezzi, negli ultimi 6 mesi i prezzi medi in tutta la città per appartamenti in vendita sono in leggera diminuzione (-2,63%).

NOVITÀ Il risultato che vedi dipende dai dati che siamo riusciti ad estrarre dall'annuncio: ottieni una stima più accuranta di questo immobile, inserendo dati più precisi.

N.B. L'Opinione di Caasa® è un servizio sperimentale realizzato tramite tecniche di Intelligenza Artificiale, fornito senza alcuna garanzia di correttezza e completezza. Leggi il disclaimer o segnalaci un problema.

IMMAGINI

IN SINTESI

Prezzo:
122.000 €
Superficie:
50 m²
Prezzo al m²:
2440 €/m²
Piano:
terra (con ascensore)
Bagni:
1
Classe energetica:
n.d.
Città:
Osimo (AN)
Zona OMI:
C3 (BORGO - GUAZZATORE - FORNACI - ZONA SUD CONSOLIDATA - SAN SABINO)
Indirizzo:
Pubblicato:
sab 26 aprile 2025

PROPOSTO DA:

logo Realcasa di Marconi Andrea

Realcasa di Marconi Andrea

Via Adriatica, 136, Osimo (AN)

Verificata da Caasa®

Vai ai contatti

DESCRIZIONE

di recente ristrutturazione con posto auto con garage con giardino con cantina di recente ristrutturazione con termocondizionamento con ascensore con riscaldamento autonomo

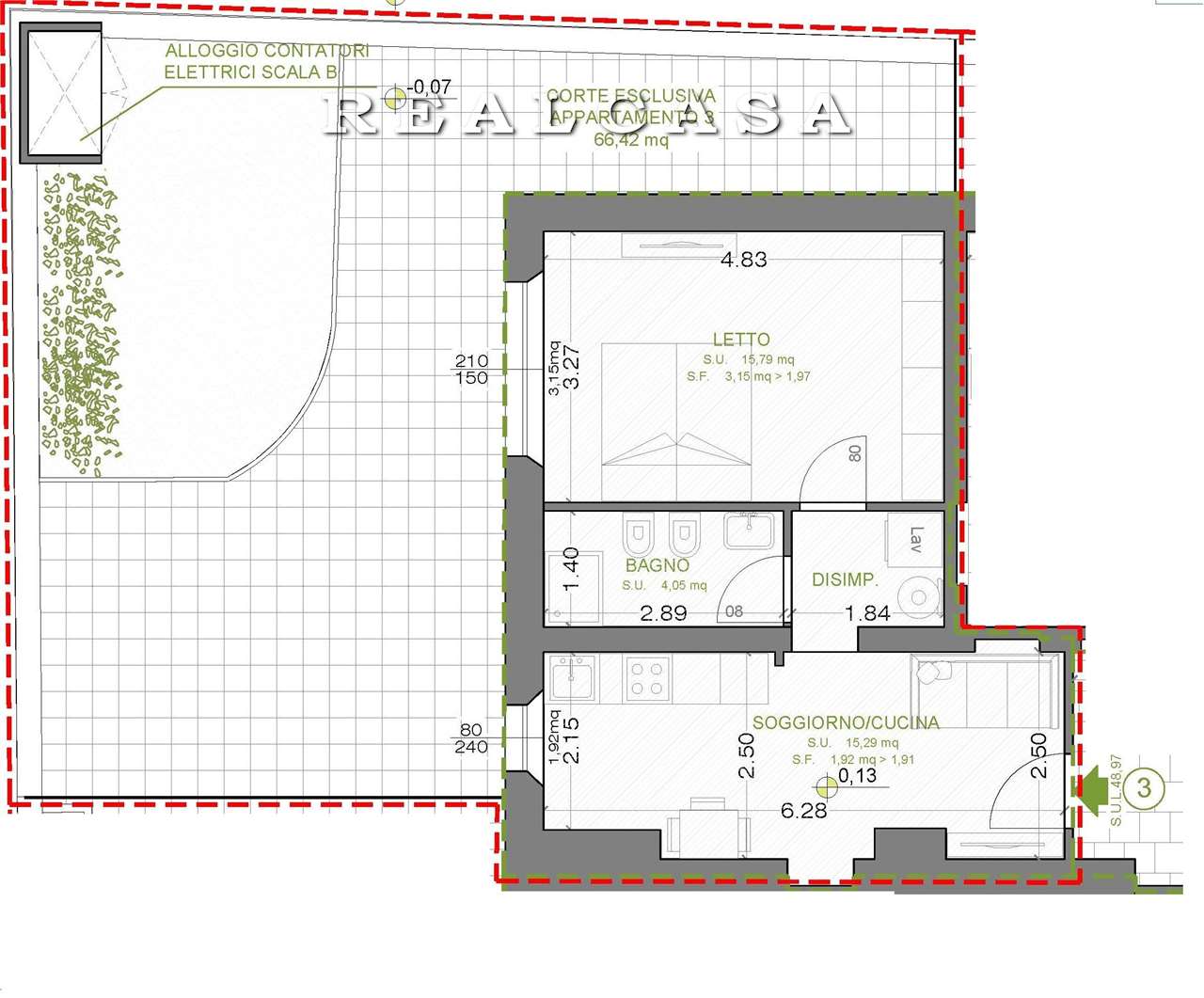
V2018 - Osimo - Vuoi acquistare un appartamento completamente ristrutturato con materiali e impianti innovativi e attenta alla sostenibilità ambientale e ai consumi? Il complesso si sviluppa su tre piani con ascensore, sarà oggetto di una ristrutturazione integrale. Gli appartamenti saranno dotati di un termo-cappotto interno isolante in lana minerale e controparete in cartongesso. Gli impianti di riscaldamento e raffreddamento sono dotati di pompa di calore, non è presente il gas metano quindi i consumi e le spese di gestione bassissime. L'impianto tecnologico di casa è completamente elettrico, abbinato all'impianto fotovoltaico che converte l'energia solare in energia elettrica permetterà un cospicuo risparmio energetico, il tutto predisposto per il controllo remoto da cellulare. Gli appartamenti sono di varie tipologie e metrature, tutti con posto auto esterno di proprietà e possibilità di acquisto di garage e cantina a parte. App. 3 - Appartamento al piano terra composto da ampio soggiorno-cucina una camera, un bagno cieco, una corte esclusiva e un posto auto. APPARTAMENTO PIANO TERRA MQ 50 CORTE ESCLUSIVA MQ 66 SPOSTO AUTO ESTERNO mq 12 Per informazioni e prenotazioni chiamare al 3331866366

  • fiaip
  • idealista.it
  • yescasa.it