Valutazione immobiliare indipendente, accurata e gratuita
Appartamento in vendita a Numana in zona Marcelli a 690.000 € (cod.6584993f)
Caasa non ha sufficienti informazioni per commentare l'appartamento in vendita a Numana in zona Marcelli - 6584993f.
Analisi immobiliare
I dati in posseso di Caasa per quest'immobile sono insufficienti, inaffidabili o contraddittori per proporre un'analisi attendibile.
Mercato immobiliare a Numana
Per quanto riguarda più in generale il comune di Numana, sono presenti al momento più di 300 annunci per
appartamenti in vendita (meno del 5% dell'intera provincia)
e il maggior numero di annunci per questa tipologia sono relativi proprio alla zona di Marcelli.
La richiesta media nella zona dove sorge l'appartamento (Marcelli) è pari a
3.845 €/m² e ne fa la più pregiata del comune .
La dinamica dei prezzi in tutto il comune mostra che negli ultimi 6 mesi, i prezzi per appartamenti in vendita sono
sostanzialmente stabili (+0,94%).
NOVITÀ Il risultato che vedi dipende dai dati che siamo riusciti ad estrarre dall'annuncio: ottieni una stima più accuranta di questo immobile, inserendo dati più precisi.
N.B. L'Opinione di Caasa® è un servizio sperimentale realizzato tramite tecniche di Intelligenza Artificiale, fornito senza alcuna garanzia di correttezza e completezza. Leggi il disclaimer o segnalaci un problema.
IMMAGINI
IN SINTESI
PROPOSTO DA:
IMMOBILIARE PORTO RECANATI S.R.L.
CORSO MATTEOTTI, 104, Porto Recanati (MC)
DESCRIZIONE
di recente ristrutturazione con giardino con termocondizionamento di nuova costruzione di recente ristrutturazione di recente costruzione
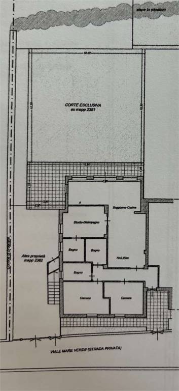
Marcelli, Numana - in piccolo residence esclusivo fronte mare, proponiamo in vendita questa abitazione indipendente con giardino e portico. Sita al PT, con ingresso autonomo, ampio immobile su un livello, senza barriere architettoniche, così divisa: ingresso, ampio salone illuminato da più finestre fronte mare e cucina a vista con accesso diretto al giardino e al portico, 3 camere doppie ognuna con relativo bagno. Completamente ristrutturata nel 2021, cappotto termico, fondamenta nuove, pavimentazione uniforme per tutta la superficie, infissi ultramoderni, riscaldamento a pavimento, aria condizionata. Contesto piacevole con molto verde, parcheggio fronte casa, spese condominiali minime. Arredi nuovi, compresi nel prezzo. Lidia 335/1993644


