Valutazione immobiliare indipendente, accurata e gratuita
L'Opinione di Caasa® per l'appartamento in vendita a Jesi a 140.000 € (cod.650da746)
Secondo Caasa, per l'appartamento in vendita a Jesi, la richiesta di 140.000 € è significativamente svantaggiosa rispetto agli annunci simili.
Analisi immobiliare
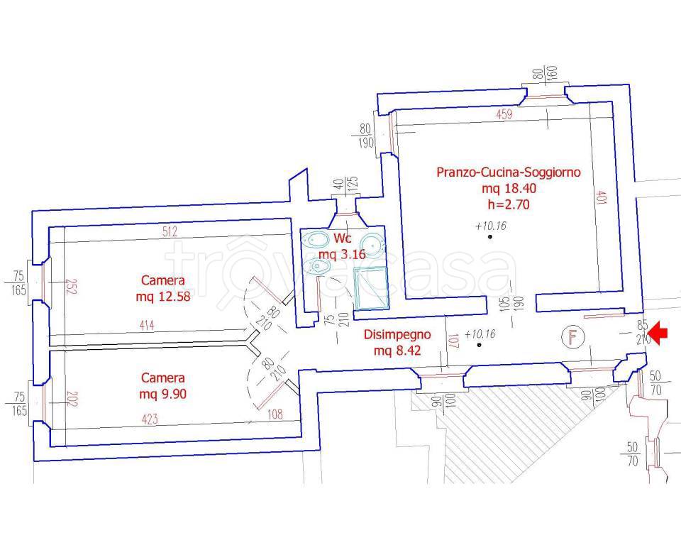
L'appartamento, situato nei pressi di Piazza della Repubblica nella zona OMI B1, è proposto in vendita a
140.000 € per una
superficie commerciale di
70 m² e quindi ad un prezzo per metro quadrato pari a
2000 €/m²
.
Questo prezzo
è meno vantaggioso di quello stimato da Caasa per immobili in vendita simili per tipologia, caratteristiche, classe energetica e localizzati nella stessa zona OMI, che è compreso tra
1.619 €/m² e
1.766 €/m².
La conoscenza con buona approssimazione della localizzazione dell'immobile ha consentito di utilizzare come raffronto i dati medi elaborati esattamente nella zona OMI di appertenenza (CENTRO STORICO DI ADDIZIONE RINASCIMENTALE). Inoltre, Caasa ha potuto affinare la stima anche con la conoscenza della classe energetica (D) oltre che dello stato dell'immobile (di recente ristrutturazione) e di alcune caratteristiche significative come la presenza dell'ascensore. Per questi motivi è possibile considerare un intervallo di valori accettabili per l'offerta abbastanza limitato.
Mercato immobiliare a Jesi
Per quanto riguarda più in generale la città di Jesi, sono presenti al momento ben oltre mille annunci per
appartamenti in vendita (quasi il 20% dell'intera provincia)
e il maggior numero di annunci per questa tipologia sono relativi alla zona di Tabano.
Possiamo inoltre considerare che in tutta la città negli ultimi 6 mesi, i prezzi per appartamenti in vendita sono
in leggero aumento (+2,47%).
NOVITÀ Il risultato che vedi dipende dai dati che siamo riusciti ad estrarre dall'annuncio: ottieni una stima più accuranta di questo immobile, inserendo dati più precisi.
N.B. L'Opinione di Caasa® è un servizio sperimentale realizzato tramite tecniche di Intelligenza Artificiale, fornito senza alcuna garanzia di correttezza e completezza. Leggi il disclaimer o segnalaci un problema.
IMMAGINI
IN SINTESI
PROPOSTO DA:
UNICOS s.r.l.
DESCRIZIONE
di recente ristrutturazione di recente ristrutturazione con ascensore edificio storico
centralissimo PIAZZA DELLA REPUBBLICA - Appartamento completamente ristrutturato 2010, compresa la struttura portante - 70 mq, parzialmente ammobiliato, posto al secondo piano con ascensore - L'appartamento si trova all'interno del palazzo storico Magagnini che affaccia su piazza della Repubblica, sede del Teatro Pergolesi. - Distribuzione interna: ingresso, cucina, bagno e due camere di cui una matrimoniale. - L'appartamento dispone di aria condizionata (caldo/freddo), parquet e infissi in legno laccato

