Valutazione immobiliare indipendente, accurata e gratuita
Locale commerciale in vendita a Jesi a 70.000 € (cod.64dc0176)
Caasa non ha sufficienti informazioni per commentare il locale commerciale in vendita a Jesi - 64dc0176.
Analisi immobiliare
I dati in posseso di Caasa per quest'immobile sono insufficienti, inaffidabili o contraddittori per proporre un'analisi attendibile.
Mercato immobiliare a Jesi
Per quanto riguarda più in generale la città di Jesi, sono presenti al momento più di cinquanta annunci per
locali commerciali in vendita (quasi il 20% dell'intera provincia)
e il maggior numero di annunci per questa tipologia sono relativi alla zona di Tabano.
Possiamo inoltre considerare che in tutta la città negli ultimi 6 mesi, i prezzi per locali commerciali in vendita sono
in forte aumento (+12,20%).
NOVITÀ Il risultato che vedi dipende dai dati che siamo riusciti ad estrarre dall'annuncio: ottieni una stima più accuranta di questo immobile, inserendo dati più precisi.
N.B. L'Opinione di Caasa® è un servizio sperimentale realizzato tramite tecniche di Intelligenza Artificiale, fornito senza alcuna garanzia di correttezza e completezza. Leggi il disclaimer o segnalaci un problema.
IMMAGINI
IN SINTESI
PROPOSTO DA:
QUALITYCASA
DESCRIZIONE
con posto auto con garage
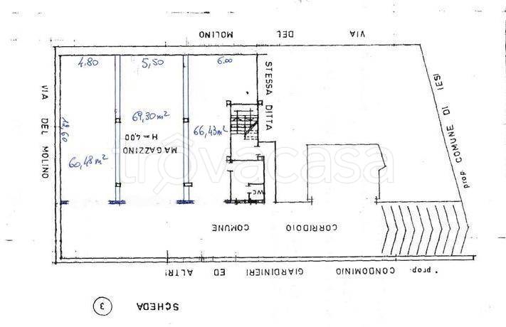
Agenzia immobiliare QualityCasa propone in vendita MAGAZZINO / GARAGE zona piscina a Jesi di 215 m²: Ingresso, vano unico con bagno, altezza 4 metri e uso della corte condominiale. Discrete condizioni. Possibile suddividerlo in 3 garage. Adatto anche per camper e caravan. Rif. J46 - €70.000 Referente Roberto Bedina 3773433426 - 0717451299 * Non è l'immobile che stai cercando? Consulta il nostro sito, seguici sui social network, e contattaci, fornendo una richiesta dettagliata dell'immobile oggetto dei tuoi desideri, lasciando un recapito telefonico e una mail. Sarai tempestivamente informato. QualityCASA, da 32 anni "La Qualità al Servizio del Cliente

