Valutazione immobiliare indipendente, accurata e gratuita
Negozio in vendita a Castelbellino in zona Stazione a 330.000 € (cod.656c739a)
Caasa non ha sufficienti informazioni per commentare il negozio a Castelbellino in zona Stazione - 656c739a.
Analisi immobiliare
I dati in posseso di Caasa per quest'immobile sono insufficienti, inaffidabili o contraddittori per proporre un'analisi attendibile.
Mercato immobiliare a Castelbellino
Per quanto riguarda più in generale il comune di Castelbellino, sono presenti al momento più di venti annunci per
negozi in vendita (meno del 5% dell'intera provincia)
e il maggior numero di annunci per questa tipologia sono relativi proprio alla zona di Stazione.
Vedi altre informazioni direttamente su
Mercato-Immobiliare.info
NOVITÀ Il risultato che vedi dipende dai dati che siamo riusciti ad estrarre dall'annuncio: ottieni una stima più accuranta di questo immobile, inserendo dati più precisi.
N.B. L'Opinione di Caasa® è un servizio sperimentale realizzato tramite tecniche di Intelligenza Artificiale, fornito senza alcuna garanzia di correttezza e completezza. Leggi il disclaimer o segnalaci un problema.
IMMAGINI
IN SINTESI
DESCRIZIONE
con posto auto con garage
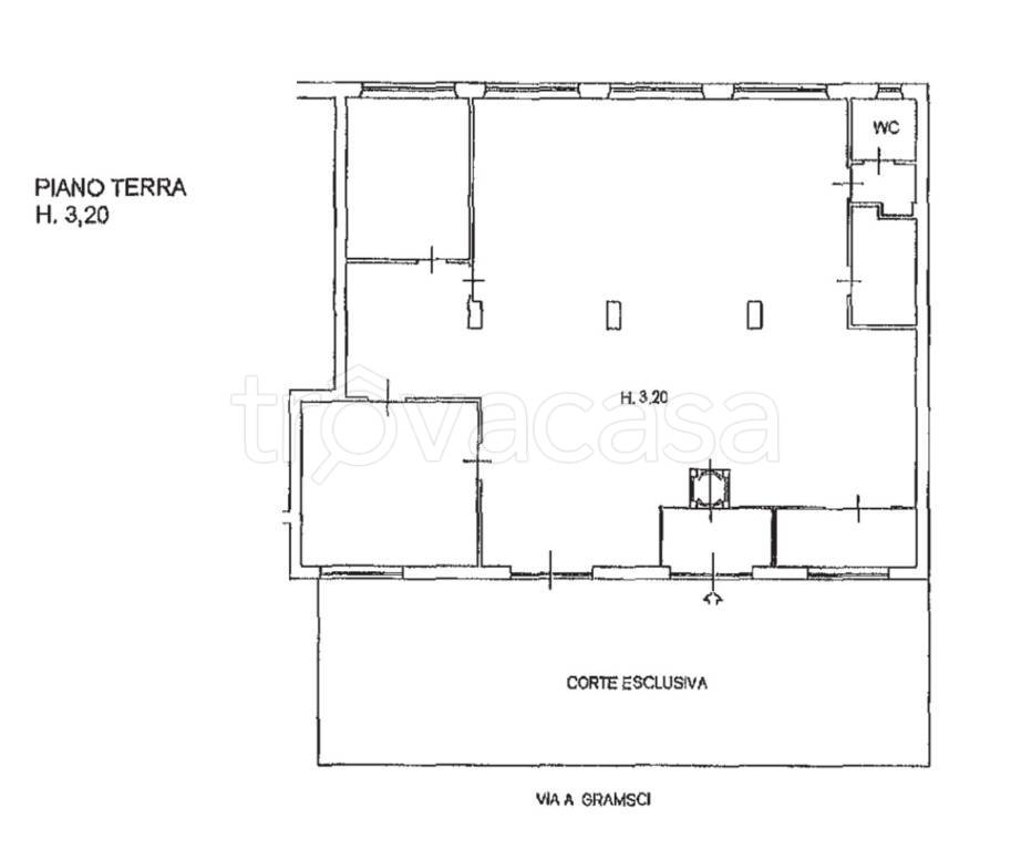
In posizione strategica a due passi dalla stazione ferroviaria e dai principali servizi della zona, proponiamo in vendita un intero negozio pronto all'uso. L'immobile offre circa 218 m² al piano terra con altezza interna di 3,20 m, perfetti per vendita, ufficio o open space, completi di vetrine su via Antonio Gramsci, servizi igienici e ripostigli. Al piano seminterrato trova spazio un magazzino/garage di circa 64 m² con altezza 2,70 m e accesso carrabile, ideale per deposito merci, oltre a una centrale termica dedicata di circa 13 m². Completano la proprietà un ampio piazzale esclusivo esterno di circa 82 m², con ingresso diretto dalla via principale. Soluzione completa e versatile per attività commerciale, studio professionale, negozio al dettaglio o showroom, inserita in un fabbricato residenziale ben servito. Codice gestionale: 012378_26_C112IC

