N.B. Tutti le informazioni immobiliari sono fornite senza alcuna garanzia. Leggi il disclaimer.
Capannoni o locali di sgombero o negozi o terreni edificabili, da ristrutturare o di recente costruzione in vendita a Borgo Virgilio in zona Virgilio - pg. 2 di 5
MODIFICA QUESTA RICERCANegozio in vendita a Borgo Virgilio PREMIUM
Attività commerciale BORGO VIRGILIO €.179000 MQ.120 Vani 3
negozio Virgilio 179.000 €
Inserita in una tranquilla zona residenziale di Borgo Virgilio, proponiamo in vendita una villetta dallo stato attuale libero al rogito.Costruita nel 1980, la proprietà si estende su una superficie totale di 120 mq, di cui 110 mq calpestabili.L'abitazione è composta da 3 locali, tra cui 2 camere da let […]
LEGGI ANCORA
Negozio in vendita a Borgo Virgilio
negozio Virgilio 69.000 €
BORGO VIRGILIO loc. ROMANORE: Proponiamo in vendita, negozio su forte strada di passaggio in località Romanore. Lo stabile si sviluppa tutto a piano terra, composta da sala principale, sala secondaria antibagno e bagno, caratterizzato dal tetto in legno con travi a vista, ideale per qualsiasi attività di […]
LEGGI ANCORA
Immobile in vendita a Borgo Virgilio(MN
Immobile in vendita a Borgo Virgilio(MN
Laboratorio in vendita a Borgo Virgilio
negozio Virgilio 170.000 €
Nella zona di Pioppelle stabile commerciale di ampia metratura disposto su due piani. L'immobile si presta a svariate soluzioni di carattere commerciale come poliambulatorio, palestra, scuola di musica o comunque qualsiasi genere di attività che necessiti di spazio. La struttura dello stabile è in cement […]
LEGGI ANCORA
Immobile in vendita a Borgo Virgilio(MN PREMIUM
Immobile in vendita a Borgo Virgilio(MN
Negozio in vendita a Borgo Virgilio via Cisa, 197
negozio Virgilio 79.000 €
Proponiamo nella frazione di Cappelletta un negozio con ampie vetrine di fronte alla strada statale con un importante passaggio di automezzi, davanti al negozio c'è la possibilità di parcheggiare le auto grazie ad una zona dedicata, l'immobile è posto al piano rialzato, non c'è alcuna barriera oltre gli […]
LEGGI ANCORA
Villa singola in vendita a Borgo Virgilio via Giacomo Puccini, 6
terreno edificabile Virgilio 239.000 €
CERESE: Nel comune di Borgo Virgilio proponiamo in vendita una villa singola posto su un lotto di circa 600 mq, ideale per chi cerca spazio e versatilità. Edificata alla fine degli anni ’60 e ristrutturata parzialmente alla fine degli anni ‘90, l’abitazione si sviluppa tutta su un piano, con un’unica sca […]
LEGGI ANCORA
- prezzo medio casa indipendente in zona OMI B1 : 1287 €/m²
- prezzo medio villa in zona OMI B1 : 1328 €/m²
Quadrilocale in vendita a Borgo Virgilio
terreno edificabile Virgilio 450.000 €
CERESE ZONA CENTRALE - NUOVA VILLA SINGOLA Proponiamo in vendita villa singola realizzata tutta a piano terra su lotto angolare di 800 mq. La soluzione verrà realizzata in 12 mesi dalla sottoscrizione del preliminare. Zona giorno da 48 mq, zona notte con 2 matrimoniali e 1 trequarti e garage doppio da 44 […]
LEGGI ANCORA
- prezzo medio appartamento in zona OMI B1 : 1281 €/m²
- prezzo medio casa indipendente in zona OMI B1 : 1287 €/m²
villa in vendita a Borgo Virgilio in zona Virgilio
terreno edificabile Virgilio 298.000 €
Borgo Virgilio - Cerese, in posizione centrale e comoda a qualunque tipo di servizio offerto dal paese, proponiamo in vendita questa elegante villa singola accessoriata da un ampio lotto di terreno di 1200 mq con accesso da tre vie. La casa si sviluppa principalmente su due livelli. Al piano terra è pres […]
LEGGI ANCORA
- prezzo medio casa indipendente in zona OMI B1 : 1287 €/m²
- prezzo medio casa semindipendente in zona OMI B1 : 1301 €/m²
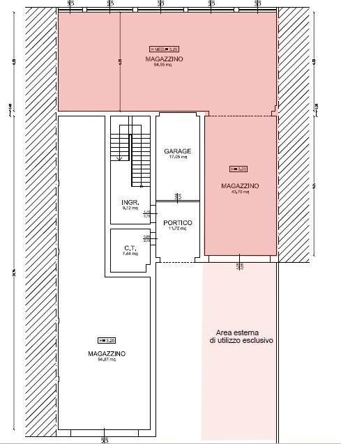
Magazzino in vendita a Borgo Virgilio PREMIUM
Vendesi villa singola a Borgo Virgilio via Cisa 101
terreno edificabile Virgilio 298.000 €
Borgo Virgilio - Cerese, in posizione centrale e comoda a qualunque tipo di servizio offerto dal paese, proponiamo in vendita questa elegante villa singola accessoriata da un ampio lotto di terreno di 1200 mq con accesso da tre vie. La casa si sviluppa principalmente su due livelli. Al piano terra è pres […]
LEGGI ANCORA
- prezzo medio casa indipendente in zona OMI B1 : 1287 €/m²
- prezzo medio villa in zona OMI B1 : 1328 €/m²
Terreno edificabile residenziale in vendita a Borgo Virgilio
terreno edificabile Virgilio 60.000 €
BORGO VIRGILIO loc. SAN CATALDO: In lottizzazione a vie chiuse e già abitata, proponiamo in vendita lotti di terreno edificabile, 3 lotti adiacenti da 612 mq cadauno e lotto angolare di 1.600 mq. Possibilità di realizzare ville singole o bifamiliare. INFORMAZIONI IN UFFICIO Classe Energetica: Non soggett […]
LEGGI ANCORA
Vendita negozi uffici capannoni a Borgo Virgilio
Proposto da:
terreno edificabile Virgilio 620.000 €
Rif. 6922 poco distante dal casello autostradale di mantova sud e dal centro città, in ottima posizione, bene visibile e facilmente raggiungibile proponiamo in vendita capannone con annesso appartamento in ottimo stato. Posizionato su un lotto di mq 2.240, l'immobile ad uso commerciale/artigianale ha dop […]
LEGGI ANCORA
Villa singola in vendita a Borgo Virgilio
terreno edificabile Virgilio 650.000 €
Rif 7506 Borgoforte. In posizione Riservata e molto tranquilla a poca distanza dal centro abitato, proponiamo in vendita splendida villa singola dalle ampie metrature attualmente divisa in due unità abitative oltre a Rustici e Magazzini. Costruita su un lotto di 3500 mq la bella casa è circondata da un a […]
LEGGI ANCORA
- prezzo medio casa indipendente in zona Virgilio : 1177 €/m²
- prezzo medio villa in zona Virgilio : 1272 €/m²
Casa indipendente a Borgo Virgilio di 200 m² con 10 locali in vendita
terreno edificabile Virgilio 200.000 €
Il Team Baratti propone nel Comune di Borgo Virgilio casa singola con 2 appartamenti completamente autonomi composti ognuno da cucina abitabile, ampia sala, studio. bagno, 2 stanze letto. Completa l'immobile 2 garage esterni. Il tutto su un lotto di mq. 1200 ca La casa è ideale per 2 nuclei familiari, Ge […]
LEGGI ANCORA
- prezzo medio casa indipendente in zona OMI B1 : 1287 €/m²
- prezzo medio appartamento in zona OMI B1 : 1281 €/m²
Negozio in vendita a Borgo Virgilio PREMIUM
Villa bifamiliare in vendita a Borgo Virgilio
terreno edificabile Virgilio 290.000 €
Rif 7491 - Cerese di Borgo Virgilio - In quartiere residenziale tranquillo e comodo a tutti i servizi, a pochissimi Km dalla città, proponiamo Elegante villa Bifamiliare di oltre 200 mq. La Bella Casa, disposta su più livelli si presenta in perfette condizioni e pronta da abitare. Si accede al piano rial […]
LEGGI ANCORA
- prezzo medio casa indipendente in zona Virgilio : 1177 €/m²
- prezzo medio villa in zona Virgilio : 1272 €/m²
Villa singola in vendita a Borgo Virgilio via Della Repubblica
terreno edificabile Virgilio 340.000 €
Borgo Virgilio - Cerese, in quartiere riservato ed allo stesso tempo comodo a tutti i tipi di servizi, proponiamo in vendita questa imponente villa posta su un lotto di 1000 mq ed in ottimo stato conservativo. La casa si sviluppa principalmente su due livelli, al piano primo è presente la zona abitativa […]
LEGGI ANCORA
- prezzo medio casa indipendente in zona OMI B1 : 1287 €/m²
- prezzo medio villa in zona OMI B1 : 1328 €/m²
villa in vendita a Borgo Virgilio in zona Virgilio
terreno edificabile Virgilio 340.000 €
Borgo Virgilio - Cerese, nel pieno centro del paese e comoda a qualsiasi tipo di servizio offerto, proponiamo questa grande villa singola posta su un lotto di 850 mq e dotata di due passi carrai
LEGGI ANCORA
- prezzo medio casa indipendente in zona OMI B1 : 1287 €/m²
- prezzo medio villa in zona OMI B1 : 1328 €/m²
Non perdere gli altri 60 annunci!








