N.B. Tutti le informazioni immobiliari sono fornite senza alcuna garanzia. Leggi il disclaimer.
Capannoni o locali commerciali con termocondizionamento e con terrazza in vendita a Borgo Virgilio in zona Virgilio
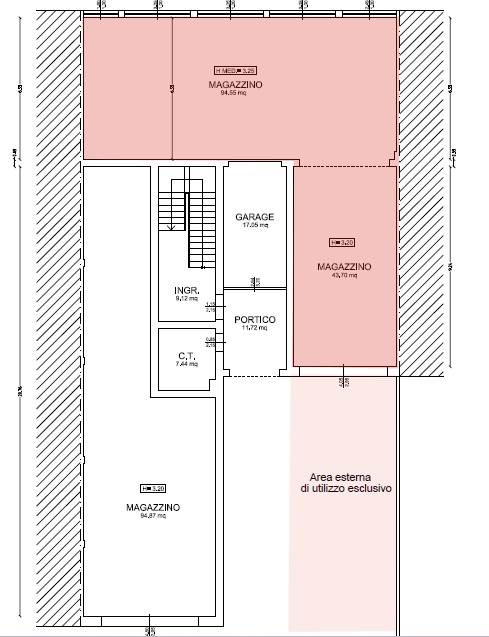
MODIFICA QUESTA RICERCACapannone industriale in vendita a Borgo Virgilio via cisa, 95 PREMIUM
Immobile in vendita a Borgo Virgilio(MN
Vendita Capannone industriale, BORGO VIRGILIO
capannone Virgilio 250.000 €
Proponiamo un capannone laterale di circa 700 mq situato a Borgovirgilio, completo di uffici su due livelli per un totale di circa 100 mq. La struttura è dotata di servizi uomo/donna, mensa, riscaldamento, bilancia di precisione, sistema di allarme, rete dati e aria compressa. Classe energetica: G. Conta […]
LEGGI ANCORA
Capannone industriale in vendita a Borgo Virgilio
capannone Virgilio
Borgovirgilio: proponiamo in vendita : su area di circa 3000 mq capannone produttivo di 1400 mq dotato di carroponte, riscaldamento, servizi igienici uomo/donna, 100 mq di uffici, mensa e spogliai. Appartamento con ingresso e area indipendente, dotato di ampia sala con cucina, terrazza, 2 bagni e 3 letto […]
LEGGI ANCORA
Capannone industriale in vendita a Borgo Virgilio via Carlo Poma
Proposto da:
capannone Virgilio 2.300.000 €
Lombardia Immobili d'Impresa propone in esclusiva la vendita di immobile industriale indipendente e libero su quattro lati nella zona produttiva di San Giorgio Bigarello (MN), alle porte di Mantova e a meno di 1 km dal casello Mantova Nord dell'Autostrada del Brennero A22. L'immobile ha una superficie lo […]
LEGGI ANCORA
Capannone industriale in vendita a Borgo Virgilio
- prezzo medio ufficio in zona Virgilio : 1197 €/m²
- prezzo medio ufficio a Borgo Virgilio : 1175 €/m²
Capannone industriale in vendita a Borgo Virgilio PREMIUM
Magazzino in vendita a Borgo Virgilio
capannone Virgilio 330.000 €
BORGO VIRGILIO loc CERESE: Nella zona di quartier Magri, adiacente a Levata proponiamo in vendita magazzino/capannone con uffici, su lotto singolo di 1950 mq con doppio accesso carraio da Via Atella e via Montefiorino. La proprietà si caratterizza di ampio carraio elettrico di 8 m, capace di consentire i […]
LEGGI ANCORA
- prezzo medio ufficio in zona OMI B1 : 1388 €/m²
- prezzo medio ufficio in zona Virgilio : 1197 €/m²
Capannone industriale in vendita a Borgo Virgilio via cisa, 95
capannone Virgilio 65.000 €
Nel comune di Borgo Virgilio, nella località di Cerese, è disponibile per la vendita un capannone di 140 mq situato al piano terra, questo spazio offre un'ottima opportunità per chi cerca una soluzione versatile per attività commerciali o industriali. La struttura è ideale per essere utilizzata come maga […]
LEGGI ANCORA
Locale commerciale BORGO VIRGILIO MQ.860 Vani 3
locale commerciale Virgilio
CERESE DI BORGO VIRGILIO: Proponiamo in vendita su strada ad alta visibilità ampio locale commerciale con magazzino così composto: a piano terra 300mq di area espositiva e 300mq di magazzino comprendenti uffici e bagni. Al primo piano del locale con ingressi indipendenti, appartamento di 140mq fruibile c […]
LEGGI ANCORA
Magazzino in vendita a Borgo Virgilio
locale commerciale Virgilio 360.000 €
BORGO VIRGILIO loc CERESE: Nella zona di quartier Magri, adiacente a Levata proponiamo in vendita magazzino di 930 mq libero su 4 lati, posizionato su lotto di 2600 mq. L'immobile è ATTUALMENTE LOCATO, contratto 6+6 sottoscritto nel 2023, canone di locazione che genera una resa lorda del 10% annua. Tetto […]
LEGGI ANCORA
- prezzo medio ufficio in zona OMI B1 : 1388 €/m²
- prezzo medio ufficio in zona Virgilio : 1197 €/m²
capannone in vendita a Borgo Virgilio in zona Virgilio
capannone Virgilio 600.000 €
Proponiamo in vendita capannone con vetrine fronte strada su strada di buona percorribilita'. L'immobile e' composto al piano terreno da area commerciale di circa 850,00 mq in cat. D/8, da area interrata di circa 1300 mq in cat. D/7 e al piano primo appartamento di mq 65. Gia' presenti un ufficio e servi […]
LEGGI ANCORA
Stabile/palazzo in vendita a Borgo Virgilio PREMIUM
- prezzo medio appartamento in zona Virgilio : 1315 €/m²
- prezzo medio appartamento a Borgo Virgilio : 1311 €/m²
Capannone industriale in vendita a Borgo Virgilio via Giovanni Paolo II
capannone Virgilio 749.000 €
COSA SAPERE SULL’IMMOBILE Proponiamo in vendita capannone industriale ubicato a Borgoforte (Mn), precisamente in Via Verga. DESCRIZIONE E PARTICOLARITÀ L’immobile si compone di 6 campate con una superficie totale di circa 2.720 mq, è dotato di un soppalco aggiuntivo con una portata di 400 kg/mq di solett […]
LEGGI ANCORA
Vendita Magazzino, BORGO VIRGILIO
capannone Virgilio 210.000 €
Borgovirgilio: capannone ad uso magazzino di 500 mq con area esterna su 3 lati. Il capannone alto 6 m, è’ dotato di un portone carraio e uno pedonale, doppi servizi e predisposizione uffici. Area abbondante su 3 lati. Per maggiori informazioni e visite potete contattarci allo 0376/536868
LEGGI ANCORA
Vendita negozi uffici capannoni a Borgo Virgilio
Proposto da:
capannone Virgilio 620.000 €
Rif. 6922 poco distante dal casello autostradale di mantova sud e dal centro città, in ottima posizione, bene visibile e facilmente raggiungibile proponiamo in vendita capannone con annesso appartamento in ottimo stato. Posizionato su un lotto di mq 2.240, l'immobile ad uso commerciale/artigianale ha dop […]
LEGGI ANCORA
capannone in vendita a Borgo Virgilio in zona Virgilio
capannone Virgilio 420.000 €
Borgo Virgilio Loc. San Cataldo: Immersa nel verde delle campagne virgiliane, proponiamo in vendita casa semi-indipendente ristrutturata completamente nel 2007, accessoriata di barchessa e capannone. L'abitazione si sviluppa su tre livelli, Il piano terra ospita un grande soggiorno di circa mq 40 con aff […]
LEGGI ANCORA
- prezzo medio casa indipendente in zona OMI B1 : 1323 €/m²
- prezzo medio casa semindipendente in zona OMI B1 : 1302 €/m²
Immobile in vendita a Borgo Virgilio(MN
locale commerciale Virgilio 325.000 €
BORGO VIRGILIO loc. CERESE: Proponiamo in vendita, stabile composto da tre negozi e 2 abitazioni, l'immobile si trova fronte strada con locali commerciali affittati ad attività consolidate. La proprietà viene venduta a corpo unico, gli appartamenti sono entrambe quadrilocali con spazi abitativi ampi ed a […]
LEGGI ANCORA
- prezzo medio appartamento in zona OMI B1 : 1446 €/m²
- prezzo medio quadrivano in zona OMI B1 : 1498 €/m²
Capannone industriale in vendita a Borgo Virgilio via cisa, 95 PREMIUM
Stabile/palazzo in vendita a Borgo Virgilio via w.A. Mozart, 7
locale commerciale Virgilio 73.000 €
Valletta Valsecchi proponiamo l'acquisto di un locale commerciale posto al piano terra cosi composto: ingresso, ampio locale con tre vetrine, bagno. Con possibilità di trasformazione ad uso residenziale. VALUTAZIONE GRATUITA Se dovete vendere casa e volete conoscere il valore del vostro immobile, affidat […]
LEGGI ANCORA
- prezzo medio casa indipendente in zona OMI B1 : 1323 €/m²
- prezzo medio casa semindipendente in zona OMI B1 : 1302 €/m²
Stabile/palazzo in vendita a Borgo Virgilio
locale commerciale Virgilio 120.000 €
Posizione esclusiva su via di forte passaggio ma con cortile interno tranquillo e riservato, ideale per 4 posti auto. Il complesso richiede una sostanziale ristrutturazione ma si presta per diversi utilizzi. Al pianterreno un ampio locale commerciale di 150 mq con diverse possibilita di accesso su tutti […]
LEGGI ANCORA
- prezzo medio appartamento in zona Virgilio : 1315 €/m²
- prezzo medio appartamento a Borgo Virgilio : 1311 €/m²
Vendesi villa singola a Borgo Virgilio
capannone Virgilio 173.000 €
Bellissima casa di campagna, abitabile subito, con annesso capannone e rustici su un lotto di 1.000 mq si area verde! Gli interni sono ampi e luminosi, l'ingresso da accesso alla cucina, alla sala da pranzo, al salotto ed allo studio, oltre bagno. Una scala conduce al piano superiore in cui si trovano 4 […]
LEGGI ANCORA
- prezzo medio casa indipendente in zona Virgilio : 1176 €/m²
- prezzo medio villa in zona Virgilio : 1272 €/m²
Non perdere gli altri annunci!






