N.B. Tutti le informazioni immobiliari sono fornite senza alcuna garanzia. Leggi il disclaimer.
Appartamenti o case indipendenti o case semindipendenti o intera palazzina o quadrivani o terreni edificabili in asta giudiziaria, di recente costruzione in vendita a Muccia
MODIFICA QUESTA RICERCAappartamento in vendita a Muccia
appartamento 176.000 €
NUOVA COSTRUZIONE ULTIMATA – APPARTAMENTO CON INGRESSO INDIPENDENTE E CORTE PRIVATA In una palazzina esclusiva di sole 5 unità abitative, proponiamo in vendita un splendido appartamento al piano terra, completamente ricostruito dopo il sisma del 2016 con un innovativo sistema costruttivo in acciaio, gar […]
LEGGI ANCORA
Appartamento in vendita a Muccia(MC
appartamento 229.000 €
FINE LAVORI PREVISTA: INIZIO 2026 Proponiamo in vendita NUOVO appartamento con ingresso indipendente e sottotetto abitabile (anch’esso con ingresso indipendente), situati al primo e secondo piano di una palazzina di sole 4 unità abitative. L’immobile è frutto della ricostruzione di un edificio reso inagi […]
LEGGI ANCORA
appartamento in vendita a Muccia
appartamento 229.000 €
FINE LAVORI PREVISTA: INIZIO 2026 IMMOBILIARE DI GENNARI propone in vendita NUOVO appartamento con ingresso indipendente e sottotetto abitabile (anch’esso con ingresso indipendente), situati al primo e secondo piano di una palazzina di sole 4 unità abitative. L’immobile è frutto della ricostruzione di un […]
LEGGI ANCORA
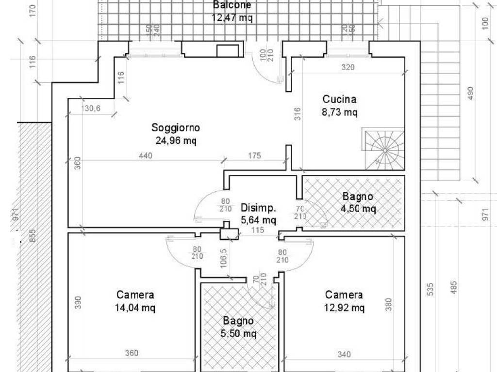
Quadrilocale in vendita a Muccia
Proposto da:
appartamento 115.000 €
Vendiamo a Muccia via Cavalieri di Vittorio Veneto in NUOVA COSTRUZIONE ATISISMICA, un appartamento posto al primo piano, servito da ascensore. L'appartamento è composto da: soggiorno con terrazzo, cucina, studio, camera da letto e camera da letto con terrazzo, bagno finestrato, vano tecnico/ripostiglio. […]
LEGGI ANCORA
Appartamento in vendita a Muccia(MC
appartamento 176.000 €
FINE LAVORI PREVISTA PER MARZO 2025 - Proponiamo la vendita di appartamento con ingresso indipendente in prossimità di costruzione sito al piano terra di una palazzina di sole 5 unità abitative. Trattasi di ricostruzione immobile reso inagibile dal sisma del 2016. Il progetto attuale prevede il rifacimen […]
LEGGI ANCORA
Rustico / Casale in vendita a Muccia(MC
Proposto da:
casa indipendente Col di Giove 230.000 €
Vendiamo a Muccia in frazione Col di Giove ampio Casale con giardino. L'immobile ha una superficie complessiva di circa 200 mq diviso in piano terra con cucina, sala, camera e bagno, piano primo con 4 camere, bagno e terrazzo, piano sottotetto con locale con bagno e terrazzo. L'immobile è stato completam […]
LEGGI ANCORA
Casa indipendente a Muccia Maddalena di 190 m² con 5 locali in vendita
Proposto da:
casa indipendente Maddalena 250.000 €
Vendiamo a Muccia in località Giove una Villa di nuova costruzione. Immobile disposto ai piani terra e primo oltre a tettoia/garage e spazio sterno esclusivo. L'immobile può essere diviso in 2 appartamenti di circa 80 metri ciascuno con ingresso indipendente, uno al piano terra e l'altro al piano primo o […]
LEGGI ANCORA
Rustico a Muccia di 200 m² con 10 locali in vendita
Proposto da:
casa indipendente Col di Giove 230.000 €
Vendiamo a Muccia in frazione Col di Giove ampio Casale con giardino. L'immobile è attualmente adibito in due unità abitative entrambe con ingresso indipendente: una più piccola composta da cucina, soggiorno, n.1 camera con bagno, terrazzo, locale mansardato con ripostiglio, bagno e terrazzo; un'altra un […]
LEGGI ANCORA
Villa bifamiliare in vendita a Muccia via Roma
casa indipendente 330.000 €
Muccia, piccolo borgo in provincia di Macerata (Marche) ed a pochi km. (circa 7 ) dalla più conosciuta Camerino, nota per i suoi monumenti, teatri e musei ma principalmente per la presenza dell’università fondata in età medievale, disponiamo in vendita, con incarico in esclusiva, di villa bifamiliare di […]
LEGGI ANCORA
Casa indipendente in Vendita a Muccia Muccia Via Muzio Macario n.8
appartamento 175.000 €
A Muccia, appena fuori dal centro storico, circondata dal verde, in zona tranquilla, proponiamo in esclusiva ed in vendita, soluzione indipendente con corte privata e recintata. La stessa, si trova in posizione tale da avere i primi servizi come bar, tabacchi, supermercati, nelle prime vicinanze, volendo […]
LEGGI ANCORA
villa in vendita a Muccia
casa indipendente 330.000 €
Villa bifamiliare con ampi spazi esterni. Muccia, piccolo borgo in provincia di Macerata (Marche) ed a pochi km. (circa 7 ) dalla più noto Camerino, conosciuta per i suoi monumenti, teatri e musei ma principalmente per la presenza dell’università fondata in età medievale, disponiamo in vendita, con incar […]
LEGGI ANCORA
appartamento in vendita a Muccia
appartamento 176.000 €
Rif. A114: NUOVA COSTRUZIONE CON CORTE ESCLUSIVA – MUCCIA Scopri il tuo nuovo rifugio nel cuore di Muccia, in una tranquilla e riservata zona residenziale. Proponiamo in vendita appartamento di circa 90 mq. al piano terra all’interno di una palazzina di nuova costruzione composta da sole 5 unità abitativ […]
LEGGI ANCORA
Terreno edificabile in Vendita a Muccia
terreno edificabile
Questo immobile viene venduto tramite asta online.Vendesi quota 1/2 di terreno edificabile sito a Muccia (MC), in via Mazzini snc. Trattasi di lotto di terreno edificabile in zona residenziale centrale. Il bene è identificabile come area verde incolta, con destinazione urbanistica ricadente in parte in […]
LEGGI ANCORA
terreno residenziale in vendita a Muccia
terreno edificabile
Quest?immobile viene venduto tramite asta online. Vendesi area urbana sita a Muccia (MC), in via Macario Muzio snc. Trattasi di residuo di area edificabile in zona residenziale semicentrale, dove nel lotto originario è stata realizzata una palazzina. Il bene è attualmente identificabile come area verde […]
LEGGI ANCORA
terreno residenziale in vendita a Muccia
terreno edificabile
Quest?immobile viene venduto tramite asta online. Vendesi area urbana sita a Muccia (MC), in via Macario Muzio snc. Trattasi di residuo di area edificabile in zona residenziale semicentrale, dove nel lotto originario è stata realizzata una palazzina. Il bene è attualmente identificabile come marciapied […]
LEGGI ANCORA
Terreno agricolo
terreno edificabile
Quest’immobile viene venduto tramite asta online. Vendesi area urbana sita a Muccia (MC), in via Macario Muzio snc. Trattasi di residuo di area edificabile in zona residenziale semicentrale, dove nel lotto originario è stata realizzata una palazzina. Il bene è attualmente identificabile come area verde i […]
LEGGI ANCORA
Terreno agricolo
terreno edificabile
Quest’immobile viene venduto tramite asta online. Vendesi area urbana sita a Muccia (MC), in via Macario Muzio snc. Trattasi di residuo di area edificabile in zona residenziale semicentrale, dove nel lotto originario è stata realizzata una palazzina. Il bene è attualmente identificabile come marciapiede, […]
LEGGI ANCORA
Vendita Appartamento Muccia
appartamento 65.510 €
Quest'immobile viene venduto tramite asta online. Vendesi appartamento con garage sito a Muccia (MC), in via Mazzini snc. Trattasi di abitazione al piano primo e secondo di una palazzina residenziale in zona residenziale semicentrale. L'appartamento ha ingresso autonomo dal vano scala esclusivo, è compos […]
LEGGI ANCORA
Non perdere gli altri 11 annunci!









