N.B. Tutti le informazioni immobiliari sono fornite senza alcuna garanzia. Leggi il disclaimer.
Locali commerciali o negozi in vendita a Lucca in zona zona San Marco - pg. 3 di 36
MODIFICA QUESTA RICERCALocale commerciale in vendita in via vecchia v 2/A a Lucca
locale commerciale Centro Città
UF00736 - PICCOLO LOCALE COMMERCIALE - Essegi Immobiliare propone in vendita a Lucca in caratteristica piazzetta del centro storico, molto frequentata da giovani e ben visibile da Via Fillungo, piccolo fondo commerciale di circa 15 mq. L’immobile è composto da un unico vano ed è stato recentemente e comp […]
LEGGI ANCORA
Locale commerciale - 1 Vetrina a Centro Storico, Lucca
locale commerciale Centro Città Piazza Santa Maria
Centro storico zona borghi vendesi fondo commerciale di mq. 20. Le foto non si riferiscono al bene oggetto di vendita € 100000 rif. 5830 Tipo di contratto: vendita Indirizzo: Piazza Santa Maria Zona: Centro Storico Provincia: Lucca Categoria: non abitativo Tipologia immobile: 1 Vetrina Superficie (mq): 2 […]
LEGGI ANCORA
negozio in vendita a Lucca
negozio Centro Città
Centro storico zona borghi vendesi fondo commerciale di mq. 20. Le foto non si riferiscono al bene oggetto di vendita € 100000 rif. 5830
LEGGI ANCORA
Vendita Locale commerciale Lucca
locale commerciale Centro Città
UF00736 - PICCOLO LOCALE COMMERCIALE - Essegi Immobiliare propone in vendita a Lucca in caratteristica piazzetta del centro storico, molto frequentata da giovani e ben visibile da Via Fillungo, piccolo fondo commerciale di circa 15 mq. L'immobile è composto da un unico vano ed è stato recentemente e comp […]
LEGGI ANCORA
Locale commerciale in buono stato di 14 mq
negozio Centro Città Piazza Santa Maria
Interessante Chiosco nel centro storico, in posizione di forte passaggio pedonale locato al canone di € 550,00 mensili, si vende la proprietà dell'immobile gravato da diritto di superficie a favore del Comune ma con convenzione di sfruttamento del suolo irrevocabile (costo di circa 2000 euro annui). Otti […]
LEGGI ANCORA
Immobile in vendita a Lucca(LU PREMIUM
Proposto da:
Locale commerciale in vendita a Lucca, Centro storico
locale commerciale Centro Città Piazza Santa Maria
Vicino a Piazza Santa Maria, fondo ad uso commerciale con impianti a norma e bagno. - SC9573507
LEGGI ANCORA
Locale commerciale in Vendita a Lucca Lucca LU, 55100
locale commerciale Centro Città
In centro storico, chiosco (cat. C/1) di circa 20 mq ottimo come investimento: già affittato a â ¬ 600. Edificio in classe G. Si precisa che l 'indirizzo pubblicato nell 'annuncio non corrisponde all 'esatta geolocalizzazione dell 'immobile, preghiamo quindi di contattarci telefonicamente o via email pe […]
LEGGI ANCORA
Locale commerciale in vendita, Lucca san marco
Proposto da:
- prezzo medio locale commerciale in zona OMI C1 : 1799 €/m²
- prezzo medio ufficio in zona OMI C1 : 2139 €/m²
Locale commerciale in vendita a Lucca
locale commerciale Centro Città
In centro storico, chiosco (cat. C/1) di circa 20 mq ottimo come investimento: già affittato a € 600. Edificio in classe G. Si precisa che l'indirizzo pubblicato nell'annuncio non corrisponde all'esatta geolocalizzazione dell'immobile, preghiamo quindi di contattarci telefonicamente o via email per avere […]
LEGGI ANCORA
fondo commerciale - buone condizioni a Centro storico, Lucca
locale commerciale Centro Città
UF00736 - PICCOLO LOCALE COMMERCIALE - Essegi Immobiliare propone in vendita a Lucca in caratteristica piazzetta del centro storico, molto frequentata da giovani e ben visibile da Via Fillungo, piccolo fondo commerciale di circa 15 mq. L'immobile è composto da un unico vano ed è stato recentemente e comp […]
LEGGI ANCORA
Attività / Licenza in vendita a Lucca(LU PREMIUM
Locale commerciale in buono stato di 18 mq
locale commerciale Centro Città
In centro storico, chiosco (cat. C/1) di circa 20 mq ottimo come investimento: già affittato a € 600. Edificio in classe G. Si precisa che l'indirizzo pubblicato nell'annuncio non corrisponde all'esatta geolocalizzazione dell'immobile, preghiamo quindi di contattarci telefonicamente o via email per avere […]
LEGGI ANCORA
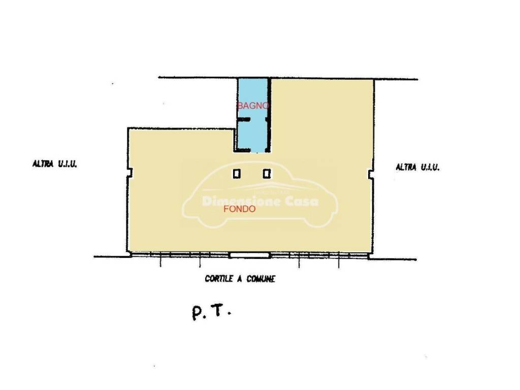
vendita negozio Lucca
negozio zona San Marco 130.000 €
LUCCA - S.MARCO, in ottima posizione fronte strada proponiamo in vendita fondo commerciale di 85 mq in un'unica stanza, con ripostiglio, antibagno e bagno. Corredato da due posti auto riservati e altri a comune con altri fondi
LEGGI ANCORA
azienda commerciale in vendita a Lucca
locale commerciale Centro Città
Vendesi fondo nel cuore della città Rif. 2023LU014 vendesi locale commerciale di circa 20 mq posto al piano terra con accesso da una porta vetrina su strada. L'immobile data la sua posizione risulta molto interessante per chi è alla ricerca di un locale ad alta visibilità commerciale nel cuore del cen […]
LEGGI ANCORA
Terratetto in vendita a Lucca
negozio zona San Marco 250.000 €
Cod.11553 Rif.Ag. app26 - Lucca – Appartamento con ingresso indipendente e terrazza abitabile In posizione strategica a Lucca, proponiamo appartamento con ingresso indipendente, situato al primo piano. L’immobile, di circa 65 mq, si compone di ingresso al piano terra con comoda loggia per biciclette; al […]
LEGGI ANCORA
- prezzo medio casa indipendente in zona OMI C1 : 2478 €/m²
- prezzo medio villetta a schiera in zona OMI C1 : 2420 €/m²
ristorante in vendita a Lucca
Attività commerciale in vendita in Piazza Santa Maria a Lucca
negozio Centro Città Piazza Santa Maria
vendesi fondo nel cuore della città Rif. 2023LU014 vendesi locale commerciale di circa 20 mq posto al piano terra con accesso da una porta vetrina su strada. L'immobile data la sua posizione risulta molto interessante per chi è alla ricerca di un locale ad alta visibilità commerciale nel cuore del centro […]
LEGGI ANCORA
Locale commerciale in buono stato di 18 mq
locale commerciale Centro Città
In centro storico, chiosco (cat. C/1) di circa 20 mq ottimo come investimento: già affittato a € 600. Edificio in classe G. Si precisa che l'indirizzo pubblicato nell'annuncio non corrisponde all'esatta geolocalizzazione dell'immobile, preghiamo quindi di contattarci telefonicamente o via email per avere […]
LEGGI ANCORA
Locale commerciale in vendita, Lucca centro storico
locale commerciale Centro Città
Rif.Ag. CF10 - In centro storico, chiosco (cat. C/1) di circa 20 mq ottimo come investimento: già affittato a ? 600. Edificio in classe G. Si precisa che l'indirizzo pubblicato nell'annuncio non corrisponde all'esatta geolocalizzazione dell'immobile, preghiamo quindi di contattarci telefonicamente o via […]
LEGGI ANCORA
Non perdere gli altri centinaia di annunci!












