N.B. Tutti le informazioni immobiliari sono fornite senza alcuna garanzia. Leggi il disclaimer.
Locali commerciali o negozi in vendita a Lucca in zona zona San Marco - pg. 23 di 37
MODIFICA QUESTA RICERCAAttività / Licenza in vendita a Lucca(LU PREMIUM
Vendesi negozio a Lucca, Piazza Napoleone - San Michele
negozio Centro Città Piazza Napoleone 95.000 €
Lucca - Ottima attivita ultradecennale di Tabaccheria con ricevitoria completa - distributore automatico H. 24 - Posizione ben visibile lungo strada di transito sia veicolare che pedonale con parcheggi. Aggi costanti negli anni, corrispettivi facilmente incrementabili. Locali adeguati all'attivita svolta […]
LEGGI ANCORA
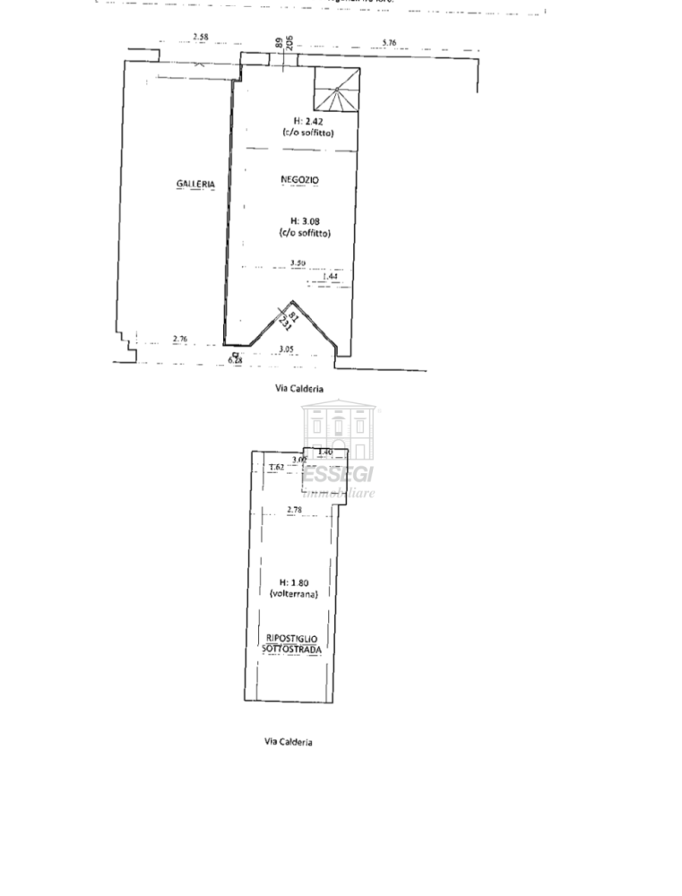
vendita negozio Lucca
Proposto da:
negozio Centro Città 350.000 €
N072C - Lucca, collocato in una centralissima via vi proponiamo un fondo commerciale articolato su due piani per una superficie complessiva di circa 70 mq. Il piano terra è composto da un unico vano di circa 30 mq mentre il primo piano, al quale si accede tramite scala interna, è composto da 2 vani oltre […]
LEGGI ANCORA
Negozio in vendita a Lucca via Vittorio Emanuele ii,, Centro Storico
negozio Centro Città Via Vittorio Emanuele II 1.580.000 €
Centro storico fondo commerciale in buone condizioni suddiviso in 4 vani posto al piano terreno con 2 ampie vetrine, al piano primo mq. 370 di luminosi uffici. Affittato con scadenza tra un anno Le immagini non si riferiscono al bene in oggetto € 1580000 rif. 6276
LEGGI ANCORA
Attività / Licenza in vendita a Lucca(LU
negozio Centro Città 40.000 €
Attività commerciale - Lucca centro storico cedesi licenza di somministrazione assistita Zona A .€ 40.000 Rif.6088
LEGGI ANCORA
bar in vendita a Lucca
Vendita Licenza Internet Point Via Beccheria 35 Lucca (LU
negozio Centro Città Via Beccheria 150.000 €
AC00914 - CEDESI ATTIVITA' DI CAFFETTERIA IN CENTRO A LUCCA - Nel cuore pulsante del centro storico di Lucca, con affaccio su una suggestiva piazza, forte passaggio turistico,cedesi attività di caratteristico locale di caffetteria perfetto per pranzi e cene informali. Il bar, in eccellenti condizioni, va […]
LEGGI ANCORA
- prezzo medio ufficio in zona OMI B2 : 3032 €/m²
- prezzo medio ufficio in zona Centro Città : 2341 €/m²
negozio in vendita a Lucca in zona zona San Marco
negozio zona San Marco 160.000 €
Un’Opportunità Unica a Due Passi dalle Storiche Mura di Lucca** **Spazio commerciale con parcheggio** Questo negozio si trova a soli 800 metri dalle storiche mura di Lucca, in una posizione facilmente accessibile e strategicamente situata tra San Marco e Borgo Giannotti. Si tratta di un edificio mode […]
LEGGI ANCORA
- prezzo medio ufficio in zona OMI C1 : 2075 €/m²
- prezzo medio ufficio in zona zona San Marco : 1935 €/m²
Attività / Licenza in vendita a Lucca(LU
Attività commerciale in vendita a Lucca
negozio Centro Città 40.000 €
Centro storico cedesi atterezzature per attività di friggitoria con somministrazione di bibite e alimenti da asporto. Locale di 26 mq. con piccolo magazzino e bagno.Contratto di locazione recente com possibilità di subetrare nell'affitto d'azienda. Ottimo fatturato e avviamento consolidato. Canone di Loc […]
LEGGI ANCORA
Negozio in vendita a Lucca, Arancio
negozio zona Arancio 150.000 €
ARANCIO - A solo 1 km dalle mura, in posizione strategica su strada ad alto passaggio, DimensioneCasa Immobiliare propone fondo commerciale di 70 mq posto al piano terra, dotato di ampia vetrina fronte strada e comodo parcheggio. Immobile già locato con ottima rendita garantita. DimensioneCasa consiglia: […]
LEGGI ANCORA
fondo commerciale - recente costruzione a Est, Lucca
locale commerciale zona San Filippo 470.000 €
UF00539 -BELLISSIMO FONDO COMMERCIALE A REDDITO. In una zona di forte sviluppo ,con alta visibilità e passaggio auto,vendiamo un prestigioso fondo ad uso commerciale. Nuova costruzione caratterizzata da un bel design e realizzata con ottimi materiali e finiture. Il fondo proposto uno dei migliori come po […]
LEGGI ANCORA
- prezzo medio locale commerciale in zona OMI C1 : 1836 €/m²
- prezzo medio locale commerciale in zona zona San Filippo : 1617 €/m²
Bed & Breakfast a Centro storico, Lucca
negozio Centro Città 640.000 €
Lucca Centro Storico - raggiungibile con l'auto a breve distanza da una delle porte di accesso al Centro Storico, dalla salita delle mura, e da tutti i servizi, vendesi Terratetto indipendente attualmente adibito a B & B - Ingresso/sala uso reception e sala colazioni, cucina, 5 camere con altrettanti bag […]
LEGGI ANCORA
- prezzo medio casa indipendente in zona OMI B1 : 3523 €/m²
- prezzo medio trivano in zona OMI B1 : 3494 €/m²
Tabaccheria a Centro storico, Lucca
negozio Centro Città 290.000 €
Lucca - CENTRO STORICO - in posizione centralissima, cedesi attività di tabacchi, articoli da regalo , cartoleria - Fondo di mq. 150 - affitto da stipulare ex- novo a € 3.000 - Richiesti Euro 290.000 Tipo di contratto: vendita Zona: Centro storico Provincia: Lucca Categoria: attività commerciale Tipologi […]
LEGGI ANCORA
Attività commerciale in vendita a Lucca
negozio
Rif.Ag. AT LU 250 - LUCCA - PRIMA PERIFERIA, proponiamo in vendita attività ben avviata di ristorazione pranzo e cena, pub, bar aperitivi, musica dal vivo in locali seminuovi di circa 240 composti da: sala con tavoli (circa 100 coperti oltre a 100 coperti esterni nel periodo primavera-estate), cucina att […]
LEGGI ANCORA
vendita piazza san michele 10 vani 300mq
negozio Centro Città Piazza San Michele 1.200.000 €
vendita piazza san michele 10 vani 300mq Lucca Lucca Toscana centro storico appartamento su centralissima piazza di ca 300mq con giardino privato annesso e cantine ampi saloni affrescati splendido oggetto e unico nel suo genere 2902 kwhm2 a
LEGGI ANCORA
Attività / Licenza in vendita a Lucca(LU PREMIUM
Immobile in vendita a Lucca(LU
locale commerciale zona San Filippo
Locale commerciale - Lucca zona Mugnano vendesi capannone industriale locato alle poste italiane in ottime condizioni mq 1260 di cui di mq.950 di capannone unico vano con zona carico e scarico oltre a 7 vani destinati a
LEGGI ANCORA
Immobile in vendita a Lucca(LU
Alimentari No Somministrazione a Centro Storico, Lucca
negozio Centro Città Corte Compagni 65.000 €
Centro storico vicinanze via fillungo cedesi attivita' di alimentari con somministrazione assistita. Ottima posizione locale ristrutturato di mq. 80 con predisposizione di canna fumaia. Le immagini non si riferiscono al bene oggetto di vendita. Affitto € 1100 ad aumentare Rif. 6029 Tipo di contratto: ven […]
LEGGI ANCORA
Non perdere gli altri centinaia di annunci!













