Logo Caasa ha trovato 172 annunci per:

Locali commerciali in vendita a Lucca in zona Massa Pisana - pg. 7 di 10

MODIFICA QUESTA RICERCA

Valore locali commerciali in vendita a Lucca

Il numero di annunci dei locali commerciali in vendita attualmente presenti nella zona OMI B1 (CENTRO STORICO (PARTE MENO PREGIATA)) non è particolarmente elevato per Lucca. In media, nella zona, il prezzo richiesto è attualmente pari a 2.805 €/m² ed è nella maggioranza dei casi compreso tra 2.060 €/m² e 3.470 €/m². Questo valore è circa il 46% superiore alla media cittadina e rende la zona una delle più costose di Lucca per questa tipologia.

In base ai dati ufficiali sulle compravendite dell' Agenzia delle Entrate riferiti alla zona OMI B1 (CENTRO STORICO (PARTE MENO PREGIATA)), i prezzi al m² per un locale commerciale in vendita sono compresi tra 1.650 €/m² e 3.250 €/m².

N.B. Tutti le informazioni immobiliari sono fornite senza alcuna garanzia. Leggi il disclaimer.

Locale commerciale in vendita a Lucca

Immobile in vendita a Lucca(LU

Locale commerciale - 2 Vetrine a San Concordio Contrada, Lucca

  • prezzo medio quadrivano in zona OMI C1 : 2472 €/m²
  • prezzo medio locale commerciale in zona OMI C1 : 1838 €/m²

Locale commerciale in buono stato di 50 mq. a Sant'anna

Locale commerciale in vendita a Lucca, Centro storico

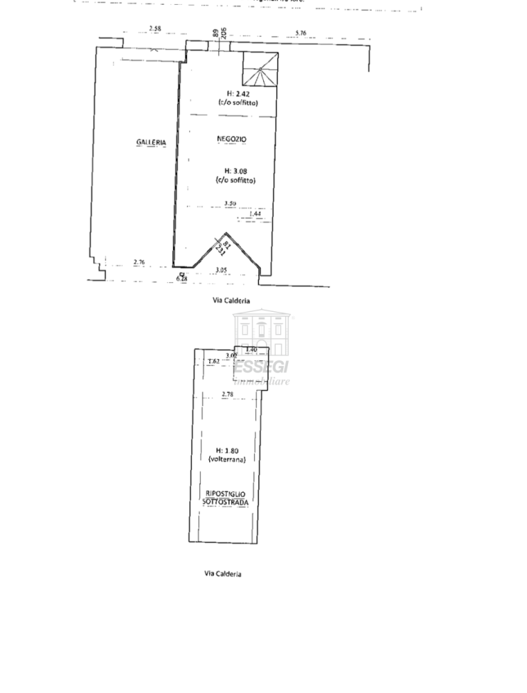
Vendita locale commerciale Via Calderia 7 Lucca (LU

Locale commerciale in buono stato di 60 mq

spazio commerciale in vendita a Lucca

Capannone ristrutturata in via san gregorio, Lucca

Ufficio in vendita, Lucca san concordio contrada

  • prezzo medio ufficio in zona OMI C1 : 2021 €/m²
  • prezzo medio appartamento in zona OMI C1 : 2601 €/m²

Locale commerciale in vendita a Lucca, San Concordio Contrada

  • prezzo medio appartamento in zona OMI B2 : 3711 €/m²
  • prezzo medio locale commerciale in zona OMI B2 : 3245 €/m²

Vendita Locale commerciale Lucca

Immobile in vendita a Lucca(LU

Locale commerciale in vendita, Lucca sant'anna

Locale commerciale ristrutturata, Lucca centro storico

Locale commerciale in vendita a Lucca, San Concordio Contrada

  • prezzo medio appartamento in zona OMI C1 : 2601 €/m²
  • prezzo medio locale commerciale in zona OMI C1 : 1838 €/m²

Locale commerciale in vendita a Lucca, San Marco

Locale commerciale in vendita a Lucca

Non perdere gli altri 154 annunci!