N.B. Tutti le informazioni immobiliari sono fornite senza alcuna garanzia. Leggi il disclaimer.
Negozi con giardino, di recente ristrutturazione in vendita a Lucca in zona Centro Città - pg. 27 di 34
MODIFICA QUESTA RICERCAAttività / Licenza in vendita a Lucca(LU PREMIUM
Negozio in vendita a Lucca, San Marco - Acquacalda
negozio zona San Marco 300.000 €
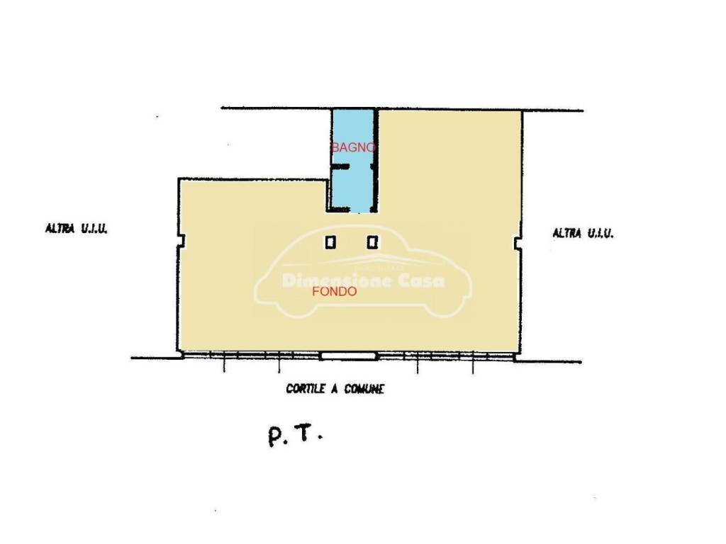
PRIMISSIMA PERIFERIA A 500 m DALLE MURA RIF. VFC2 A pochi passi dal centro storico affittasi fondo commerciale su due livelli con varie vetrine su strada di passaggio. Si compone al piano terra da due vani con doppio ingresso più bagno per un totale di circa 90 mq. Da una scala interna si accede al piano […]
LEGGI ANCORA
Immobile in vendita a Lucca(LU
san michele monolocale 50mq
negozio Centro Città 200.000 €
san michele monolocale 50mq Lucca Lucca Toscana centro storico zona centralissima su piazza cedesi attivit di bar con clientela consolidata. il locale di mq. 50 e in ottime condizioni dotato di 2 magazzini e piccolo preparazione primi piatti sottovuoto panini focacceria corredato da area esterna con 20 c […]
LEGGI ANCORA
- prezzo medio appartamento in zona OMI B2 : 3704 €/m²
- prezzo medio monolocale in zona OMI B2 : 3994 €/m²
ristorante in vendita a Lucca
negozio 65.000 €
Periferia di Lucca 6 km dal centro cedesi avviata attività di pizzeria a taglio e asporto in ottime condizioni con attrrezzature del 2008 . Il locale elvato al solo piano terreno di mq 30 è dotato di forno a legna per 10 pizze, piccola resede esterna. 70 kg mozzarella settimanali Ideale per nucleo fami […]
LEGGI ANCORA
Ristorante in buono stato di 400 mq
negozio Centro Città
Posto nel centro storico di Pietrasanta, disponiamo in vendita di pizzeria, ristorante, American Bar avviato di circa 400 mq. L'attività dispone di corte interna di 100 mq, ed ulteriori coperti esterni sul fronte. Contratto di affitto appena rinnovato, Eu 2.500,00 Tipo di contratto: vendita Categoria: co […]
LEGGI ANCORA
Ristorante - Ristorante a Circonvallazione, Lucca PREMIUM
Via San Marco bilocale 28mq
negozio zona San Marco 58.000 €
Via San Marco bilocale 28mq Lucca Lucca Toscana borgo giannotti fondo commerciale ristrutturato di mq. 28 suddiviso in 2 vani con bagno. 58000 trattabili. rif. 4669
LEGGI ANCORA
- prezzo medio appartamento in zona OMI C1 : 2607 €/m²
- prezzo medio bivano in zona OMI C1 : 2693 €/m²
Immobile in vendita a Lucca(LU
Vendesi negozio a Lucca, San Marco - Acquacalda
negozio zona San Marco 220.000 €
Vicino al centro storico, in zona di intenso passaggio veicolare e pedonale, fondo commerciale/ Artigianale con canna fumaria ed impianti a norma. Corredato da ampia cantina
LEGGI ANCORA
Via Augusto Passaglia 198 8 vani 220mq
negozio Via Augusto Passaglia 220.000 €
Via Augusto Passaglia 198 8 vani 220mq Lucca Lucca Toscana borgo giannotti di mq. 220 da ristrutturare polsto al piano primo con possibilita di trasformazione in civile abitazione. corredato da di mq. 70. e da 400 mq di parcheggio in comune ad altre unita abitative. 220.000 rif. 5107
LEGGI ANCORA
Attività parrucchiera
negozio Sant'Anna
Da Privato. Cedesi attività avviata di parrucchiera (causa gravidanza a rischio
LEGGI ANCORA
Villa in buono stato di 360 mq PREMIUM
Proposto da:
- prezzo medio casa indipendente in zona OMI C1 : 2487 €/m²
- prezzo medio villa in zona OMI C1 : 2530 €/m²
Bar in buono stato di 250 mq
negozio Centro Città
Pietrasanta - Centro storico *Nostra esclusiva di vendita* Nella piazza principale di Pietrasanta, storico bar vende licenza con eventuale possibilità di acquisto del fondo commerciale Dalle colazioni al dopo cena è punto di riferimento per numerosissima clientela Completamente ristrutturato nel 2017 off […]
LEGGI ANCORA
vendita Via Antonio Gramsci quadrilocale 80mq
negozio zona Arancio Via Antonio Gramsci 180.000 €
vendita Via Antonio Gramsci quadrilocale 80mq Lucca Lucca Toscana arancio appartamento piano primo con ascensore. egrave in buone condizioni e si compone da ingresso ampio soggiorno cucinotto con terrazzo con caldaia disimpegno due camere studio e bagno. un posto auto allinterno dello spazio condominiale […]
LEGGI ANCORA
- prezzo medio appartamento in zona OMI C1 : 2607 €/m²
- prezzo medio quadrivano in zona OMI C1 : 2449 €/m²
Via Romana quadrilocale 900mq
negozio Via Roma 1.100.000 €
Via Romana quadrilocale 900mq Lucca Lucca Toscana zona est 3 km da lucca fabbricato direzionale commerciale di recente costruzione suddiviso in 2 piani di mq. 300 a piano con ingressi indipendenti. corredato da 400 mq di piano interrato e parcheggio. ottima posizione le immagini non si riferiscono al ben […]
LEGGI ANCORA
Albergo/hotel in buono stato di 1422 mq
negozio
LUCCA PERIFERIA - In una posizione strategica, con le località di Montecarlo di Lucca, Pescia e Collodi a pochi minuti di macchina ed i centri storici di Lucca e Pisa a pochi chilometri, proponiamo in vendita struttura alberghiera con ristorazione. La struttura è composta da un piano seminterrato di 370 […]
LEGGI ANCORA
Industriale Via del Seminario 12 vani 1200mq
negozio Via del Seminario 750.000 €
Industriale Via del Seminario 12 vani 1200mq Lucca Lucca Toscana zona nord di mq 1190 costituito da fabbricato in cemento armato di cui mq. 680 destinati a con altezza 6.66 mq 250 con altezza 325 destinati ad esposizione e mq 260 con altezza mq. 305 destinati ad ufficio. possibilit di affittare circa mq. […]
LEGGI ANCORA
Attività / Licenza in vendita a Lucca(LU PREMIUM
Ristorante in vendita a Lucca via San Giorgio, Piazza Napoleone - San Michele
negozio Centro Città Piazza Napoleone
In ottima posizione nel cuore centro storico di Lucca in una posizione molto visibile e a pochi passi da Via Fillungo proponiamo la vendita di un ristorante con clientela fidelizzata. L'immobile è in locazione e si presenta in ottimo stato di cura e di manutenzione, recentemente ristrutturato mantenendo […]
LEGGI ANCORA
Albergo/hotel in buono stato di 350 mq
negozio Centro Città 600.000 €
A Viareggio a soli 600 metri dalla Passeggiata e dal mare disponiamo in vendita di Hotel con parcheggio privato. L'hotel è situato nella zona del centro storico attorno alla Torre Matilde storicamente famosa e alle spalle del canale Burlamacco di Viareggio. L'albergo dispone di 9 camere con bagno, t.v., […]
LEGGI ANCORA
Viale Europa 479 bilocale 90mq
negozio Zona San Concordio 250.000 €
Viale Europa 479 bilocale 90mq Lucca Lucca Toscana s. concordio cedesi attivita di ristorante pizzeria comprensivo di attrezzature composto da ampia sala cucina bagno. 250.000 rif 5099
LEGGI ANCORA
- prezzo medio appartamento in zona OMI C1 : 2607 €/m²
- prezzo medio bivano in zona OMI C1 : 2693 €/m²
Non perdere gli altri centinaia di annunci!












