N.B. Tutti le informazioni immobiliari sono fornite senza alcuna garanzia. Leggi il disclaimer.
Negozi in asta giudiziaria, di nuova costruzione in vendita a Lucca in zona Centro Città
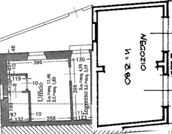
MODIFICA QUESTA RICERCANegozio in vendita a Lucca via Guinigi,, Piazza Anfiteatro - Torre Guinigi PREMIUM
Proposto da:
vendita negozio Lucca
Proposto da:
negozio Centro Città 164.000 €
E006P - Arancio - Lucca. Cerchi un investimento a pochi passi dal centro storico di Lucca? In una via di grande passaggio e alta visibilità, ti propongo un negozio al piano terra già locato con regolare contratto di locazione 6+6, che garantisce una rendita annua di € 15.240 (€1.270/mese). L’immobile si […]
LEGGI ANCORA
vendita attività commerciale Lucca
negozio Centro Città 400.000 €
Vicinanze Mura di Lucca, storica tabaccheria edicola con facile parcheggio, che offre sigarette, giornali, servizi Lottomatica, Gratta e Vinci, Lotto e SuperEnalotto e molto altro, in posizione strategica con costante e intenso passaggio pedonale e veicolare. Il locale di circa 60 mq è in buone condizion […]
LEGGI ANCORA
Attività commerciale in buono stato di 80 mq
Proposto da:
negozio Centro Città 95.000 €
CAPOLUOGO - Pietrasanta - Centro storico Cessione di Attività commerciale di Cocktail Bar composto da 5 vani e da 2 bagni di 80 mq. con possibilità di canna fumaria. Importo mensile di affitto € 1.400,00 Tipo di contratto: vendita Categoria: commerciale Tipologia immobile: attività commerciale Quartiere: […]
LEGGI ANCORA
Vendita attività commerciale Viale G. Puccini 662 Lucca (LU
negozio Centro Città 1.300.000 €
Zona ovest 2 km dalle mura di Lucca in prossimità di strada di alto scorrimento fabbricato commerciale costituito da due unità immobiliari per complessivi mq 980 destinate a negozio, magazzino e ufficio. Corredato da area esterna di mq 1500 di cui mq 550 a piazzale. Buone condizioni ottima posizione. Le […]
LEGGI ANCORA
Attività / Licenza in vendita a Lucca(LU
Immobile in vendita a Lucca(LU PREMIUM
vendita negozio Lucca
negozio zona San Marco 130.000 €
LUCCA - S.MARCO, in ottima posizione fronte strada proponiamo in vendita fondo commerciale di 85 mq in un'unica stanza, con ripostiglio, antibagno e bagno. Corredato da due posti auto riservati e altri a comune con altri fondi
LEGGI ANCORA
Piazza Napoleone 32 bilocale 15mq
negozio Centro Città Piazza Napoleone 185.000 €
Piazza Napoleone 32 bilocale 15mq Lucca Lucca Toscana ac03733 - attivit commerciale storica in vendita posizione strategica - nel cuore pulsante del centro storico di lucca lungo una delle vie principali a forte passaggio pedonale e turistico essegi immobiliare propone in vendita avviata attivit commerci […]
LEGGI ANCORA
Piazza Sant´Alessandro 1 5 vani 300mq
negozio Centro Città Piazza Sant'Alessandro
Piazza Sant´Alessandro 1 5 vani 300mq Lucca Lucca Toscana lucca centro storico cedesi in affitto dazienda avviata attivit di ristorante pizzeria in ottime condizioni dotata di 100 coperti interni distrubuiti su due ampie sale per complessivi mq 300. il locale elevato al solo piano terreno stato totalment […]
LEGGI ANCORA
Immobile in vendita a Lucca(LU
Proposto da:
negozio Centro Città 600.000 €
Attività commerciale - Centro storico, rif. UF6468 Fondo commerciale posto al piano terra con due vetrine fronte strada composto da un unico vano open space di circa 90 mq con altezza interna di 4,5 m e corredato da mezzan
LEGGI ANCORA
Vendita negozi uffici capannoni a Lucca
negozio Centro Città 700.000 €
Rif: 1386006/2118/cf27 - centro storico lucca, via fillungo, fondo commerciale di circa 70 mq posto al piano terra con vetrina, composto da due vani, bagno e stanza uso magazzino/ripostiglio al piano primo. La soluzione è ideale per attività commerciali o professionali in pieno centro storico. Si precis […]
LEGGI ANCORA
Ristorante - Ristorante a Circonvallazione, Lucca PREMIUM
vendita negozio Lucca
negozio Centro Città
CAPOLUOGO - Lucca - Centro storico vendesi fondo commerciale in posizione centrale di cca mq 20 con bagno e piccolo antibagno- immobile a reddito canone di affitto €500,00( contratto 6+6 stipulato a luglio 2023
LEGGI ANCORA
Negozio in Vendita a Lucca Chiasso Barletti
negozio Centro Città Chiasso Barletti
CAPOLUOGO - Lucca - Centro storico vendesi fondo commerciale in posizione centrale di cca mq 20 con bagno e piccolo antibagno- immobile a reddito canone di affitto â ¬500,00( contratto 6+6 stipulato a luglio 2023
LEGGI ANCORA
ristorante in vendita a Lucca
negozio in vendita a Lucca
negozio Centro Città
Centro storico zona borghi vendesi fondo commerciale di mq. 20. Le foto non si riferiscono al bene oggetto di vendita € 100000 rif. 5830
LEGGI ANCORA
Attività commerciale in vendita a Lucca via dell'Anfiteatro, Piazza Anfiteatro - Torre Guinigi
negozio Torre Via dell'Anfiteatro 198.000 €
Nel cuore del centro storico di Lucca, lungo una delle sue principali e più frequentate vie, proponiamo in vendita fondo commerciale di circa 50 mq, accatastato in categoria C/1 (negozio/bottega). Il fondo è composto da un bagno e due ambienti ampi e molto versatili, facilmente personalizzabili in base a […]
LEGGI ANCORA
Negozio in vendita a Lucca via Guinigi,, Piazza Anfiteatro - Torre Guinigi PREMIUM
Proposto da:
Negozio in vendita a Lucca via Guinigi,, Piazza Anfiteatro - Torre Guinigi
Proposto da:
negozio Torre Via Guinigi 159.000 €
rif.3357) In pieno centro storico, vicinissimo ai principali monumenti della città, proponiamo in vendita, locale commerciale completamente ristrutturato a marzo 2025, posto al piano terra di un palazzo storico, e composto da ingresso, ripostiglio, ampia stanza e bagno, il tutto per una superficie calpes […]
LEGGI ANCORA
Negozio in vendita a Lucca, Centro Storico
Attività commerciale in vendita in Via Fillungo a Lucca
negozio Centro Città
Centro storico ottima posizione cedesi licenza di vicinato e di somministrazione con fondo di mq. 24 in ottime condizioni completo di arredi e bagno. Canone di locazione € 1500. € 80000 rif. 6261
LEGGI ANCORA
Non perdere gli altri centinaia di annunci!












