N.B. Tutti le informazioni immobiliari sono fornite senza alcuna garanzia. Leggi il disclaimer.
Capannoni o locali di sgombero con cantina e con giardino e con posto auto, di recente ristrutturazione in vendita a Capannori in zona Via dei Bocchi
MODIFICA QUESTA RICERCAImmobile in vendita a Capannori(LU PREMIUM
Proposto da:
- prezzo medio locale commerciale in zona Lunata : 694 €/m²
- prezzo medio locale commerciale a Capannori : 910 €/m²
capannone in vendita a Marlia
locale di sgombero Marlia
Primo lotto: fondo su due piani con servizi igienici per 750mq e 40 di cantina uso commerciale. Secondo lotto: locale artigianale di 1200mq. tutto un unica stanza. terzo lotto: Fondo artigianale du due livelli in ottime condizioni per 1200mq. quarto lotto: magazzino di 120mq. Piazzale interno di 3000mq P […]
LEGGI ANCORA
capannone in vendita a Segromigno in monte
capannone Segromigno in Monte
Capannone a Segromigno su due livelli e annessi esterni per un totale di 210mq oltre resede privata e giardino di circa 800mq. Ideale per la trasformazione in civile abitazione. 290 kWh/m2 a
LEGGI ANCORA
Capannone - Commerciale a Capannori
locale di sgombero Via dei Bocchi 970.000 €
UF03552 - BELLISSIMO CAPANNONE DI RAPPRESENTANZA PARI AL NUOVO - Questo capannone ubicato in una zona della Piana facilmente raggiungibile dagli assi autostradali è idoneo per attività che oltre alla funzionalità abbiano anche bisogno di immagine. La struttura molto elegante si presenta in perfette condi […]
LEGGI ANCORA
capannone in vendita a Capannori
Vendita Capannone Capannori
capannone 450.000 €
Vendesi capannone ad uso artigianale a Segromigno di circa 550 mq con zona uffici all'interno e doppio servizio. Il capannone ha un'altezza interna di 6,50 mt. ed è dotato di impianto a pompe di calore per il riscaldamento invernale. 290 kWh/m2 a
LEGGI ANCORA
capannone in vendita a Capannori PREMIUM
- prezzo medio appartamento in zona OMI D2 : 1632 €/m²
- prezzo medio appartamento a Capannori : 1782 €/m²
Vendita Capannone Capannori
locale di sgombero Segromigno in Monte 100.000 €
Capannone a Segromigno da ristrutturare con resede privata di circa 300mq. Il capannone è composto al piano terra da un ampio vano laboratorio di circa 400mq oltre servizi con altezza massima di 4,60mt e al primo piano da un magazzino di circa 100 mq. 290 kWh/m2 a
LEGGI ANCORA
capannone in vendita a Segromigno in piano
locale di sgombero Lunata Via Pesciatina 390.000 €
SEGROMIGNO - Capannone artigianale di 1100 mq, composto da 700 mq di vani ad uso lavorazione/magazzino, dotati di impianto di riscaldamento con altezza sotto trave di 6 metri e circa 280 mq di uffici recentemente ristrutturati. A corredo 860 mq di piazzale e posti auto coperti. Capannone dotato di impian […]
LEGGI ANCORA
capannone in vendita a Segromigno in piano
capannone 450.000 €
Vendesi capannone ad uso artigianale a Segromigno di circa 550 mq con zona uffici all'interno e doppio servizio. Il capannone ha un'altezza interna di 6,50 mt. ed è dotato di impianto a pompe di calore per il riscaldamento invernale. 290 kWh/m2 a
LEGGI ANCORA
Vendita Capannone Capannori
capannone 350.000 €
Capannone in ottime condizioni a Segromigno in Piano di circa 370 mq ad uso artigianale dotato di zona uffici e servizi igienici. A corredo tettoia esterna coperta di 140 mq e piazzale recintato privato di 1200 mq. 290 kWh/m2 a
LEGGI ANCORA
Vendita Capannone Capannori
locale di sgombero Lunata Via Pesciatina 390.000 €
SEGROMIGNO - Capannone artigianale di 1100 mq, composto da 700 mq di vani ad uso lavorazione/magazzino, dotati di impianto di riscaldamento con altezza sotto trave di 6 metri e circa 280 mq di uffici recentemente ristrutturati. A corredo 860 mq di piazzale e posti auto coperti. Capannone dotato di impian […]
LEGGI ANCORA
Immobile in vendita a Capannori(LU PREMIUM
- prezzo medio locale commerciale a Capannori : 910 €/m²
capannone in vendita a Segromigno in piano
capannone in vendita a Segromigno in monte
locale di sgombero Segromigno in Monte 390.000 €
Capannone a Segromigno con laboratorio di circa 420mq con altezza di circa 5m, magazzino di circa 125mq, al primo piano 3 vani ad uso uffici e bagno. Corredato da piazzale di circa 400mq. 290 kWh/m2 a
LEGGI ANCORA
capannone in vendita a Segromigno in piano
capannone Lunata Via Pesciatina 220.000 €
SEGROMIGNO IN PIANO - Capannone ad uso artigianale/magazzino di circa 575 mq, suddiviso internamente in ampio vano ad uso artigianale, due locali ad uso magazzino, ampio ripostiglio, due uffici, spogliatoi e servizi igienici. A corredo 80 mq di tettoia piazzale di 1670 mq. Dotato di sistema antincendio. […]
LEGGI ANCORA
capannone in vendita a Segromigno in piano
capannone 650.000 €
Capannone a segromigno in buone condizioni ad uso artigianale, di 2200 metri quadri su due livelli e si compone di ampi locali ad uso uffici, zona espositiva, locali spogliatoi per i dipendenti e bagni. Corredato da ampio piazzale e zona per movimentazione autoarticolati e terreno agricolo di circa 2000m […]
LEGGI ANCORA
capannone in vendita a Capannori
capannone 210.000 €
CODICE ANNUNCIO 109: A Segromigno in piano proponiamo in vendita Capannone ad uso industriale con piazzale esterno per carico e scarico merci. Internamente il capannone è diviso in due ampi ambienti per una superficie complessiva di circa 354 metri quadri. A corredo si dispone di un ufficio accessibile s […]
LEGGI ANCORA
- prezzo medio ufficio in zona OMI D2 : 1288 €/m²
- prezzo medio ufficio a Capannori : 1356 €/m²
Immobile in vendita a Capannori(LU PREMIUM
Proposto da:
- prezzo medio locale commerciale in zona Lunata : 694 €/m²
- prezzo medio locale commerciale a Capannori : 910 €/m²
Locale commerciale in vendita a Capannori
locale di sgombero 1.400.000 €
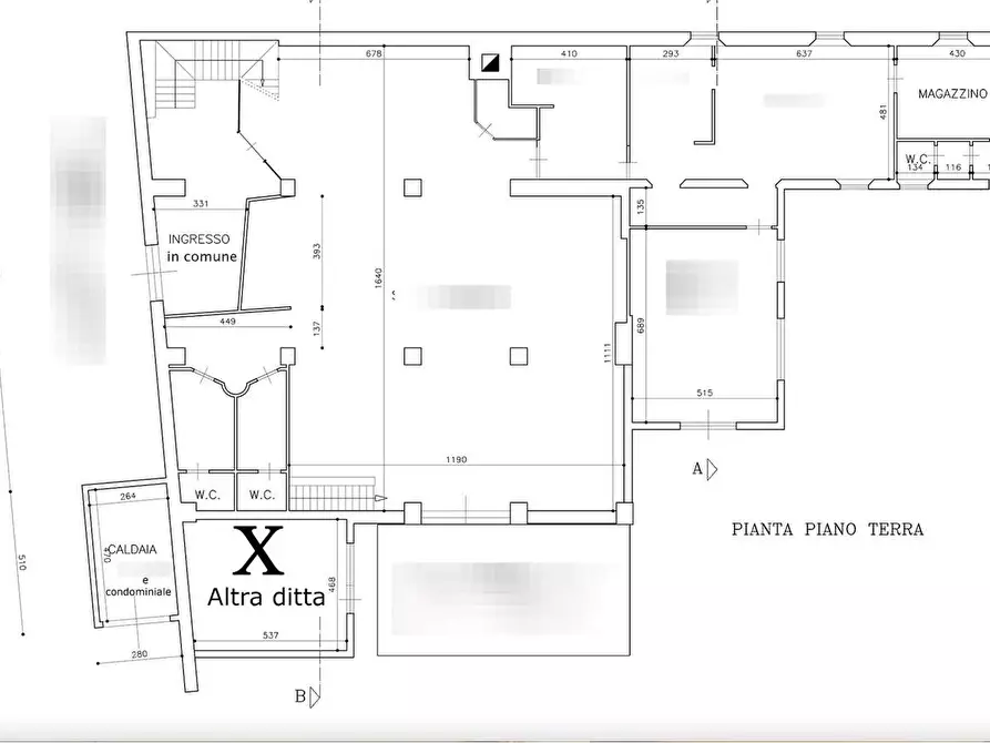
Rif.Ag. 00403 - Capannori, proponiamo in vendita fondo commerciale di 850 mq posto all'interno di fruito centro commerciale/direzionale con affaccio su strada ad alta percorrenza e quindi con forte visibilità , affittato ad un ristorante molto importante con un un canone mensile di 7.000,00 euro (settemi […]
LEGGI ANCORA
- prezzo medio locale commerciale a Capannori : 910 €/m²
Vendita Capannone Capannori
capannone 650.000 €
Capannone a segromigno in buone condizioni ad uso artigianale, di 2200 metri quadri su due livelli e si compone di ampi locali ad uso uffici, zona espositiva, locali spogliatoi per i dipendenti e bagni. Corredato da ampio piazzale e zona per movimentazione autoarticolati e terreno agricolo di circa 2000m […]
LEGGI ANCORA
Capannone in Vendita a Capannori Marlia
capannone Marlia 1.100.000 €
Primo lotto: fondo su due piani con servizi igienici per 750mq e 40 di cantina uso commerciale.Secondo lotto: locale artigianale di 1200mq. tutto un unica stanza.terzo lotto: Fondo artigianale du due livelli in ottime condizioni per 1200mq.quarto lotto: magazzino di 120mq. Piazzale interno di 3000mq Piaz […]
LEGGI ANCORA
Non perdere gli altri 19 annunci!












