Valutazione immobiliare indipendente, accurata e gratuita
L'Opinione di Caasa® per la casa indipendente in vendita ad Uboldo a 539.000 € (cod.659caa15)
Secondo Caasa, per la casa indipendente in vendita ad Uboldo, la richiesta di 539.000 € è leggermente vantaggiosa rispetto agli annunci simili.
Analisi immobiliare
La casa indipendente, situata nella zona OMI D1, è proposta in vendita a
539.000 € per una
superficie commerciale di
202 m² e quindi ad un prezzo per metro quadrato pari a
2668 €/m²
.
Tale prezzo
è leggeremente più conveniente di quello stimato da Caasa per immobili in vendita simili per tipologia, caratteristiche, classe energetica e zona, che è compreso tra
2.851 €/m² e
3.036 €/m².
Presa in considerazione la posizione della casa indipendente si sono utilizzati in raffronto i valori medi nelle zone limitrofe . Ad affinare la stima ha contribuito anche la classe energetica (A+) oltre alla conoscenza dello stato dell'immobile (di nuova costruzione) e di alcune caratteristiche significative come la climatizzazione o il garage. Per i motivi esposti i valori accettabili per l'offerta costituiscono un intervallo relativamente limitato.
Mercato immobiliare ad Uboldo
Per quanto riguarda più in generale il comune di Uboldo, sono presenti al momento più di cento annunci per
case indipendenti in vendita (meno del 5% dell'intera provincia) .
Relativamente alla dinamica dei prezzi, possiamo dire che negli ultimi 6 mesi i prezzi medi in tutto il comune per case indipendenti in vendita sono
in debole aumento (+1,38%).
NOVITÀ Il risultato che vedi dipende dai dati che siamo riusciti ad estrarre dall'annuncio: ottieni una stima più accuranta di questo immobile, inserendo dati più precisi.
N.B. L'Opinione di Caasa® è un servizio sperimentale realizzato tramite tecniche di Intelligenza Artificiale, fornito senza alcuna garanzia di correttezza e completezza. Leggi il disclaimer o segnalaci un problema.
IMMAGINI
IN SINTESI
PROPOSTO DA:
MARCO IMMOBILIARE
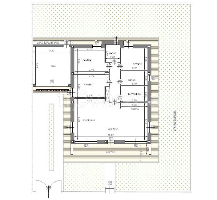
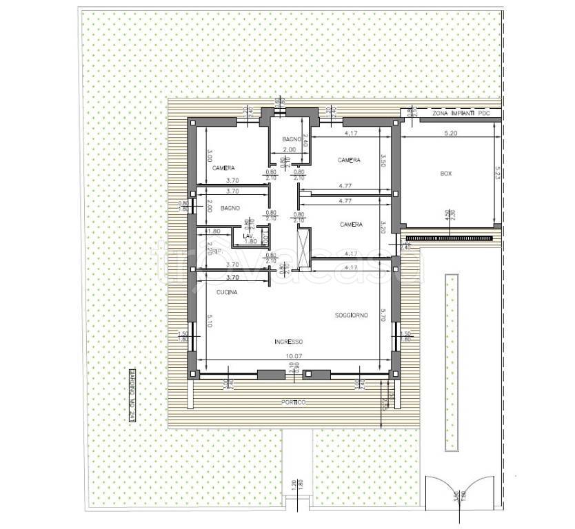
DESCRIZIONE
di nuova costruzione con posto auto di nuova costruzione con giardino con garage con termocondizionamento con climatizzazione
In ottima posizione, tranquilla ma servita, proponiamo ville indipendenti in fase di realizzazione, con un capitolato di alto livello, ventilazione meccanica, riscaldamento a pavimento con pompa di calore, impianto fotovoltaico, raffrescamento ad aria condizionata con split system, predisposizione antifurto. Consegna prevista per fine 2027. Le due ville saranno edificate in disposte su un unico livello da 150 mq e composte da ingresso su luminoso soggiorno con cucina a vista, disimpegno, tre camere da letto, rispostiglio, due bagni e zona lavanderia; complete di box doppio, portico e giardino di 380 mq su tre lati. Possibilità di personalizzare la distribuzione degli spazi interni in base alle proprie esigenze e di scegliere materiali e finiture. Progetti e capitolato disponibili presso nostri uffici. a partire da euro 539.000,00

