Valutazione immobiliare indipendente, accurata e gratuita
L'Opinione di Caasa® per l'appartamento in vendita a Tradate in zona Abbiate Guazzone a 145.000 € (cod.652685b0)
Secondo Caasa, per l'appartamento a Tradate in zona Abbiate Guazzone, la richiesta di 145.000 € è significativamente svantaggiosa rispetto agli annunci simili.
Analisi immobiliare
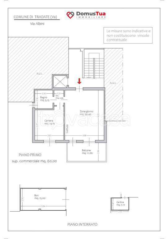
L'appartamento, situato nella zona OMI C1, è proposto in vendita a
145.000 € per una
superficie commerciale di
60 m² e quindi ad un prezzo per metro quadrato pari a
2416 €/m²
.
Questo valore
è significativamente più alto di quello stimato da Caasa per immobili in vendita simili per tipologia, caratteristiche, classe energetica e localizzati nella stessa zona OMI, che è compreso tra
1.771 €/m² e
1.946 €/m².
La conoscenza con buona approssimazione della localizzazione dell'immobile ha consentito di utilizzare come raffronto i dati medi elaborati esattamente nella zona OMI di appertenenza (ZONA PEDECOLLINARE AD EST DEL CENTRO STORICO DI TRADATE.) per appartamenti (da 1.095 €/m² a 2.130 €/m²) e per bivani (da 1.065 €/m² a 2.190 €/m²). Inoltre, Caasa ha potuto affinare la stima anche con la conoscenza della classe energetica (D) oltre che dello stato dell'immobile (di recente costruzione) e di alcune caratteristiche significative come il posto auto, la disponibilità di una cantina o la climatizzazione. Per i motivi esposti è possibile considerare un intervallo di valori accettabili per l'offerta abbastanza limitato.
Mercato immobiliare a Tradate
Per quanto riguarda più in generale la città di Tradate, sono presenti al momento più di 200 annunci per
appartamenti in vendita (meno del 5% dell'intera provincia)
e il maggior numero di annunci per questa tipologia sono relativi alla zona di Ceppine, mentre nella zona di Abbiate Guazzone è presente un numero significativamente inferiore di annunci.
La richiesta media nella zona dove sorge l'appartamento (Abbiate Guazzone) è pari a
1.685 €/m² che la rende la più economica della città .
Per quanto riguarda la dinamica dei prezzi, negli ultimi 6 mesi i prezzi medi in tutta la città per appartamenti in vendita sono
in leggero aumento (+2,32%).
NOVITÀ Il risultato che vedi dipende dai dati che siamo riusciti ad estrarre dall'annuncio: ottieni una stima più accuranta di questo immobile, inserendo dati più precisi.
N.B. L'Opinione di Caasa® è un servizio sperimentale realizzato tramite tecniche di Intelligenza Artificiale, fornito senza alcuna garanzia di correttezza e completezza. Leggi il disclaimer o segnalaci un problema.
IMMAGINI
IN SINTESI
PROPOSTO DA:
DOMUS TUA DI RIZZA RAFFAELA
DESCRIZIONE
di recente costruzione con posto auto con cantina con terrazza con balcone di recente costruzione con climatizzazione
In una posizione strategica di Tradate, comoda sia per il centro cittadino che per Abbiate Guazzone, proponiamo in vendita un appartamento al primo piano di un condominio del 2008, con una superficie di 60 mq. L'immobile, recentemente aggiornato nel 2023, presenta bagno modernizzato con finiture curate, pavimentazione nuova, porte interne sostituite, allarme perimetrale e volumetrico, oltre alla posa delle zanzariere sui serramenti in legno doppio vetro. Per comprendere al meglio gli spazi, conviene partire dalla planimetria: il soggiorno con cucina a vista di 30 mq offre una disposizione regolare e versatile. Attualmente è presente una parete divisoria, realizzata per esigenze familiari, che verrà rimossa a breve, restituendo così un ampio ambiente unico e luminoso. Dal portoncino d'ingresso si accede quindi alla zona giorno confortevole e funzionale, che si apre su un meraviglioso terrazzino di 11 mq, perfetto per momenti di relax all'aperto. Il disimpegno conduce alla zona notte, composta da una camera matrimoniale e da un bagno elegante e funzionale, completando l'armonia degli spazi. L'appartamento è inoltre dotato di aria condizionata con due split, box singolo e cantina, garantendo comfort e praticità. Una soluzione ideale per chi cerca un appartamento pronto da vivere, con spazi ben distribuiti, comfort moderni e una posizione comoda per muoversi facilmente in città e nei dintorni


