Valutazione immobiliare indipendente, accurata e gratuita
Appartamento in vendita a Tradate a 87.800 € (cod.652672c3)
Caasa non ha sufficienti informazioni per commentare l'appartamento in vendita a Tradate - 652672c3.
Analisi immobiliare
I dati in posseso di Caasa per quest'immobile sono insufficienti, inaffidabili o contraddittori per proporre un'analisi attendibile.
Mercato immobiliare a Tradate
Per quanto riguarda più in generale la città di Tradate, sono presenti al momento più di 200 annunci per
appartamenti in vendita (meno del 5% dell'intera provincia)
e il maggior numero di annunci per questa tipologia sono relativi alla zona di Ceppine.
La dinamica dei prezzi in tutta la città mostra che negli ultimi 6 mesi, i prezzi per appartamenti in vendita sono
in aumento (+4,40%).
NOVITÀ Il risultato che vedi dipende dai dati che siamo riusciti ad estrarre dall'annuncio: ottieni una stima più accuranta di questo immobile, inserendo dati più precisi.
N.B. L'Opinione di Caasa® è un servizio sperimentale realizzato tramite tecniche di Intelligenza Artificiale, fornito senza alcuna garanzia di correttezza e completezza. Leggi il disclaimer o segnalaci un problema.
IMMAGINI
IN SINTESI
DESCRIZIONE
di recente ristrutturazione con posto auto con cantina con terrazza con balcone di recente ristrutturazione in asta giudiziaria
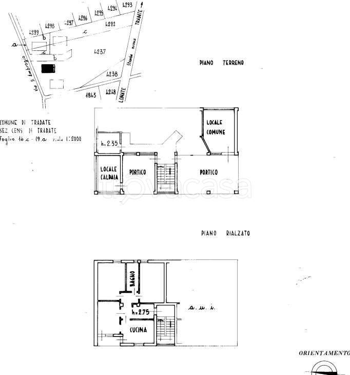
Appartamento sito a Tradate in Via Sant'Ambrogio, 7 con annessi cantina e box e altro box sito in Via Don Minzoni, in un complesso condominiale. L’appartamento è composto da tre locali, posto al piano primo di più ampio complesso residenziale. La pro […]
