Valutazione immobiliare indipendente, accurata e gratuita
Casa indipendente in vendita a Somma Lombardo a 360.000 € (cod.650ad193)
Caasa non ha sufficienti informazioni per commentare la casa indipendente in vendita a Somma Lombardo - 650ad193.
Analisi immobiliare
I dati in posseso di Caasa per quest'immobile sono insufficienti, inaffidabili o contraddittori per proporre un'analisi attendibile.
Mercato immobiliare a Somma Lombardo
Per quanto riguarda più in generale la città di Somma Lombardo, sono presenti al momento più di 200 annunci per
case indipendenti in vendita (meno del 5% dell'intera provincia)
e il maggior numero di annunci per questa tipologia sono relativi alla zona di Coarezza.
La dinamica dei prezzi in tutta la città mostra che negli ultimi 6 mesi, i prezzi per case indipendenti in vendita sono
in deciso aumento (+9,52%).
NOVITÀ Il risultato che vedi dipende dai dati che siamo riusciti ad estrarre dall'annuncio: ottieni una stima più accuranta di questo immobile, inserendo dati più precisi.
N.B. L'Opinione di Caasa® è un servizio sperimentale realizzato tramite tecniche di Intelligenza Artificiale, fornito senza alcuna garanzia di correttezza e completezza. Leggi il disclaimer o segnalaci un problema.
IMMAGINI
IN SINTESI
PROPOSTO DA:
Studio C.P.A. 2009
DESCRIZIONE
di nuova costruzione con posto auto con terrazza con balcone con giardino con cucina abitabile con termocondizionamento di nuova costruzione con climatizzazione
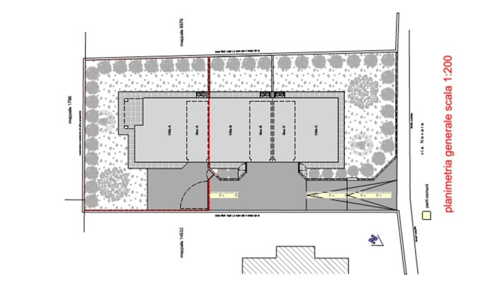
SOMMA LOMBARDO ZONA RESIDENZIALE DISPONIAMO IN VENDITA ULTIMA VILLA A SCHIERA IN CONTESTO TRIFAMILIARE. LA è DISPOSTA SU DUE LIVELLI PER CIRCA 110 mq a parte ambio box di circa 18 mq e giardino di circa 150 mq su tre lati. è così composta al piano terra troviamo l'accesso carraio e pedonale all'esterno della recinzione, area privata di accesso al box e all'ingresso pedonale, giardino privato su tre lati; all'interno ingresso da portoncino blindato, ampio soggiorno con accesso diretto al giardino, cucina abitabile con accesso diretto al portico, bagno di servizio al piano; scala di accesso al piano superiore; primo piano con arrivo su pianerottolo di disimpegno per il bagno padronale che ha il suo balconcino, e le tre camere da letto di cui due con accesso diretto ai rispettivi balconi. l'immobile ha riscaldamento a pavimento con il recupero dell'energia mediante pannelli solari e pompe di calore. le specifiche più dettagliate saranno messe a disposizione presso il nostro ufficio. il prezzo di vendita è al netto di IVA ma comprende anche gli allacciamenti e l'accatastamento. Consegna prevista per giugno 2026. Scopri l'ultima villa a schiera in un contesto trifamiliare, un'opportunità unica per vivere in un ambiente tranquillo e moderno. Questa splendida proprietà, disposta su due livelli per circa 110 mq, offre un ampio box di circa 18 mq e un giardino privato di circa 150 mq, perfetto per godere di momenti all'aperto con amici e familiari. L'accesso carraio e pedonale esterno garantisce comodità e privacy. Al piano terra, l'ingresso si apre su un luminoso soggiorno con accesso diretto al giardino, ideale per rilassarsi o intrattenere. La cucina abitabile, con accesso al portico, è perfetta per preparare deliziosi pasti e godersi il relax della giornate primaverili / estive. Completa il piano un pratico bagno di servizio. Una scala elegante conduce al primo piano, dove troviamo tre camere da letto, due delle quali con accesso ai rispettivi balconi. Il disimpegno offre l'accesso al bagno padronale, dotato d[…]

