Valutazione immobiliare indipendente, accurata e gratuita
Negozio in affitto a Saronno a 4.500 € mese (cod.654f9d3e)
Caasa non ha sufficienti informazioni per commentare il negozio in affitto a Saronno - 654f9d3e.
Analisi immobiliare
I dati in posseso di Caasa per quest'immobile sono insufficienti, inaffidabili o contraddittori per proporre un'analisi attendibile.
Mercato immobiliare a Saronno
Per quanto riguarda più in generale la città di Saronno, sono presenti al momento più di cinquanta annunci per
negozi in affitto (meno del 10% dell'intera provincia) .
Vedi altre informazioni direttamente su
Mercato-Immobiliare.info
NOVITÀ Il risultato che vedi dipende dai dati che siamo riusciti ad estrarre dall'annuncio: ottieni una stima più accuranta di questo immobile, inserendo dati più precisi.
N.B. L'Opinione di Caasa® è un servizio sperimentale realizzato tramite tecniche di Intelligenza Artificiale, fornito senza alcuna garanzia di correttezza e completezza. Leggi il disclaimer o segnalaci un problema.
IMMAGINI
IN SINTESI
DESCRIZIONE
di recente ristrutturazione con termocondizionamento di recente ristrutturazione con cantina
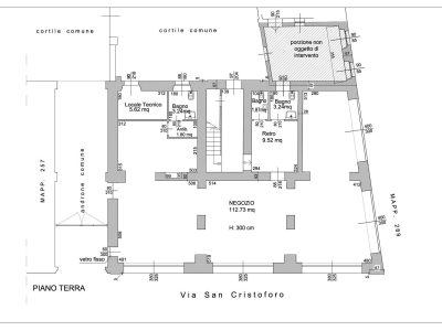
Saronno, centro storico, zona pedonale, in via San Cristoforo, l'arteria commerciale più ambita e frequentata della città, in una palazzina di dimensioni contenute, proponiamo un negozio con superficie lorda complessiva di 180 mq con cinque ampissime vetrine a tutta altezza. La soluzione, un open space con finiture moderne ed accurate frutto di una ristrutturazione integrale, attenta a garantire, oltre ad una impeccabile resa estetica, la migliore performance a livello di contenimento energetico ed isolamento acustico, è dotata di tre bagni, di cui due areati e rispondenti alle vigenti normative per disabili, e di un comodo ripostiglio che funge da magazzino. L'immobile si addice alla collocazione di una attività puramente commerciale, con la disponibilità da parte del locatore di contemplare nel progetto di rinnovamento in atto eventuali specifiche esigenze di immagine o funzionali del cliente. L'impianto di riscaldamento e di raffrescamento, di nuova realizzazione, è autonomo. Non vi sono spese condominiali. Il canone è soggetto a IVA. RIF.LC/0225



