Valutazione immobiliare indipendente, accurata e gratuita
Ufficio in affitto a Saronno (cod.650ad000)
Caasa non ha sufficienti informazioni per commentare l'ufficio in affitto a Saronno - 650ad000.
Analisi immobiliare
I dati in posseso di Caasa per quest'immobile sono insufficienti, inaffidabili o contraddittori per proporre un'analisi attendibile.
Mercato immobiliare a Saronno
Per quanto riguarda più in generale la città di Saronno, sono presenti al momento circa cento annunci per
uffici in affitto (quasi il 20% dell'intera provincia) .
Per quanto riguarda la dinamica dei prezzi, negli ultimi 6 mesi i prezzi medi in tutta la città per uffici in affitto sono
in sostanziale aumento (+5,36%).
NOVITÀ Il risultato che vedi dipende dai dati che siamo riusciti ad estrarre dall'annuncio: ottieni una stima più accuranta di questo immobile, inserendo dati più precisi.
N.B. L'Opinione di Caasa® è un servizio sperimentale realizzato tramite tecniche di Intelligenza Artificiale, fornito senza alcuna garanzia di correttezza e completezza. Leggi il disclaimer o segnalaci un problema.
IMMAGINI
IN SINTESI
PROPOSTO DA:
SIGIS s.a.s.
DESCRIZIONE
di recente ristrutturazione con termocondizionamento di recente ristrutturazione con posto auto da ristrutturare
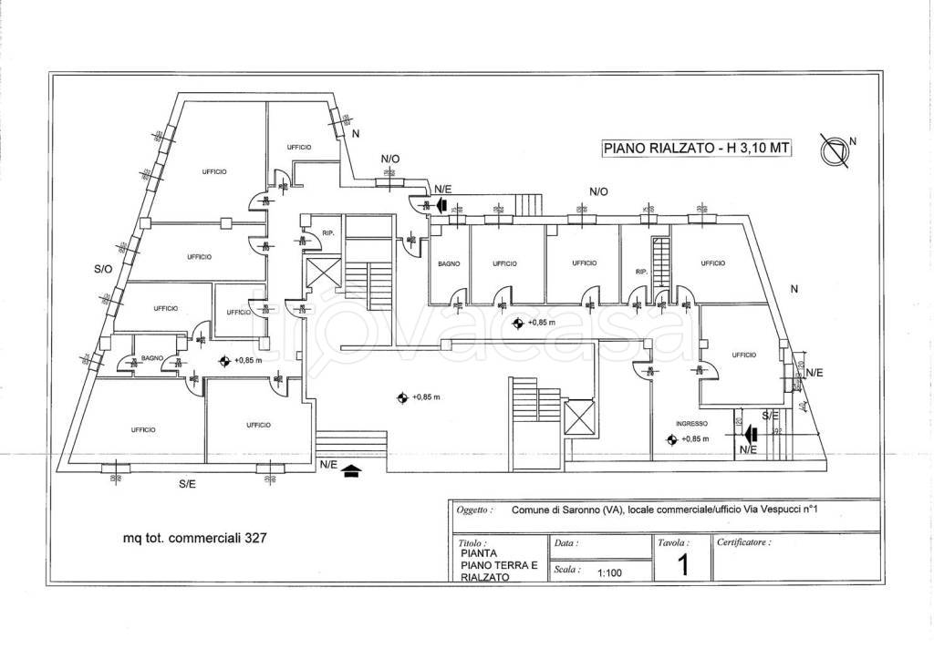
Saronno centro, via Vespucci, in contesto condominiale anni ’70, posto a piano rialzato con possibilità di doppio ingresso, affittasi UFFICI per complessivi 327 mq. , frazionabili secondo necessità, forniti completamente ristrutturati e dotati di aria condizionata. Riscaldamento centralizzato con termo valvole. Piazzale privato per 8-10 posti auto. Per info e visite 347 7686218


