Valutazione immobiliare indipendente, accurata e gratuita
Appartamento in vendita a Mesenzana a 130.000 € (cod.6581eb3f)
Caasa non ha sufficienti informazioni per commentare l'appartamento in vendita a Mesenzana - 6581eb3f.
Analisi immobiliare
I dati in posseso di Caasa per quest'immobile sono insufficienti, inaffidabili o contraddittori per proporre un'analisi attendibile.
Mercato immobiliare a Mesenzana
Per quanto riguarda più in generale il comune di Mesenzana, sono presenti al momento più di cinquanta annunci per
appartamenti in vendita (meno dell'1% dell'intera provincia) .
La dinamica dei prezzi in tutto il comune mostra che negli ultimi 6 mesi, i prezzi per appartamenti in vendita sono
in forte aumento (+13,31%).
NOVITÀ Il risultato che vedi dipende dai dati che siamo riusciti ad estrarre dall'annuncio: ottieni una stima più accuranta di questo immobile, inserendo dati più precisi.
N.B. L'Opinione di Caasa® è un servizio sperimentale realizzato tramite tecniche di Intelligenza Artificiale, fornito senza alcuna garanzia di correttezza e completezza. Leggi il disclaimer o segnalaci un problema.
IMMAGINI
IN SINTESI
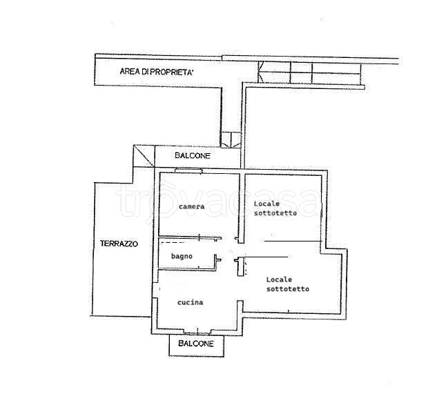
DESCRIZIONE
di recente costruzione con posto auto con terrazza con balcone con garage con giardino di recente costruzione con cucina abitabile
In minicondominio di sole due unità, proponiamo appartamento in ottimo stato con ingresso indipendente, soluzione ideale per chi desidera spazi esterni privati e vivibili. L’abitazione è composta da: Cucina abitabile - Camera da letto - Bagno - Due locali sottotetto ad uso accessorio - Balcone. Completano la proprietà: Ampio terrazzo di circa 25 mq, ideale per momenti all’aperto - Piccolo giardino da adibire ad orto o area verde per animali o per crearci una casetta di legno per gli attrezzi. Due posti auto di proprietà. L’immobile si presenta in ottimo stato di manutenzione, senza spese condominiali, ed è inserito in un contesto tranquillo e riservato. L’immobile è situato in via Margorabbia una parallela della via Provinciale di Mesenzana. Soluzione perfetta per coppie o piccoli nuclei familiari e per chi ama vivere la casa anche all’esterno, offrendo spazi sicuri e funzionali per cani e altri animali domestici

