Valutazione immobiliare indipendente, accurata e gratuita
Appartamento in vendita a Mesenzana a 33.750 € (cod.656f8cc9)
Caasa non ha sufficienti informazioni per commentare l'appartamento in vendita a Mesenzana - 656f8cc9.
Analisi immobiliare
I dati in posseso di Caasa per quest'immobile sono insufficienti, inaffidabili o contraddittori per proporre un'analisi attendibile.
Mercato immobiliare a Mesenzana
Per quanto riguarda più in generale il comune di Mesenzana, sono presenti al momento più di cinquanta annunci per
appartamenti in vendita (meno dell'1% dell'intera provincia) .
Relativamente alla dinamica dei prezzi, possiamo dire che negli ultimi 6 mesi i prezzi medi in tutto il comune per appartamenti in vendita sono
in forte aumento (+13,31%).
NOVITÀ Il risultato che vedi dipende dai dati che siamo riusciti ad estrarre dall'annuncio: ottieni una stima più accuranta di questo immobile, inserendo dati più precisi.
N.B. L'Opinione di Caasa® è un servizio sperimentale realizzato tramite tecniche di Intelligenza Artificiale, fornito senza alcuna garanzia di correttezza e completezza. Leggi il disclaimer o segnalaci un problema.
IMMAGINI
IN SINTESI
PROPOSTO DA:
BIPROGET GROUP Gallarate Novara Varese Sanremo Verbania
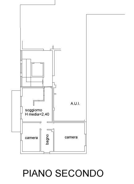
DESCRIZIONE
con posto auto con terrazza con balcone in asta giudiziaria
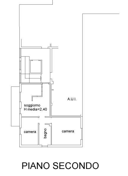
appartamento al 2p mansardato composto da ingresso-soggiorno-cucina con balcone, disimpegno, bagno e 2 camere, oltre a box CONTATTACI SUBITO! PER ESEGUIRE IN TOTALE SICUREZZA TUTTE LE PROCEDURE IN ASTA SERVONO ALCUNI GIORNI! "Biproget Group " è lo studio di consulenza che ti può accompagnare per tutto il percorso relativo all'acquisto tramite asta giudiziaria, compresa l'assistenza per le nuove procedure TELEMATICHE; l'immobile viene venduto dal tribunale e il prezzo indicato si riferisce all'offerta minima, per assistenza e consulenza chiamare Tel. 0331.784.170 Possibilità di mutuo 100%, ulteriori vantaggi se acquisti la prima casa

