Valutazione immobiliare indipendente, accurata e gratuita
Appartamento in vendita a Lonate Ceppino a 139.000 € (cod.6565385a)
Caasa non ha sufficienti informazioni per commentare l'appartamento in vendita a Lonate Ceppino - 6565385a.
Analisi immobiliare
I dati in posseso di Caasa per quest'immobile sono insufficienti, inaffidabili o contraddittori per proporre un'analisi attendibile.
Mercato immobiliare a Lonate Ceppino
Per quanto riguarda più in generale il comune di Lonate Ceppino, sono presenti al momento più di trenta annunci per
appartamenti in vendita (meno dell'1% dell'intera provincia) .
Possiamo inoltre considerare che in tutto il comune negli ultimi 6 mesi, i prezzi per appartamenti in vendita sono
in calo (-3,70%).
NOVITÀ Il risultato che vedi dipende dai dati che siamo riusciti ad estrarre dall'annuncio: ottieni una stima più accuranta di questo immobile, inserendo dati più precisi.
N.B. L'Opinione di Caasa® è un servizio sperimentale realizzato tramite tecniche di Intelligenza Artificiale, fornito senza alcuna garanzia di correttezza e completezza. Leggi il disclaimer o segnalaci un problema.
IMMAGINI
IN SINTESI
DESCRIZIONE
di recente ristrutturazione con posto auto con cantina di recente ristrutturazione con riscaldamento autonomo
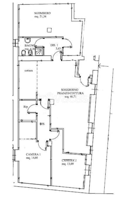
Appartamento in Vendita - Spazio e Comfort nel Cuore del Tranquillo Centro storico Scopri questo ampio Trilocale, completamente ristrutturato a nuovo, pronto da abitare! Con oltre 100 mq di superficie, questo appartamento è ideale per famiglie che cercano comfort e spazio. Situato in una zona tranquilla e comoda, offre un grande soggiorno di 40 mq con cucina a vista e zona pranzo, perfetto per momenti di convivialità. Le due camere da letto sono confortevoli e dotate di armadi a muro, mentre il moderno bagno con doccia aggiunge un tocco di eleganza. Non mancano un ripostiglio e un locale pluriuso, ideale per hobby e giochi. Inoltre, lo sfogo esterno davanti casa è perfetto per godersi l'aria aperta. Completa l'offerta una cantina e un posto auto scoperto. Gli infissi in legno con doppio vetro isolante garantiscono un'ottima efficienza energetica, mentre il riscaldamento autonomo e l'aria condizionata assicurano il massimo comfort in ogni stagione. Con finiture sobrie e moderne, questo appartamento è anche un'ottima opportunità di investimento. Non lasciarti scappare questa occasione unica

