Valutazione immobiliare indipendente, accurata e gratuita
Negozio in vendita a Casalzuigno a 42.516 € (cod.6517ed42)
Caasa non ha sufficienti informazioni per commentare il negozio in vendita a Casalzuigno - 6517ed42.
Analisi immobiliare
I dati in posseso di Caasa per quest'immobile sono insufficienti, inaffidabili o contraddittori per proporre un'analisi attendibile.
Mercato immobiliare a Casalzuigno
Per quanto riguarda più in generale il comune di Casalzuigno, sono presenti al momento meno di dieci annunci per
negozi in vendita (meno dell'1% dell'intera provincia) .
Vedi altre informazioni direttamente su
Mercato-Immobiliare.info
NOVITÀ Il risultato che vedi dipende dai dati che siamo riusciti ad estrarre dall'annuncio: ottieni una stima più accuranta di questo immobile, inserendo dati più precisi.
N.B. L'Opinione di Caasa® è un servizio sperimentale realizzato tramite tecniche di Intelligenza Artificiale, fornito senza alcuna garanzia di correttezza e completezza. Leggi il disclaimer o segnalaci un problema.
IMMAGINI
IN SINTESI
PROPOSTO DA:
Case all'Asta
DESCRIZIONE
di recente costruzione in asta giudiziaria con terrazza con giardino di recente costruzione
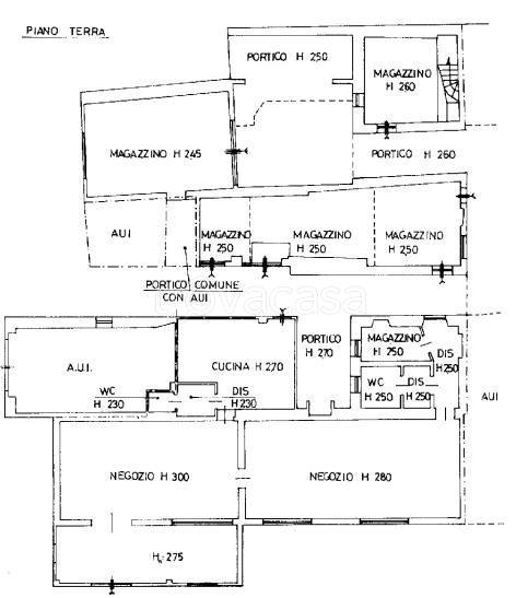
Ristorante al piano terra, composto da ingresso, sala bar, ristorante, due bangi, con antibagno per il pubblico, cucina, wc dipendenti, tre magazzini. Nessun costo di iscrizione con Case all'Asta - Acquista senza Rischi. Data di asta: 22/01/2026 Offe […]
