Valutazione immobiliare indipendente, accurata e gratuita
Casa indipendente in vendita a Cantello a 590.000 € (cod.64f9d687)
Caasa non ha sufficienti informazioni per commentare la casa indipendente in vendita a Cantello - 64f9d687.
Analisi immobiliare
I dati in posseso di Caasa per quest'immobile sono insufficienti, inaffidabili o contraddittori per proporre un'analisi attendibile.
Mercato immobiliare a Cantello
Per quanto riguarda più in generale il comune di Cantello, sono presenti al momento più di trenta annunci per
case indipendenti in vendita (meno dell'1% dell'intera provincia) .
La dinamica dei prezzi in tutto il comune mostra che negli ultimi 6 mesi, i prezzi per case indipendenti in vendita sono
in forte calo (-12,05%).
NOVITÀ Il risultato che vedi dipende dai dati che siamo riusciti ad estrarre dall'annuncio: ottieni una stima più accuranta di questo immobile, inserendo dati più precisi.
N.B. L'Opinione di Caasa® è un servizio sperimentale realizzato tramite tecniche di Intelligenza Artificiale, fornito senza alcuna garanzia di correttezza e completezza. Leggi il disclaimer o segnalaci un problema.
IMMAGINI
IN SINTESI
DESCRIZIONE
di nuova costruzione con giardino di recente ristrutturazione di nuova costruzione
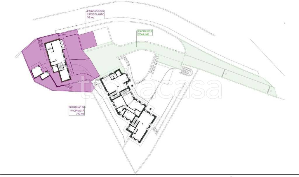
A Cantello in provincia di Varese, proponiamo esclusiva villa singola in contesto di pregio situata in posizione privilegiata. L'incantevole dimora, parte di un progetto di riqualificazione di una grande villa padronale con dependance, è in fase di completa ristrutturazione rispettandone fasto e storicità ed arricchendola di dettagli moderni, conferendole un aspetto ammirevole ed elegante. La villa si sviluppa con una superficie di circa 170 mq disposti su un unico piano oltre interrato con studio/camera o taverna e servizi. La facciata dell'immobile viene ridisegnata per innovare il fascino originale con un elegante tocco contemporaneo mentre grandi vetrate moderne aggiungono luminosità agli ambienti. Gli interni, dagli ambienti ariosi e luminosi, si caratterizzano per gli spazi semplici ed eleganti uniti ai comfort contemporanei. Gli impianti all'avanguardia di ultima generazione con pompa di calore, cappotto termico e pannelli fotovoltaici permettono all'immobile di raggiungere la più elevata efficienza energetica con finiture che riflettono uno stile originale e ricercato. Ogni dettaglio è stato studiato per garantire un’esperienza abitativa esclusiva, combinando materiali di alta qualità con un design elegante e unico. In questa fase la villa è ancora personalizzabile secondo i propri gusti ed esigenze. Location suggestiva e strategica a 5 minuti dal confine con la Svizzera, 20 minuti da Como e in zona servita da tutti i principali servizi. Prenota subito il tuo appuntamento per visionare questo immobile, scoprire il progetto e scegliere le personalizzazioni che più rispondono alle tue esigenze


