Valutazione immobiliare indipendente, accurata e gratuita
Appartamento in vendita a Busto Arsizio a 70.000 € (cod.64f545f9)
Caasa non ha sufficienti informazioni per commentare l'appartamento in vendita a Busto Arsizio - 64f545f9.
	Analisi immobiliare
	
	I dati in posseso di Caasa per quest'immobile sono insufficienti, inaffidabili o contraddittori per proporre un'analisi attendibile.
	
	Mercato immobiliare a Busto Arsizio
	
	Per quanto riguarda più in generale la città di Busto Arsizio, sono presenti al momento ben oltre mille annunci per 
		appartamenti in vendita (quasi il 20% dell'intera provincia) 
	
	 e il maggior numero di annunci per questa tipologia sono relativi alla zona di Borsano.
	
	
	
	Relativamente alla dinamica dei prezzi, possiamo dire che negli ultimi 6 mesi i prezzi medi in tutta la città per appartamenti in vendita sono 
		in deciso aumento (+9,24%).
	
	
	
NOVITÀ Il risultato che vedi dipende dai dati che siamo riusciti ad estrarre dall'annuncio: ottieni una stima più accuranta di questo immobile, inserendo dati più precisi.
N.B. L'Opinione di Caasa® è un servizio sperimentale realizzato tramite tecniche di Intelligenza Artificiale, fornito senza alcuna garanzia di correttezza e completezza. Leggi il disclaimer o segnalaci un problema.
IMMAGINI
IN SINTESI
PROPOSTO DA:
B&P REAL ESTATE SRL
DESCRIZIONE
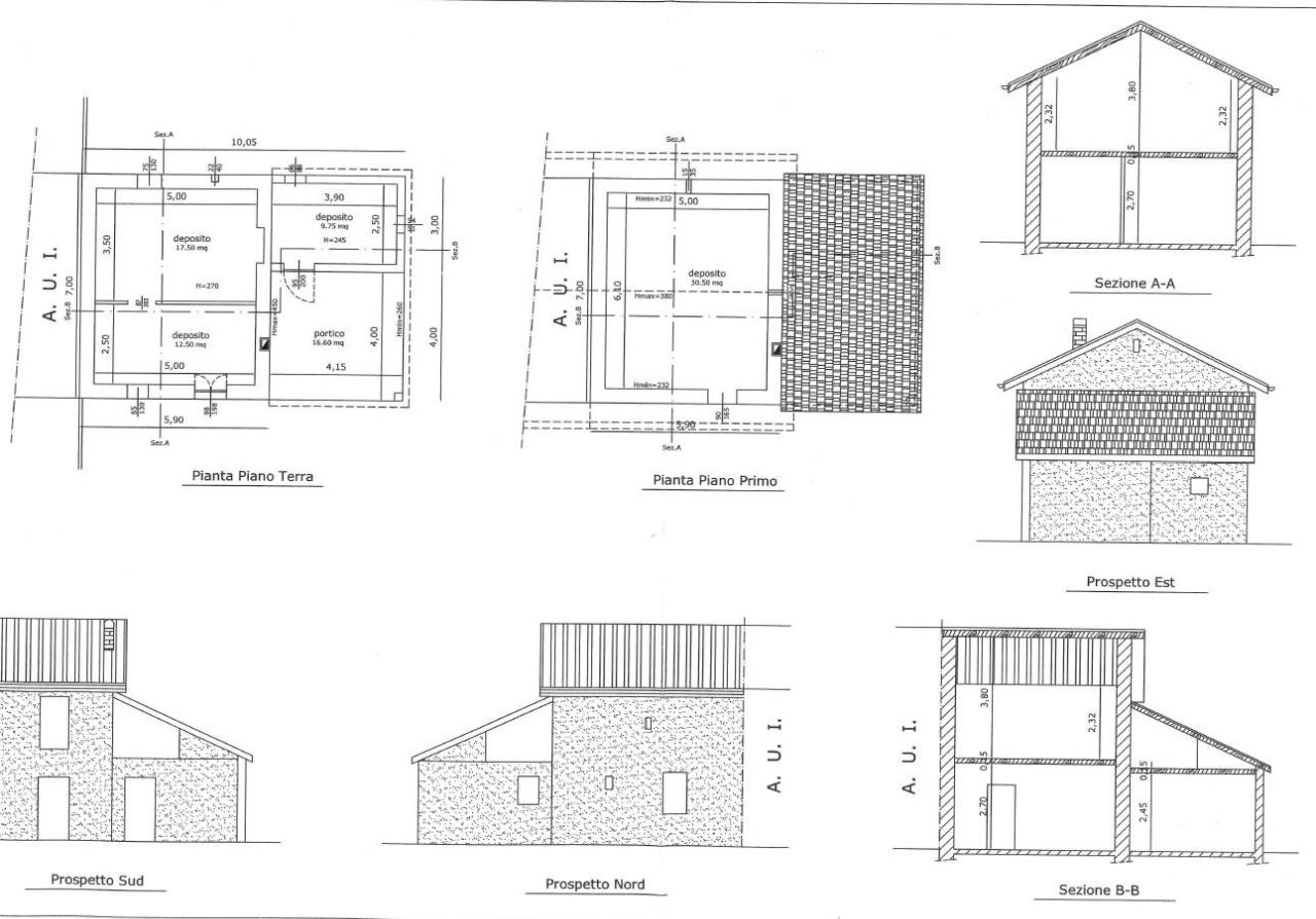
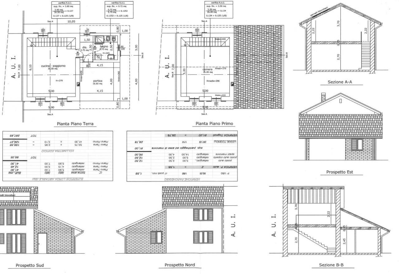
BUSTO ARSIZIO: Zona Via Cobetta Proponiamo in Vendita RUSTICO attualmente uso deposito con annessa area pertinenziale di mq 965,00 composto da tre locali e portico al piano terreno ed un locale al sovrastante al piano primo con possibilità di trasformazione ad uso Residenziale. Prezzo richiesto € 70.000,00 - Cod. Agenzia 426 I dati e le informazioni riportate nella presente scheda, non hanno alcun contenuto contrattuale e devono essere considerate indicative come sono puramente indicative le planimetrie e le metrature indicate. Per maggiori informazioni o per fissare un appuntamento per una visita, potete contattarci direttamente allo 0331.51.99.99 o se preferite, scriveteci tramite mail all'indirizzo: legnano@bpre.it e sarete ricontattati nel più breve tempo possibile. Inoltre, nel caso in cui per perfezionare l'acquisto, necessitiate di vendere il vostro attuale immobile, la nostra società potrà curare tutti gli aspetti necessari, suggerendovi la miglior soluzione di vendita nel minor tempo possibile partendo dalla Giusta Valutazione del vostro immobile. La Valutazione della Casa è un passo molto importante soprattutto se si vuole vendere in tempi rapidi e con il massimo profitto. Per sapere quanto vale il vostro immobile, contattateci direttamente senza impegno e saremo lieti di fissare un appuntamento per la Giusta Valutazione. Rimanendo a vostra disposizione per qualsiasi ulteriore informazione, vi ringraziamo per aver valutato la nostra offerta. B&P Real Estate S.A.S. Legnano (MI) Via C. Del Fante n.16 - Tel. 0331.51.99.99 - mail: legnano@bpre.it - Sito Internet: www.bpre.it
 
                               
                               
                               
                               
                               
                               
                              

