Valutazione immobiliare indipendente, accurata e gratuita

L'Opinione di Caasa® per l'appartamento in affitto a Busto Arsizio a 700 € mese (cod.64e419da)

Secondo Caasa, per l'appartamento in affitto a Busto Arsizio, la richiesta di 700 € mese è equilibrata rispetto agli annunci simili.

Analisi immobiliare
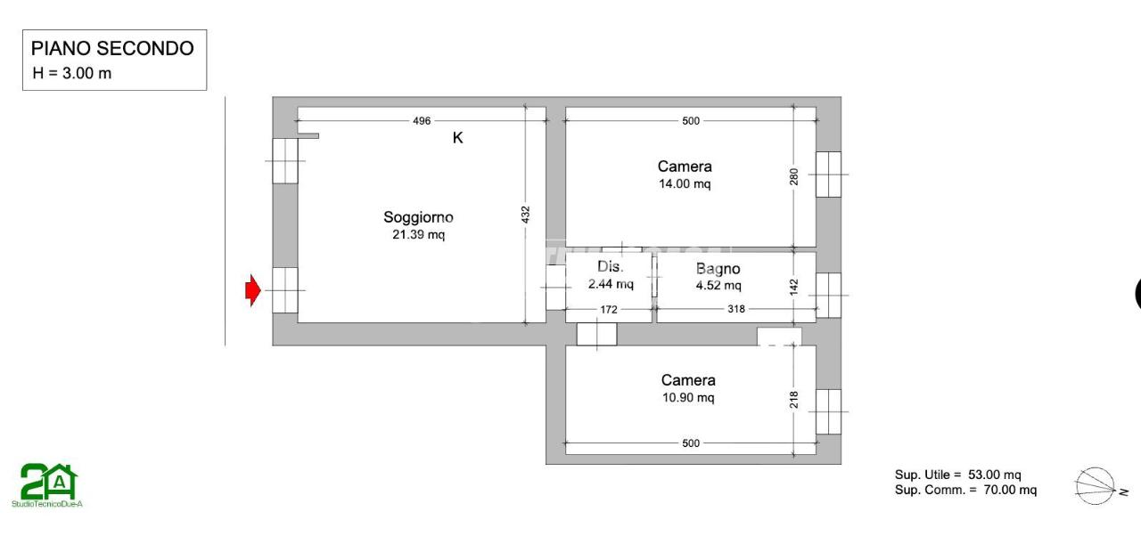
L'appartamento, situato nei pressi di Via Amilcare Ponchielli nella zona OMI C1, è proposto in affitto a 700 € mese per una superficie commerciale di 70 m² e quindi ad un prezzo per metro quadrato pari a 10 €/m² .
Questo prezzo è perfettamente allineato a quello stimato da Caasa per immobili in affitto simili per tipologia e caratteristiche e localizzati nella stessa zona OMI, che è compreso tra 10 €/m² mese e 10,8 €/m² mese. Grazie alla conoscenza con buona approssimazione della localizzazione dell'immobile, è stato possibile utilizzare come raffronto i dati medi elaborati esattamente nella zona OMI di appertenenza (V.DONIZETTI, CORSO ITALIA, FS, FNM, V.CASTELMORONE, V.MAGENTA, V.MAZZINI, V.G...). Anche se Caasa non è riuscita a determinare la classe energetica, ad affinare la stima hanno contribuito anche lo stato dell'immobile (di recente ristrutturazione) e la presenza di alcune caratteristiche significative come il posto auto. Per questi motivi l'intervallo dei valori accettabili per l'offerta è relativamente limitato.

Mercato immobiliare a Busto Arsizio
Per quanto riguarda più in generale la città di Busto Arsizio, sono presenti al momento più di 200 annunci per appartamenti in affitto (quasi il 20% dell'intera provincia) e il maggior numero di annunci per questa tipologia sono relativi alla zona di Borsano.

Possiamo inoltre considerare che in tutta la città negli ultimi 6 mesi, i prezzi per appartamenti in affitto sono in aumento (+4,02%).

NOVITÀ Il risultato che vedi dipende dai dati che siamo riusciti ad estrarre dall'annuncio: ottieni una stima più accuranta di questo immobile, inserendo dati più precisi.

N.B. L'Opinione di Caasa® è un servizio sperimentale realizzato tramite tecniche di Intelligenza Artificiale, fornito senza alcuna garanzia di correttezza e completezza. Leggi il disclaimer o segnalaci un problema.

IMMAGINI

IN SINTESI

Prezzo:
700 € mese
Superficie:
70 m²
Prezzo al m²:
10/mese €/m²
Piano:
(SENZA ascensore)
Bagni:
1
Classe energetica:
n.d.
Città:
Busto Arsizio (VA)
Zona OMI:
C1 (V.DONIZETTI,CORSO ITALIA,FS,FNM,V.CASTELMORONE,V.MAGENTA,V.MAZZINI,V.GIUSSANO,V.D.D AOSTA,V.ZAPPELINI,V.A.VOLTA)
Pubblicato:
mar 23 settembre 2025

PROPOSTO DA:

TEMPOCASA Busto Arsizio

DESCRIZIONE

di recente ristrutturazione con termocondizionamento con posto auto di recente ristrutturazione con riscaldamento autonomo senza ascensore

Rif: Aff10 - TRILOCALE IN AFFITTO A BUSTO ARSIZIO ZONA FRATI - Via Amilcare Ponchielli, 1 In zona servita, a pochi minuti a piedi dal centro della città di Busto Arsizio e a 5 minuti a piedi dalla stazione FS, proponiamo ampio e luminoso TRILOCALE ubicato al 2° piano senza ascensore di un bel contesto di corte COMPLETAMENTE RISTRUTTURATO. La soluzione è composta da ingresso sull'ampia ZONA GIORNO con CUCINA A VISTA, disimpegno che accede alla zona notte con la CAMERA MATRIMONIALE, BAGNO finestrato e la SECONDA CAMERA DA LETTO. L'appartamento è in perfette condizioni interne in quanto è stato ristrutturato pochi anni fa, gli infissi sono in PVC e vetro doppio. RISCALDAMENTO AUTONOMO CON CALDAIA NUOVA e BASSE SPESE CONDOMINIALI. Completa la soluzione una solaio e un posto auto interno di pertinenza. La soluzione è disponibili per affitto di tipo transitorio Per maggiori info e/o appuntamenti di visione contattare il numero 329 277 8029 e/o 0331 - 146 3962 TEMPOCASA di Busto Arsizio , Via Giuseppe Mazzini n°5 , 21052 (VA) bustoarsizio@tempocasa.it www.tempocasabustoarsizio.it

  • immobiliare.it
  • wikicasa.it