Valutazione immobiliare indipendente, accurata e gratuita
Appartamento in vendita a Brissago-Valtravaglia a 85.800 € (cod.64dc2ad7)
Caasa non ha sufficienti informazioni per commentare l'appartamento in vendita a Brissago-Valtravaglia - 64dc2ad7.
	Analisi immobiliare
	
	I dati in posseso di Caasa per quest'immobile sono insufficienti, inaffidabili o contraddittori per proporre un'analisi attendibile.
	
	Mercato immobiliare a Brissago-Valtravaglia
	
	Per quanto riguarda più in generale il comune di Brissago-Valtravaglia, sono presenti al momento più di dieci annunci per 
		appartamenti in vendita (meno dell'1% dell'intera provincia) .
	
	
NOVITÀ Il risultato che vedi dipende dai dati che siamo riusciti ad estrarre dall'annuncio: ottieni una stima più accuranta di questo immobile, inserendo dati più precisi.
N.B. L'Opinione di Caasa® è un servizio sperimentale realizzato tramite tecniche di Intelligenza Artificiale, fornito senza alcuna garanzia di correttezza e completezza. Leggi il disclaimer o segnalaci un problema.
IMMAGINI
IN SINTESI
PROPOSTO DA:
Gabetti - Domus Aurea sas DI sas di Scarascia Giuseppe (Lecce Centro)
DESCRIZIONE
con cantina con terrazza con balcone in asta giudiziaria
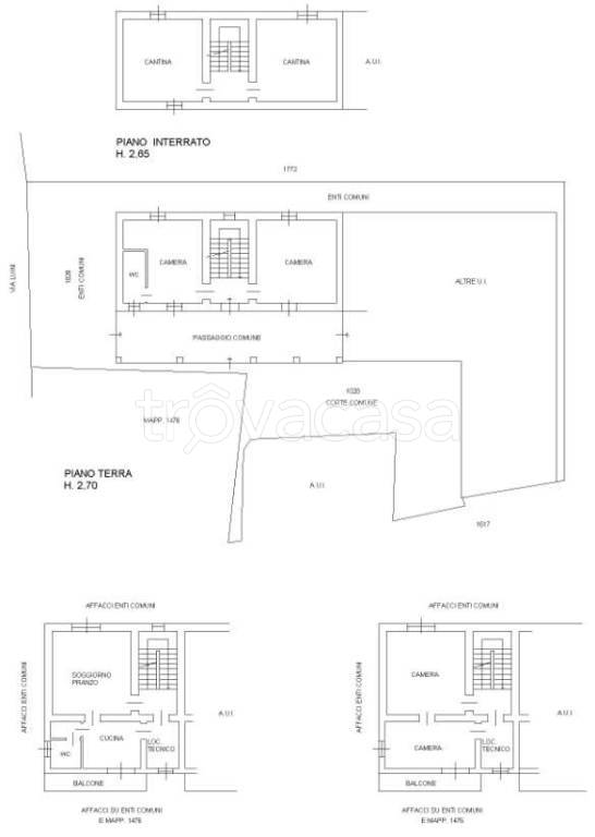
OTTIMA OCCASIONE - ASTA IMMOBILIARE Unità immobiliare sviluppata ai piani S1-T-1-2, composta da due vani ad uso cantina a piano cantinato, da due vani attualmente ad uso sgombero e da un servizio igienico a piano terra, da vano soggiorno/pranzo, vano […]
 
                               
                               
                               
                               
                              